查看完整案例

收藏

下载

翻译
Pandemics, wars, social unrest, economic crises, price hikes, scarce labor, and materials. The construction industry is in crisis. Accessing financing becomes difficult, rates rise, and there's a deficit in infrastructure and housing. Climate change increases uncertainty, while natural disasters make action more urgent.
What can architects, designers, and builders do in the face of this emergency? How can we make architecture and construction accessible for those who currently see them as distant?
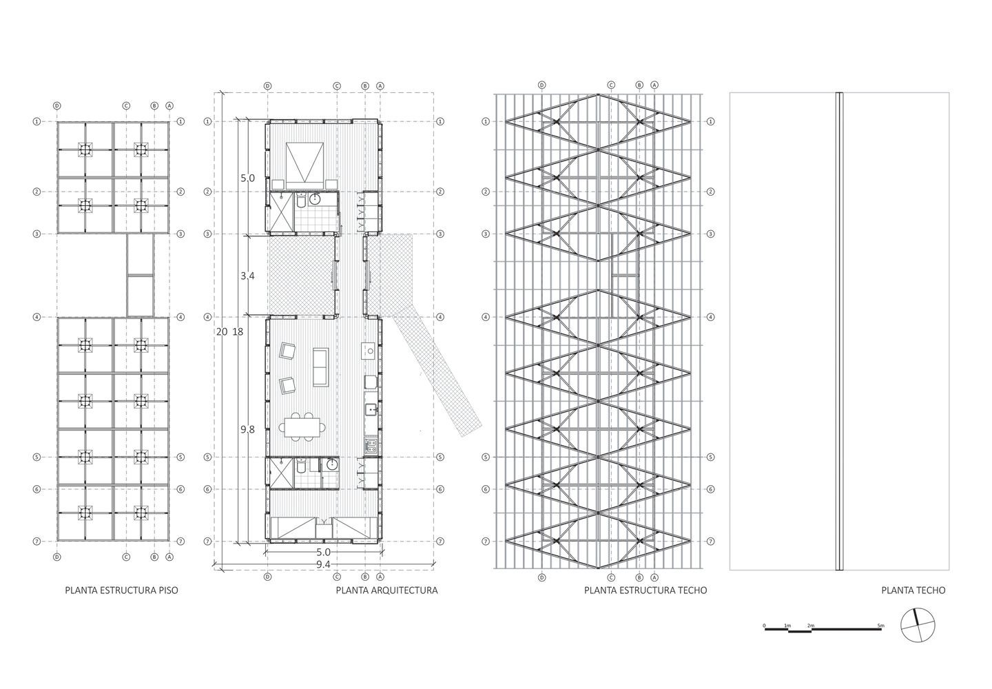
As an architecture firm in alliance with The Andes House, we devised an industrialized construction system based on the logic of parts and pieces, akin to industries like automotive and aerospace. We decided to build a prototype to highlight these concerns.
This system is developed using sustainable materials like wood and reusable materials such as steel. Through modular coordination, we avoid excess materials in the process. It's a versatile and lightweight system with a slender yet robust metal structure housing wooden casings that configure the facades.
The parts are replaceable and reusable. They can be disassembled, stored, and reassembled elsewhere for various purposes. Being composed of parts facilitates storage and optimizes warehouse space, allowing for swift deployment and transport via medium-sized trucks equipped with cranes, granting it versatility over prefabricated structures.
Assembly/disassembly occurs in tight timeframes with few workers needing no more training than following a pre-established logic of simple assembly. Only torque wrenches and electric screwdrivers are required, that gives certainty in time and costs.
This system is flexible and can expand both horizontally and vertically, adapting to various purposes, from residences (for which this initial exercise was developed) to medium-height buildings, schools, and healthcare centers, among others.
Ventilated facades and a roof with generous metallic eaves offer an economical solution for the exterior cladding, easily replaceable and low maintenance. Additionally, they promote air convection for passive ventilation. Together with a thermal insulation material based on wood fiber, it adds mass to walls, floors, and ceilings, achieving significant energy savings.
The prototype and its components are proposed as a universal system, meaning its components, methods, and principles are accessible and adaptable, allowing for its continuous evolution and improvement. We aim to optimize it to adapt to different contexts, seeking to evolve towards more efficient, sustainable, and effective forms.
客服
消息
收藏
下载
最近




















