查看完整案例


收藏

下载
当柔光涌进空间,演绎出逐光追影的浪漫情绪,空间中的色彩与体块关系,无声而纯粹。
本案在生活痕迹里交织法式风情,浪漫优雅中浸润着细腻。释放负荷,安放身心,休憩中也透着淡淡的诗意。
中建御景星城
[ 项目简介 ]地址Address:中建御景星城
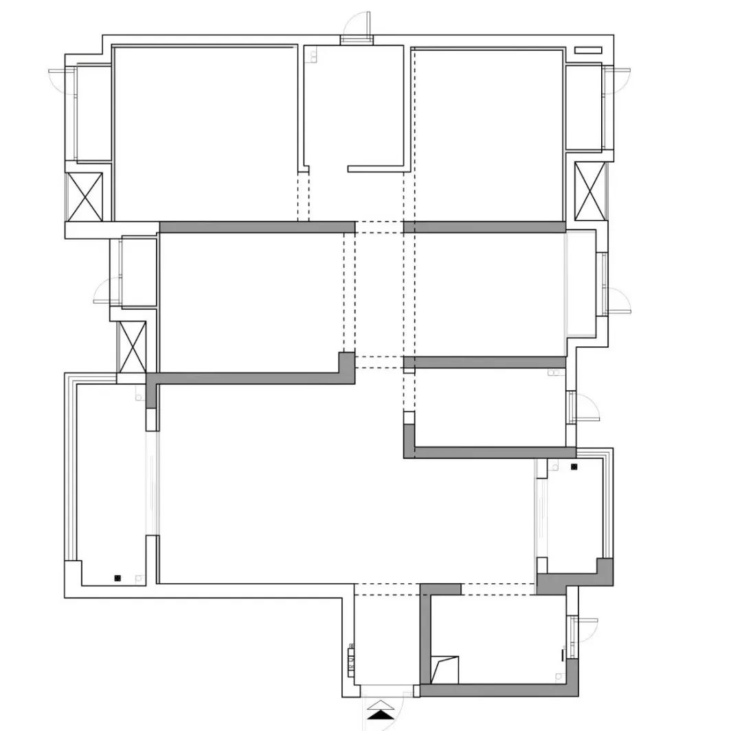
面积|Square Meters:142m
风格|Style:法式风
户型|Apartment:四室两厅
设计|Designer:诗享家设计
施工| Construction诗享家
施工软装|Soft Decor:诗享家宅配
[ 客户需求 ]奶油纯色托底、法式风为骨架,将空间雕琢出浪漫而柔软的气质。家不止是居住场所,还是居者一家人的精神治愈所,柔和的环境赋予家更温柔的含义。
本案意在构筑一方柔软舒适居所,于低饱和的治愈系底色上,通过减少冗余的装饰、强调材质色彩的视觉和谐,来实现此方空间温情舒缓的氛围。在纯粹的空间画布上,合理划分空间,出于实用性角度,以居者动线为引,重新梳理空间,打造出兼具美观、舒适、治愈力的私人居所。
[ 功能设计 ]
玄关做下沉式设计,有效避免灰尘,采用拱门与复古花砖分区,避免入户门至对卧室的尴尬情景,保留了空间之间的隐私性;
客厅接入阳台,打造客餐一体的开放设计、半开放式厨房,采光南北通透,空间开阔而富有功能性;
餐厅接入原有的阳台,拆除墙体打造为岛台,餐岛一体,增加西厨区域,完成中西厨分区;
重新划分原有的静区四房,划分为主卧、儿童房、多功能房以适应实际居住需求;
书房纳入主卧,打造“休憩、卫生间、衣帽间、书房”的一站式复合型卧室,功能丰富,缩短动线;
将房间改造为多功能房,扩宽门洞,优化采光通风,减少过道带来的逼仄感,同时可作为临时客房。
[ 视觉设计 ]
·下沉式玄关作为落尘区,有效减少了其它公区的灰尘,复古花砖将玄关区与客厅做了有趣的分割,拱门与梁托氤氲精致的空间气质,丰富了空间形态,避免入户直面卧室门的尴尬情况。
·奶油白包容柔和,吊顶采用法式石膏线+雕花灯盘的经典元素,经典线条从墙壁延伸至天花板,一气呵成,法式画卷般展现出浪漫与优雅。
·落地窗的光线贯穿整个客厅,慵懒又治愈,奶油白搭配柔和的木色地板,空间中的平静,通过空间和光影,整个空间散发着柔软、静谧的美。
·古色古香的中式盆景碰撞法式复古风格,带来独特的视觉体验,给空间增添了一抹古典的风情。黄铜与木质颇具设计感,灯具别有一番复古韵味。·圆润的沙发与茶几,用弧线展示不同的肌理,空间的线条更为柔和,清新优雅。各具特色的家具带给居者私人的居住体验,在这里可以完全放松身心,享受独属自己的美好时光。
· 原木地台落地,墙面做弧形设计,空间纯粹而灵动,电子壁炉跳跃温度的焰火,将现代元素恰到好处地融入法式浪漫中去。
·客厅和餐厅融为一体设计,充分把区域进行最大化处理。在光线的充盈之下,衍变出休闲慵懒的空间效果。大理石餐桌实携带丰富纹理,勾勒出更多艺术性。
·餐岛一体的设计增加西厨台面,完成中西厨功能分区,大理石壁龛既丰富空间立面,又增加了西厨区储物空间,达到空间美学与实用的统一。
·餐桌区两盏黄铜吊灯垂落,谱写浪漫时光序曲,圆形大理石餐桌搭配原木编织座椅,多元材质的碰撞在这里悄然发生,不断书写着空间的更多情景。
诗享家咨询预约入口
客服
消息
收藏
下载
最近













