查看完整案例

收藏

下载
小宅空间
Natalya Sorokina
新作,一对年轻夫妇的47
㎡
住宅,将现代古典风格的两居室营造出平静、舒适、温馨的室内氛围。
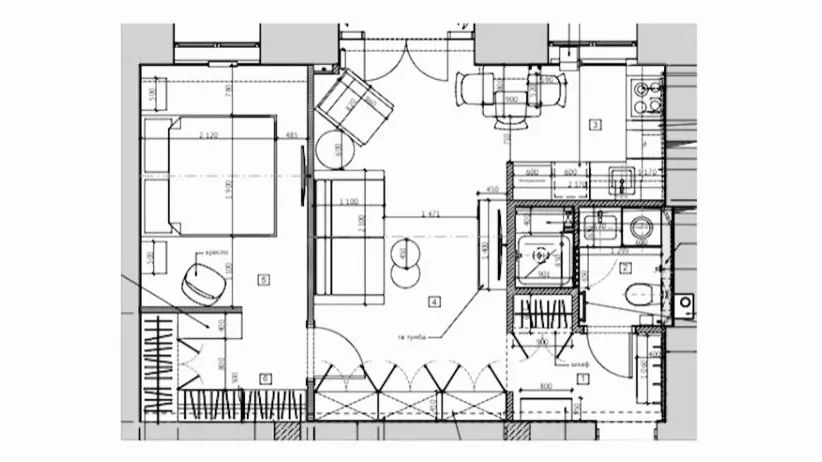
空间布局
▽
客厅的衣柜是设计师精心设计的一个储物系统,
设有开放式书架、抽屉和衣柜。
吸尘器、折叠式熨衣板等家用电器都隐藏在左侧封闭的部分。
衣柜不仅起到装饰作用,还充分利用了可用空间。
色彩鲜艳的沙发和色彩缤纷的壁画使客厅显得尤为突出。
厨房、客厅和卧室的地板选择了镶木地板,从而创造了一个效果统一的空间。卧室入口处设有一个大衣柜,大部分被房间一侧的墙壁覆盖。
在门厅里,设计师将光画与深灰色相结合,使空间变得有趣,视觉上更加宽敞。
墙壁和天花板上的线条、地板上的几何图案以及柜子前面带有三角形框的镜子给该区域带来了非常特别的外观。
独特的氛围也是浴室的特色,这里设计师把装饰调暗了一些,在大镜子后面、架子上和淋浴间里安装了各种LED照明。
客服
消息
收藏
下载
最近























