查看完整案例

收藏

下载
如若阅读首发文章,请跳转至《以“旧”为“新” - 旧厂房改造的新中式茶饮空间 / 大海小燕设计工作室》
建筑与周边环境鸟瞰
上海淀山湖边的岑卜村,早期闻名于它的萤火虫,有水有村有咖啡,集聚了大量的游客。后来因“某某”闻名的科技公司在此创建研发园区,乡野集市卷入了滚滚建设中。而同时期,我们也参与到郊野乡村的改造中。不同于科技公司的建设是在向未来冲锋,而我们——传统茶饮,在与过去的时光创建联系。故事发生在一个简单的工业建筑中——9m 的厂房完成了它的历史使命,矗立于村中心迫于转型。于是,过去的茶饮文化,粗犷的工业历史,质朴的乡野环境就此碰撞在一起!
茶室外观
鸟瞰立面
露台区域
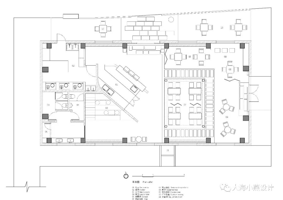
01 容器
—工业建筑的躯体
厂房元素极为简单,几跨牛腿柱托着纤细的钢架屋顶。
村里明确不得受力于既有建筑,设计也明确地将新建与现状脱开距离。
——高阔的厂房提供躯体,关于茶的历史,乡野的场所被工业躯体包裹。
分析图
02亭——茶的标识
亭下饮茶是潜藏于中式基因里的场景。因此饱含时间痕迹的旧木料,以传统的榫卯方式搭建,四横四纵,立于旧船木地台之上。
榫卯方式的搭建
地台略高于地面,立于空旷的厂房中心,从均质的空间中形成舞台般的聚集感。
老船木的地台
舞台般的聚集
03风——内外交融
白色长纱,轻盈朦胧,从饱经沧桑的木料上悬垂,颜色质感之间产生强烈的碰撞。
穿过厂房窗户的风来到亭,纱随之而起。在那时,亭这个“建筑中的建筑”变得灵动自在。
随风而起的白纱
04斜墙——空间的切分与导向
斜墙在入口与风亭之间创建联系与过渡,迎接着入口人流,也将动线转向风亭。
引导视线的斜墙
斜墙一面布置主吧台,另一面则是隐秘的台阶散座区。拾阶而上,到达斜墙的顶端可以俯瞰整个空间。斜墙上圆洞暗合园林的窗景,将墙后的空间含蓄地漏给前场。
老榆木的吧台
斜墙端头的圆洞
台阶散座区 05 布小径从室外开始,错落的石径将人引入。围绕风亭辅设旧枕木。
屏风
沿着设定的路径,犹如穿行于城间小巷,空间时而开阔,时而狭窄。
如在街巷穿行的小径。随着步移,踏石、碎石、屏风、绿植串联的风景也相应变换,空间虽不大,体验却是极为丰富。
06 自然材料——记忆中的栖居方式
在很长的历史中,人一直利用自然的材料构筑居所。设计大量使用这些传统的材料去唤醒以往的记忆。从进入北庭院开始,一片简单的竹篱墙限定了外摆空间,踩着凹凸不平的石板,进入室内。眼前是不加修饰的老榆木板,以最直白的方式搁于土墙之上。
非遗传人打造的竹椅
老榆木做的桌板
风亭和散座的竹椅是非遗传人手工打造,配合旧木做的桌子,以及浓浓历史传统的京砖一起勾勒出某个时候最自然的栖居方式。而它们不偏不倚,恰好地呈现在这个已经成为历史的厂房中。
改造前
改造后项目信息:
建筑面积 190 平米
外摆面积 70 平米
房屋位置 上海淀山湖 岑卜村
设 计 大海小燕设计工作室
设计团队 郭东海 燕泠霖 周婉婷
灯光设计 熊涵
软装设计 方鸽
摄 影 恩万建筑摄影
客 户 一步草堂
完成时间 2023 年
客服
消息
收藏
下载
最近


































