查看完整案例

收藏

下载
小宅空间
Natalya Zakharova新作,一对已婚夫妇的35㎡单间公寓,由俩人有不同的品味,女主人喜欢平静的色调,男主人则喜欢明亮的色调,设计师要找到了一个平衡点!以现代风格装饰,融入新古典主义风格。
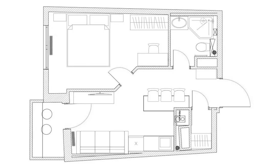
空间布局
▽
公寓布局复杂,墙壁几乎没有直角。
设计师设法将客厅区域融入到一个小公寓中,将厨房与窗边配有沙发的小客厅融为一体,有足够的存储系统。在走廊的角落里,还安排了一个更衣室,洗衣机也放在那里。
对于地板选择了层压板,其设计和布局模仿镶木地板。入口区域和更衣室的墙壁和天花板、卧室的壁纸、浴室的“潮湿”区域使用赤土瓷砖。厨房设备的布局相当复杂,带有水槽、内置烤箱和冰箱的主要部分排列成一条线。
为了存放外套,走廊里设有更衣室,前门处设有一个悬挂式控制台,用于放置小物品。
阳台成为休息的地方,安装了一个吧台,抬高了地板并铺设了露台板,赤脚走在上面很舒服。
卧室有一个三门衣柜,还有一张带抽屉的办公桌,以及代替床头柜的小型悬挂控制台。
客服
消息
收藏
下载
最近






















