查看完整案例


收藏

下载
设计是概念的落实,也是生活的期望。
项目详情丨 Project Details
项目地址 / Address:建发央著
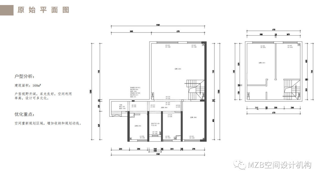
项目面积 / Area:170m²
设计风格 / Design style :现代风格
主案设计师 / Designer : MZB空间设计机构
效果表现师 / Performance Engineer : MZB空间设计机构
设计机构 / Consociation Desing : MZB空间设计机构
客厅 / A living room
效果展示
设计理念
多个独立块面的堆叠穿插成组
木色和白色的搭配
营造一种自然与和谐的状态
家一定扮演着避风港的角色
对家的态度就是对生活的态度
统一的大地色系
让空间人的心理感受更加放松
设计师认为风格不需要刻意营造
只要方式和气质对了就变得自然
Multiple independent block faces are stacked and interleaved into groups
Matching of wood color and white
Create a state of nature and harmony
Home must act as a haven
The attitude towards home is the attitude towards life
Unified earth color system
Let space people’s psychological feeling more relaxed
Designers believe that style does not need to be deliberately created
As long as the way and temperament are right, it will become natural
卧室 / Master bedroom /
效果展示
设计理念
主卧秉承少而精的陈设
用色低哑透露着不凡的品味
床品延续材质的调性
在这样的空间
生活方式就代表着艺术审美
不仅让居住其中的人有了更好的空间体验感
同时也为空间增添几分简静的质感
When we stop to look at life, There will be endless beauty in life. Bright daydreams, and wind, sleep, conversation, like the seeds of the evening. The soft pillow is lazy and fluffy. Concave convex relationship of wall and simple structure system, It exudes the beauty of freehand brushwork and exquisite art. Not only let the people living in it have a better sense of space experience, At the same time, it also adds some simple and quiet texture to the space.
随时撩动我们
可以推送或分享给身边的朋友
Tel:18673407021 / 15344403311
ADD:湖南省长沙市建发央著2-2204
客服
消息
收藏
下载
最近






























