查看完整案例

收藏

下载
小宅空间
Kristina Chemelova
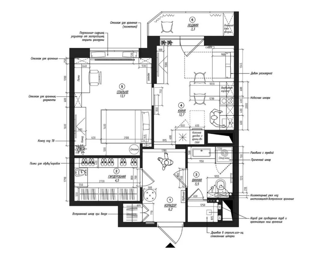
新作,45㎡小宅,一切细节都经过精心设计。业主是一位年轻的女孩,工作量大,追随时尚,梦想着有一套考虑到她的生活节奏和兴趣的公寓。
空间布局
▽
一个具有客厅功能的厨房和一个带有工作和手工艺品区域的卧室。
主要存储空间隐藏在更衣室中-为其分配了一个单独的房间。
小浴室里做了淋浴,洗衣机和烘干机藏在衣柜里。
女孩主要远程工作,因此提供了一个带有存储系统的便利工作场所。她还做针线活——除了主桌之外,还有一个窗台座位和一个梳妆台可供她使用。
用软墙板对其进行了改造,软墙板与床无关,本质上是墙面装饰。
客服
消息
收藏
下载
最近






















