查看完整案例

收藏

下载
项目选址位于南京市浦口区南京江北环保产业园紧邻南京市江北生活垃圾焚烧发电厂一期项目。南京市江北生活垃圾焚烧发电厂二期项目设计规模为日处理生活垃圾2000吨,年处理73万吨,年上网电量约3亿千瓦时。
整体的空间设计围绕南京的地域属性展开,室内精装和展陈设计一体化,共同构成一幅南京城与垃圾焚烧发电厂能量循环的共同体,空间以“城里有山,山边环水,水旁有门”为形,内容以“源波”展项为核。
作为环保企业的特殊属性及对社会的价值创造与使命,我们整体设计施工的各个环节都响应低碳环保的原则:①材料选择上多以铝板等金属材质为主,材料可达到完全的回收利用,保证后期的低维护,同时降低运营成本,在5年、10年后的优势更为明显;
②从设计、工厂制作、施工、后期维护等各个流程上均采用标准流程,涉及多媒体软件的更换,都可在线上进行维护修改,各个环节都减少人力成本,同样达到低碳原则。
南京江北环保产业园区位
设计主题
灵感来源
设计配色
大堂以“城里有山,山边环水,水旁有门”的理念进行空间塑造,核心是天与地的照应,将顶部具有体量感的环形片状造型与圆形沙盘进行呼应,使整个空间更具张力。弧形门洞映射地面,两侧置沙石小景,极具南京独有的粗狂与细腻兼容的气质。
主厂房大堂
主厂房大堂
主厂房大堂
主厂房大堂
主厂房大堂
源波展项由两部分组成,从地面升起的柱状核心装置与随人影流光变化的互动墙体。核心装置代表南京成与代表垃圾焚烧发电厂的墙体进行媒体的连接交互,产生光影的变化。
主厂房核心展项“源波”
源波互动展项
源波互动展项
源波互动展项
源波展项由两部分组成,从地面升起的柱状核心装置与随人影流光变化的互动墙体。核心装置代表南京成与代表垃圾焚烧发电厂的墙体进行媒体的连接交互,产生光影的变化。
影随人动
参观走道由于工厂设备工艺流程的限制,走道长度长达156m,通过左右两侧不同形式的展项互动打破冗长感。展墙主题以南京山水、历史人文做底,蓝绿色系下融入朝阳色。
参观走道一
参观走道二
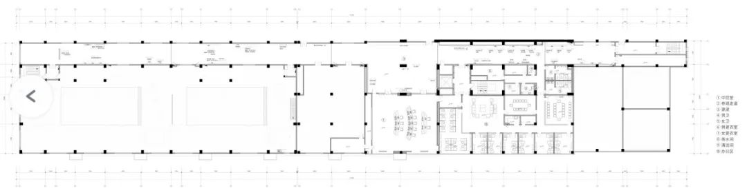
主厂房0m层平面布置图
主厂房8m层平面布置图
综合楼1层平面布置图
项目信息:
Project Information
项目名称:南京市江北生活垃圾焚烧发电厂二期项目
项目地点:江苏南京
项目业主:上海康恒环境股份有限公司、华能国际电力开发公司南京环境集团有限公司
竣工时间:2023年4月
项目规模:主厂房 2756.95㎡;综合楼 1333㎡;宿舍楼 1949.99㎡;
室内设计/展陈设计/展陈施工:上海云韬工程设计有限公司
室内设计总监:吴方浩
室内设计团队:王臣朱振华王培渊
展陈设计及施工团队:金倩惠、周捷、丁文杰
多媒体内容:上海磁计划文化传播有限公司
多媒体技术:上海光点信息科技有限公司
商务联系:021-32525660
摄影团队:Miica studio 米咖空间摄影
上海云韬工程设计有限公司
Add:上海市长宁区仙霞路350号629室
客服
消息
收藏
下载
最近





















