查看完整案例

收藏

下载
黄女士私宅装修档案
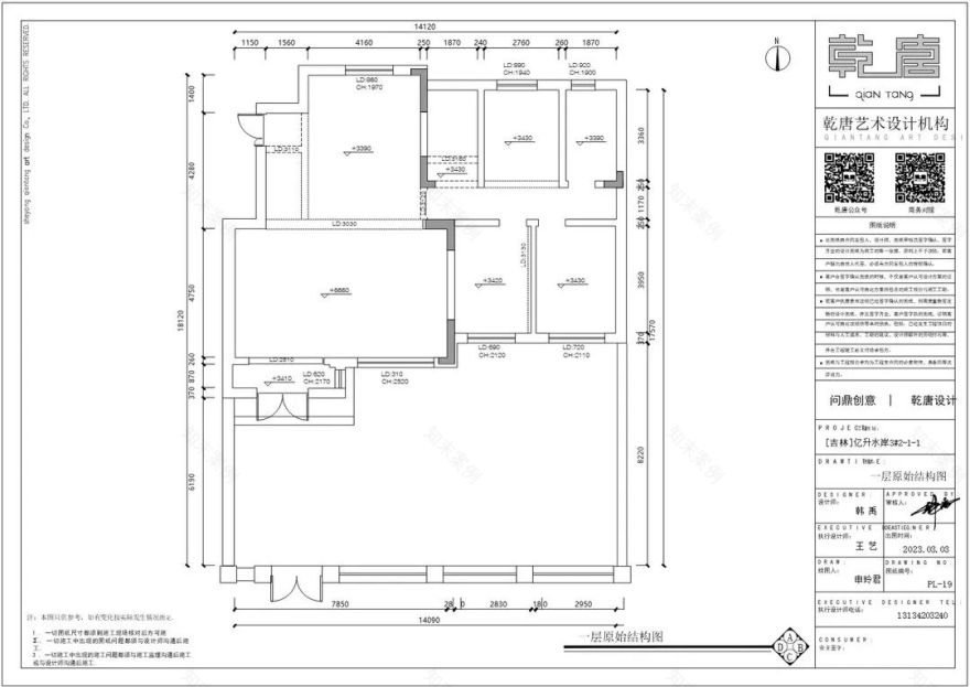
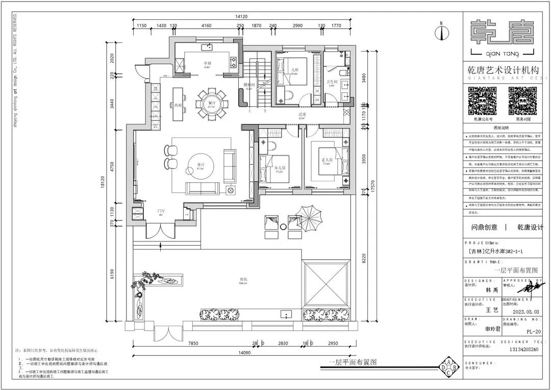
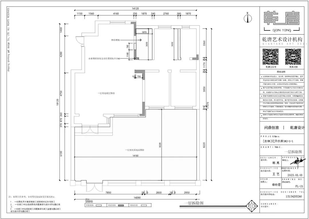
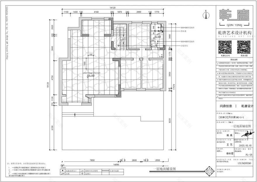
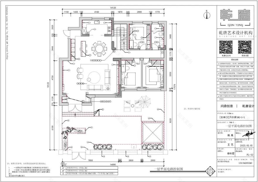
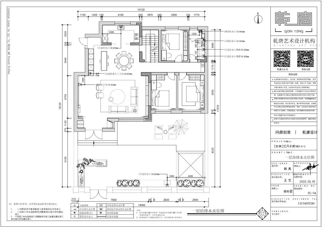
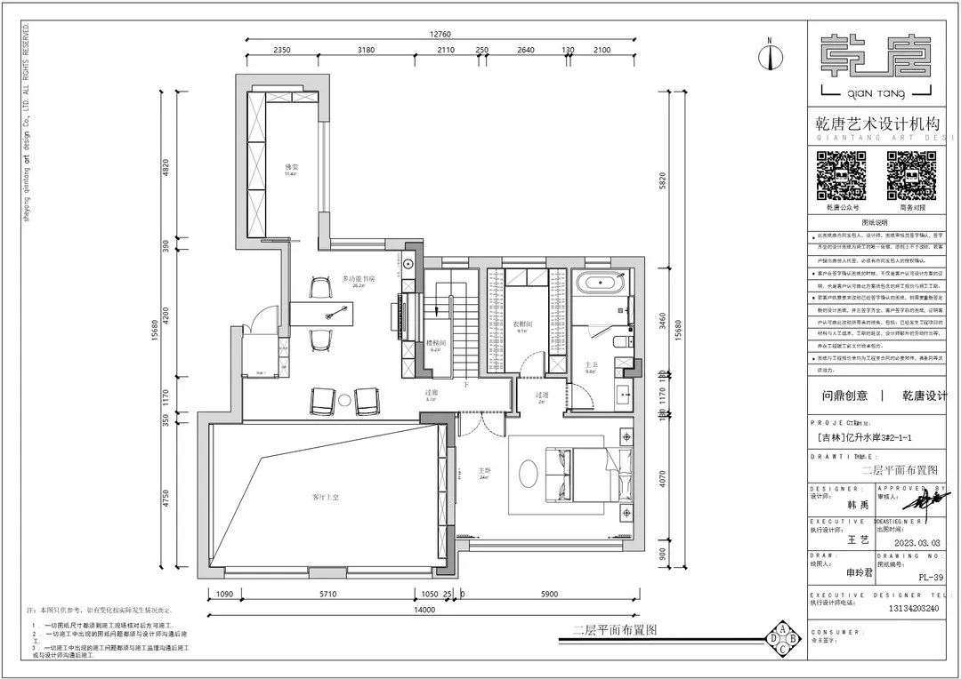
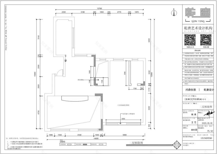
亿升水岸 3# 2-1-1
▲TDD+e 乾唐设计团队
室内设计:TDD+e 乾唐设计
设计总监:韩禹
设计团队:王艺、王明大、李孝谦、周俊含
软装设计:唐诗
项目名称:亿升水岸
项目地点:吉林白山
项目类型:洋一
项目面积:328㎡
开工时间:2023 年 4 月 2 日
预完工时间:2023 年 12 月 5 日
主要材料:云朵拉灰岩板、黑钛拉丝、鱼肚白岩板、浅灰色木质墙板、白色发光亚克力板、长虹玻璃等
左滑查看更多
左滑查看更多
左滑查看更多
左滑查看更多
左滑查看更多
界面剂通过对物体表面进行处理,该处理可能是物理作用的吸附或包覆,也经常是物理化学的作用。目的是改善或完全改变材料表面的物理技术性能和表面化学特性。
施工放线是通过对建设工程定位放样的事先检查,确保建设工程按照规划审批的要求安全顺利地进行,同时兼顾完善市政设施、改善环境质量,避免对相邻产权主体的利益造成侵害。
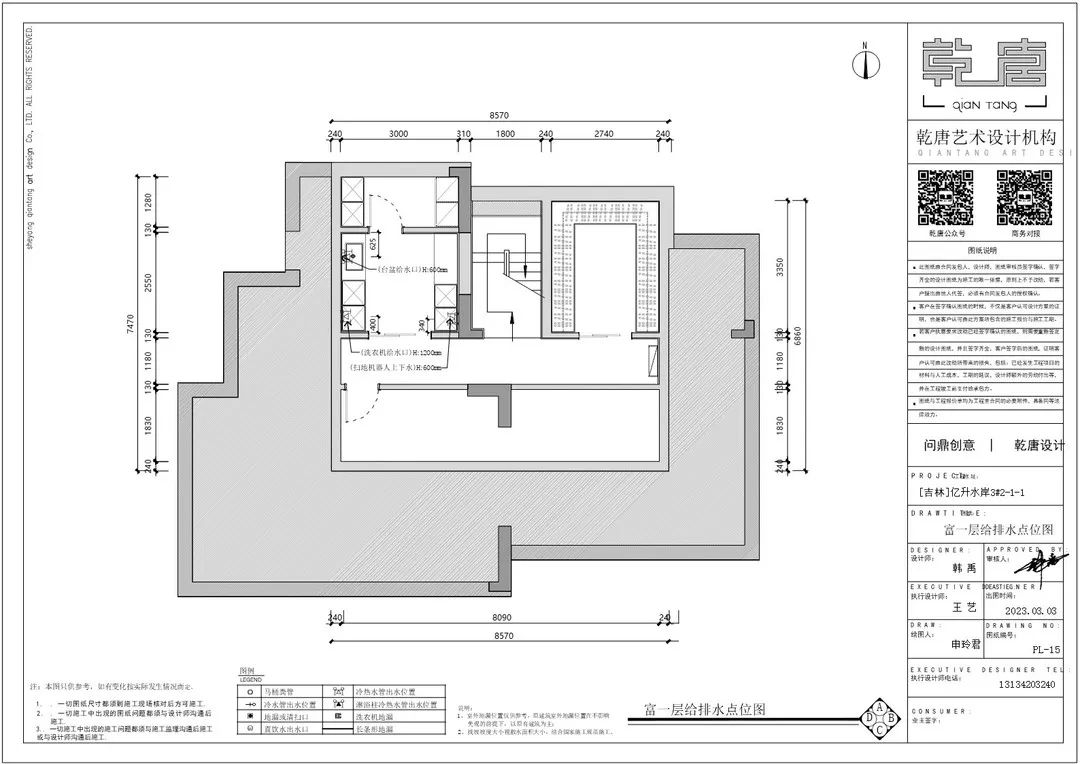
乾唐设计公司特别规定:对冷热水管路进行了分色套管处理,所有热水管均为红色,冷水管均为蓝色。一方面防止水管夏季结露,更重要的是一下子区分开来冷热水管,便于公司和客户检查,在施工和维护的每一个阶段,乾唐设计公司为客户提供上乘服务。
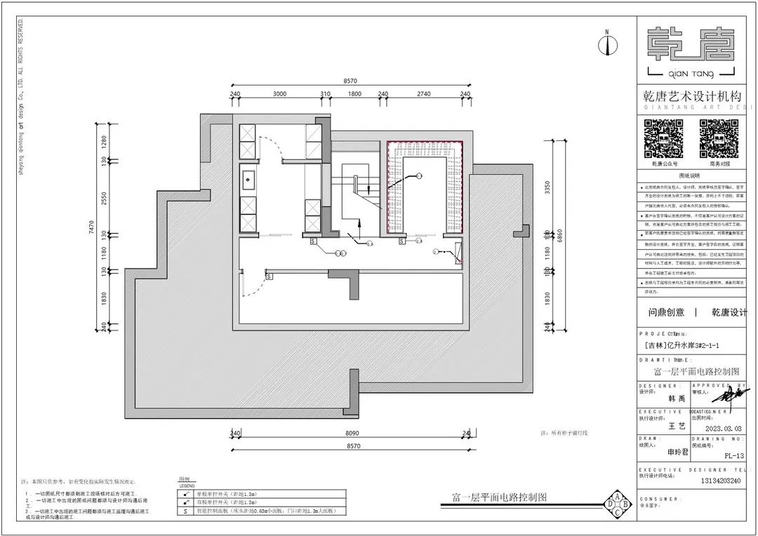
为避免强电信号受强电磁场影响,国家规范规定强、弱电平行间距不小于 20cm。为保证此规定的执行,乾唐设计公司规定不同类别的线缆使用的穿线管颜色不同,强电线管均为黄色,弱电线管均为绿色,另外电源线与通讯线不得穿入同一管内。
一、不用任何辅助工具或材料,直接弯曲管材至所需弯度。这种做法的缺点是:易造成弯曲部分的管材缩径,甚至死折,影响水流量;连接后管材因张力回弹,与分水器连接处在高压水流的冲击下容易松动、脱落;弯曲角度不容易控制,安装后外观相对散乱。
二、分水器下方用弹簧插入地暖管内,强制过度弯曲,然后接分水器。这种做法的缺点是:在强制过度弯曲过程中,管材虽不缩径,但对管材的局部外侧过度拉伸,甚至造成地暖管材外壁出现无法修复的白化,破坏了管材的承压力和使用可靠性。
三、用金属弯管卡辅助管材弯曲定位。此种做法虽能解决上述两种做法中的缺点,但由于其自身由金属冲压而成,大部分因冲压形成的飞边毛刺,在安装过程中会划伤地暖管,这就大大降低了地暖管的耐温、耐压性能;此外,由于地暖管材与金属弯管卡擦热膨胀系数和膨胀力不一致,在长期热胀冷缩摩擦过程中,加上管材自身的向外张力,加剧划痕的深度,导致地暖管漏水,给地暖系统的安全埋下严重隐患。
防水验收主要是闭水实验的记录,包括检验的开始时间、验收时间、试验时间及试验结果,并确保防水验收的合格。
第一阶段验收包括水电项目(水路改造、电路改造)的检查位置(厨卫、各空间)、检查内容及质量要求以及检查结果。
公司工艺要求,铺贴瓷砖时水泥砂浆要饱满,贴于墙面的切割仿古砖及地砖必须使用瓷砖粘接剂,以防止瓷砖空鼓现象发生。在质检部检查验收时,对瓷砖的空鼓率检查是一个重点项目。
第二阶段验收包括瓦工项目、检查位置(各空间)、检查内容及质量要求、检查结果。确保瓦工项目各项全部合格。
在检查主龙骨吊杆螺丝的紧固性,并拉拽检查轻钢花骨,保证龙骨整体稳固。检测人员在拉线(或借用水平激光线)检查副龙骨底面是否等高,从而保证石膏安装后底面的平整度。
五帝钱:顺治通寳、康熙通寳、雍正通寳、乾隆通寳、嘉庆通寳。五帝钱具有镇宅、化煞、招财、纳福、兴家等作用。寓意:家庭顺治、生活康熙、人品雍正、事业乾隆、万事嘉庆!
第三阶段验收包括木工项目、检查位置(石膏板吊棚、木质造型)、检查内容及质量要求、检查结果。确保木工项目的检验结果全部合格。
原建筑大白若为普通大白后期开裂几率非常高,必须予以铲除。(1)墙面封闭:满刷蓝色墙体封闭剂封闭墙面,增加固饱与水泥墙面的附着力。(2)墙面加固找平:满刷粉色墙固宝加固墙面并找平。(3)表层处理:整体刮批白色美饰屏,保证墙体表面细腻光滑,方可滚刷乳胶漆。棚墙在施工中就像“变脸王”,每一次“变脸”就是进行一道施工工序。
地面保护膜具有防水、防滑、防潮还有减震之类的功能,可很好地保护地面不受损失,同时对重物掉地面上能起到缓冲作用,从而更有效地保护地板、砖、大理石等地面建材。
1. 清理花园场地。不管是新接房的花园还是闲置的花园,进场施工前都需要将花园中原有的植物、杂草和杂物等清理一下,为施工腾出场地。
2. 复核场地标高和尺寸,确定花园边界线。设施图纸跟施工现场的尺寸和标高是否吻合,一定要在施工前根据设计图纸尺寸、标高和现场实际情况进行对照复核一遍,确认无误后再施工才能避免不必要的返工。除了复核尺寸和标高之外,还需要把花园的边界线确定下来,这需要物业、花园业主、邻居和施工方一起确定,避免后期因边界问题发生纠纷。
3. 简单规划一下场地布置。花园场地清理完成后,我们就应该将花园的施工场地布置简单规划一下。比如哪些部位先施工,哪些部位后施工,哪些部位可以用来临时堆放一些材料以及花园施工的通道路线怎么安排等,都需要提前规划好。
第四阶段验收包括油工项目的检查位置(各空间棚墙面)、检查内容及质量要求、检查结果。
开荒保洁是基础施工完成后全屋做清洁和除尘的一个工种。
1. 首先对全屋进行垃圾及杂物和地膜做整理和清运;
2. 对所有窗户的里外框和玻璃进行清洁擦拭;
3. 对墙体表面进行掸灰处理、瓷砖墙进行擦拭;
4. 瓷砖地面进行水刮处理,水泥地面铲拖处理。
大理石的安装方式有以下几种:
第一是干挂,这种方法是先用螺栓在墙面上固定好,然后在一块石材上开槽,用 T 形架将石材固定,再将 T 形架和螺栓固定在一起,这样的大理石墙面与墙体本身有一定距离,但固定性好。所以如果卫生间的位置足够,首推这种方法来贴墙。
第二是湿贴,要先在墙面上打一层钢筋网,再采用混凝土湿贴。这种方法黏合效果也比较好,但相对来说也更麻烦一些。
第三种方法也是相对简单的,就是直接粘贴。一般分为点粘贴和面贴。面贴法适用于薄石材,厚度在 8mm 以下,重量与墙砖差不多,可以用专用砂浆粘贴。点粘贴是采用石材专用胶,点的范围不能大于 25cm,点的量不能少于 3-4cm,粘胶的厚度在 0.5cm 以上,这种方式用于稍厚的石材。不过,直接粘贴法不适合于卫生间,因为卫生间多以轻体墙。
未完待续~
● 设计咨询
● 更多信息
百度:韩禹
抖音:乾唐設計
微博:乾唐設計
微信:13897930079
● 咨询洽谈
ADD:沈阳市铁西区北二东路 红星美凯龙设计馆顶层
客服
消息
收藏
下载
最近














































































































































































































































