查看完整案例

收藏

下载
项目信息
地址:府苑新村
城市:中国 杭州
户型:两室两厅
面积:104㎡
风格:轻法式
设计施工:浙江南鸿装饰
PART.01
本案常住两人。女业主就职于国企,性格可爱风趣,这套房子也是她的父母为自己的宝贝女儿购置的,按照女业主喜爱的法式风格进行设计。
户型功能上保留主卧、次卧两个房间,次卧留给父母过来时住,主卧的话需要给女业主单独设计出衣帽间。另外,业主有在家办公的需求,我们将这块办公区域合并到了客厅,节省空间。
空间的墙顶面用了比较多的pu线和法式角花、灯盘,提升空间的立体感、层次感与精致感。柜门把手统一使用玫瑰金色,全屋的灯饰也都契合法式的风格。软装部分多用绒布材质,质地柔和并且造型多样,在轻盈之中展现生活的意趣与温馨。
Layout Design
户型方案
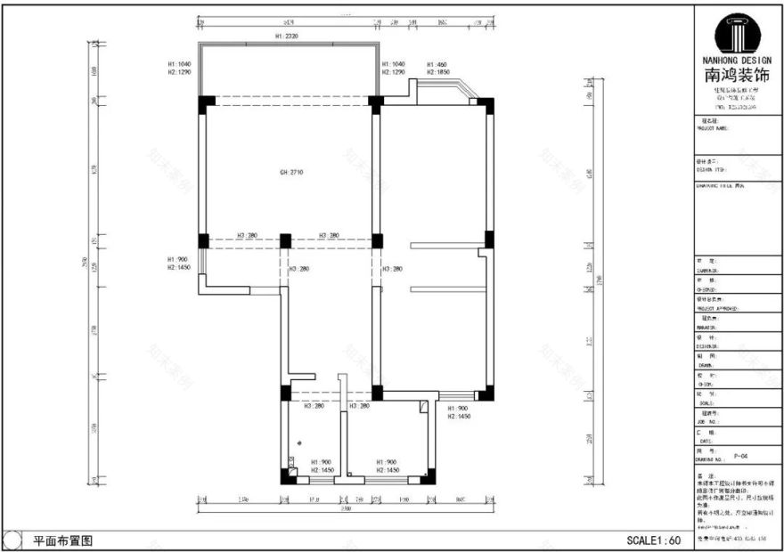
原始结构图
优点:1、每个功能区都比较方正,利用率较高;2、阳台面积大,客厅采光面大。
缺点:1、入户玄关有一根柱子,需要通过设计弱化;2、卫生间对着餐厅,隐私性不足,不是很舒服。
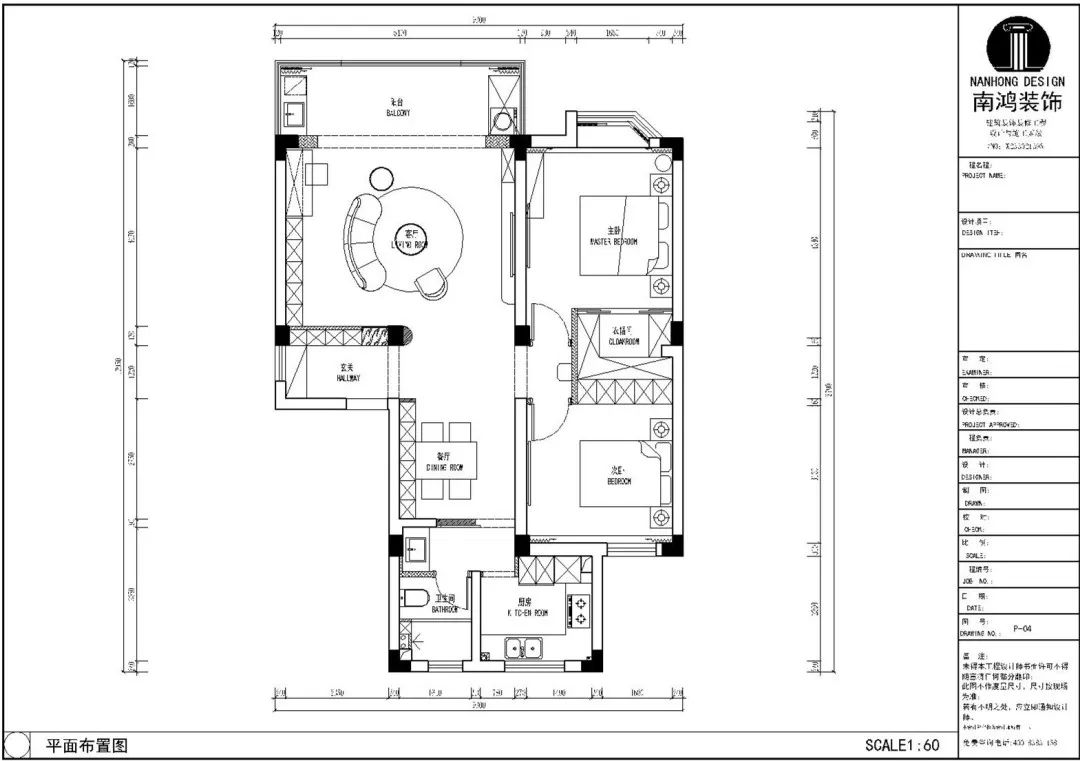
平面方案图
1、打造入户门厅,增强玄关的美观度、收纳力和仪式感。
2、卫生间台盆外置,并设计玻璃隔断,增加餐卫隐私性的同时不影响采光。
3、主卧增加了衣帽间功能区。
PART.02
/实景呈现
Hallway玄关
钥匙转动的瞬间,家的柔情诗篇也在慢慢展卷...
入户口不能拆除的柱体,我们通过设计玻璃隔断和通透的柜体去弱化存在感,也为客厅制造视觉上的遮挡。
地面用黑白花砖铺开门厅的仪式感,柔和的光线晕染出诗意和优雅。多规格的储物体量可以适配不同尺寸的物件,为空间建立起科学高效的收纳秩序。
玄关通过半拱门过渡到室内,左右两侧分别通向客餐厅,中部通往卧室的过道区域,我们设计了小端景来让视觉有一个雅致的落点。
Living Room客厅
客厅的采光面很大,光线明亮,空间格外通透开敞。
客厅内自上而下的装饰元素比较多样,材质丰富,白色底面在此时便发挥了包容的优势,很好地消除了不同元素间的对比度,调和出和谐的美感。巧妙的家具排布与色彩搭配,让视觉无形中就聚焦到了核心视听区。
绿色的花瓣绒布沙发质感复古,也易打理,搭配云朵茶几和BOBO羊羔绒单椅,让空间布满简约而舒适的格调。顶面一盏Art Deco风格的蛋白石黄铜吊灯,空间的精致感无以复加。
电视背景墙定位展示与收纳一体,拱门造型的开放格搭配格栅抽屉柜门的悬浮式电视柜,在视觉上形成多重变化与层次,实用性高的同时又有绝佳的颜值。
沙发背后做了多组白色收纳柜,长虹玻璃的柜门增强空间的灵动感和通透感。柜体延伸出开放式书桌区,为业主在家办公打造便利。顶部吊柜也采用了拱形开放格的样式,与电视背景墙形成呼应。
温暖的宜居感在空间内匀质舒展开来,圆润细腻的触感遍布全屋,设计巧妙地避开尖锐,将圆弧的形态化为艺术的无声表达。
阳台作为生活家政区使用,百叶帘自带岁月静好的感受,过滤日光,打造文艺范的优雅。地柜底部留出空档,方便扫地机器人出入。
Dining Room餐厅
餐厅延续了客厅的优雅格调,线条简约的绿色餐椅搭配奶油风吊灯,主打柔和宁静的氛围感。
餐桌相邻餐边柜,取用物品更加方便。吊柜同样加入朦胧感的玻璃材质,搭配柜内灯带,营造明亮、时尚的气场。
Bedroom卧室
主卧的背景墙线条沿用客厅,并加入分色的设计,提升空间层次感。少女粉透出可爱与轻快的情绪,搭配舒适的床品,让卧室成为这个家最令人放松的所在。
为父母留宿准备的次卧房间,在装饰上更为的素雅,棕白拼色的软包床头更方便背靠着休息,复古风实木边几和陶瓷的吊灯,共同打造古朴而宁静的居室氛围。
Bathroom
卫生间
卫浴做干湿分离,台盆外置提升日常使用效率。粉色的台盆柜悬空而置,方便日常打扫,周围用瓷砖上墙并以木纹不锈钢收边,金属色点缀出空间满满的精致。
客服
消息
收藏
下载
最近







































