查看完整案例

收藏

下载
“教育的目的在于唤醒,而不是塑造”,校园与自然环境不应该是割裂存在,我们试图从传统校园空间认知中跳脱出来,令山谷、阳光与新校园融为一体,让少年们释放好奇探索的天性,在生态宜人的校园中渡过中学时光。杭州中泰中学建校于 2001 年,随着城市人口的不断涌入,中泰中学生源不断扩大,为营造生态、自由的校园环境,余杭中泰街道迁址新校园。建筑设计在梳理周边自然、城市环境要素后,得出“study mall”设计理念,摒弃传统以课业为主的内向型校园环境,趋向于以包容的姿态去面向城市、自然与教育,营造“多动线、庭院式、共享性”的绿谷校园。
“The purpose of education is to awaken, not to shape”, and the campus and the natural environment should not exist in isolation, so we try to break away from the traditional perception of campus space and try to integrate the valley, sunshine and the new campus, so that young people can unleash their curiosity and exploratory nature and spend their middle school years in an ecologically pleasant campus. Hangzhou Zhongtai Middle School was founded in 2001, and with the continuous influx of urban population, the student population of Zhongtai Middle School has been expanding. In order to create an ecological and free campus environment, the school decided to relocate to a new campus in Yuhang Zhongtai Street. After sorting out the surrounding natural and urban environment elements, we came up with the “study mall” architectural design concept, which abandons the traditional inward-looking campus environment that focuses on coursework and tends to face the city, nature and education with an inclusive attitude, creating a “multi-dynamic line, courtyard-style, and shared campus”.
▼项目概览,Overall view of the project© 此间建筑
Part 01.校园设计背景 Background of Campus Design
中泰中学新校址位于杭州余杭区南湖新城中泰街道,未来科技城南侧,东北面挨着农田,面山临水,城市通达性高。地块呈东西长、南北宽的长方形,总建筑面积 8 万,设计将教学、运动、生活功能分别由西向东置入校园,共容纳 51 个班级,以及 400m 标准跑道,并对城市保持适时开放。
▼爆炸图,explodeddiagram© LZGC 量子构城设计事务所+浙江建院建筑规划设计院
Located in Zhongtai Street, Nanhu New City, Yuhang District, Hangzhou, the new site of Zhongtai Middle School is adjacent to the Future Science and Technology City in the south, next to the farmland in the northeast, facing the mountains and waters, with a high degree of urban accessibility. The plot is a rectangle which is relatively long from east to west and wide from north to south, with a total floor area of 80,000 ㎡. The design puts the functions of teaching, sports and living into the campus from west to east, accommodating a total of 51 classes, as well as a 400m standard running track, and keeping the campus open to the city at the right time.
▼鸟瞰及周边环境,Aerial view© 此间建筑
在设计上呼应城市肌理,空间格局做到疏密有致,将自由与集中的规划方式中和,各取所长。建筑与自然互为庇护,各个功能分散布置、辐射,打造泛核心的生态型绿谷校园,能够令学生们接受中学教育,获取更多知识的同时,也可自在穿行,跑动,远眺,在尺度亲切、生态宜人的校园中自由漫步,仿佛与山林为伴。
▼模型,model© LZGC 量子构城设计事务所+浙江建院建筑规划设计院
▼插画风小场景,renderings © LZGC 量子构城设计事务所+浙江建院建筑规划设计院
The design echoes the urban texture, adopts a sparse and dense spatial pattern, and neutralizes the free and centralized planning methods to give full play to each of its strengths. The architecture and nature provide shelter for each other, with each function scattered and radiated to create a pan-core ecological green valley campus, which enables students to receive secondary education and acquire more knowledge, and at the same time, they can walk, run, and look into the distance freely, and stroll freely in the scale of the intimate, ecologically pleasing campus, as if they were accompanied by the mountains and forests.
▼主入口处,Main entrance© 此间建筑
Part 02. 多动线串接方式 Multiple Dynamic Lines Connected
南方城市湿润多雨,夏季潮湿,风雨无阻的课外活动场地让连廊空间成为不二选择。校园规划设计了一条 2km 游廊,如一条在空中舒展的枝桠,连接起教学、体育、办公、观景等功能。整个校园采用贯通的连廊系统,学生们在廊中嬉戏、奔跑、交流或读书,让本来功能“模糊”的场所成为鲜活生动的空间。
▼体量生成与动线分析图,volume generation and circulation analysis © LZGC 量子构城设计事务所+浙江建院建筑规划设计院
Southern cities are wet and rainy, and humid in the summer. As the school needs a venue for students’ extracurricular activities regardless of the weather, the space of a corridor becomes the best choice. We designed a 2km corridor, which is like a tree branch stretching in the air, connecting teaching, PE, office, landscape and other functions. Students can play, run, communicate and read in the corridors, making the originally “fuzzy” place a vivid and lively space.
▼校园内景,Overall view© 此间建筑
核心功能区打散、重组为泛核心区域,活动艺术区分布在地块东侧,生活区与教学楼相连,由北向南分布,南边主入口则布置综合楼和实验楼。校园内部通过丰富、立体的动线将各个功能串接,释放出更多的“模糊”场所,作为组合庭院、游廊、灰空间或者观景台,如同城市综合体般实现高效互联,同时不乏趣味性。
▼功能分析图,functional analysis © LZGC 量子构城设计事务所+浙江建院建筑规划设计院
The core functional area is broken up and reorganized into a pan-core area, with the activity and art area on the east side and the living area connected to the teaching buildings from north to south. At the main entrance on the south side, there are the Complex Building and the Experimental Building, while inside the campus, rich, three-dimensional dynamic lines connect the various functions, releasing more “fuzzy” spaces as combined courtyards, corridors, grey spaces or sightseeing decks, to achieve efficient interconnections like an urban complex, while providing fun at the same time.
▼操场,Playground© 此间建筑
整个校园建筑外观均具有一定的变化与转折动势,连廊空间不止作为交通场所,还参与建筑外观形态,核心建筑文体中心的艺术图书馆和体育馆不止通过二层户外连廊相接,还通过三层连廊连为一体,楼梯与过道部分外显于建筑立面,成为一道与自然对话的“瞭望窗”。
▼剖透视图,sectionperspective view © LZGC 量子构城设计事务所+浙江建院建筑规划设计院
The overall appearance of campus buildings exhibits certain changes and turning momentum. The corridor space is not only a transportation place, but also involved in the building appearance. The core buildings, i.e. the arts library and gymnasium of the Cultural and Sports Center, are not only connected through the outdoor corridor on the second floor, but also integrated into one building through the third floor corridor. The stairs and aisles are partially visible on the façade of the building, making them “windows” for dialog with nature.
▼学生到操场的路径,Student’s path to the playground © 此间建筑
▼学生回教室的路径,Students’ path back to classroom © 此间建筑
Part 03.宜人的景观尺度 Pleasant Landscape Scale
校园设置三个由动至静的景观节点,分别为入口广场景观,乐礼广场景观以及生活广场景观,校园组团的活动空间围绕庭院而生成,打造以中心庭院为主,组团次庭院广场为辅,尺度宜人多庭院系统。
We designed three landscape nodes from dynamic to static for the campus, which are the entrance plaza landscape, the music and ritual plaza landscape and the living plaza landscape. The activity spaces of campus clusters are mainly courtyards, with the central courtyard as the main one, supplemented by sub-courtyard plazas, so as to create a pleasant and multi-courtyard system.
▼校园景观,Campus landscape © 此间建筑
为满足校园对外界形象以及人流疏导的需求,入口有两条入校路径,或沿阶梯向上攀爬,或由入口广场进入校园,广场空间方正简洁,体现现代进取型校园的风范。乐礼广场占据校园中心位置,其中置入模拟山水形态的石块,成为“绿谷校园”的抽象演绎,室外阶梯及游览横亘于庭院中,如同处在山谷。生活广场尺度宜人,与其他教学楼之间的庭院组团构成了“片状的自然”,以盎然绿意激活学生与教员们的身心。
To meet the campus needs for a good external image and traffic diversion, there are two entry paths to the campus. Students can either climb up the steps to enter the campus or walk through the entrance plaza, which is a square and simple space, reflecting the modern and enterprising style of the campus. The music and ritual plaza occupies the center position of the campus, where stones simulating the shape of mountains and water are placed, becoming an abstract interpretation of the “Green Valley Campus”. The steps and excursions outdoor are stretched across the courtyard, as if they were in a valley. The living plaza, a comfortable and pleasant space, forms a “flaky nature” together with the courtyard clusters between other academic buildings, to activate students and faculty with lush greenery.
▼廊下空间,Space under the connecting space© 此间建筑
“链接”自然,“链接”人群的概念还体现进建筑形态之上。为了让人联想到自然,校园入口屋顶、窗户隔栅、连廊墙和顶均采用木质元素加以附和,通过排列、交叠、铺设等方式,让空间细腻起来。
The concept of “linking” nature and “linking” people is also reflected in the form of the buildings. In order to evoke associations with nature, the roofs of the buildings at the entrance, the window grilles, and the walls and roofs of the corridors all use wooden elements which are arranged, overlapped, and laid in such a way as to make the space as subtle as possible.
▼连廊,Connecting corridor © 此间建筑
▼连廊框景,Corridor framed view © 此间建筑
Part 04. 探索型立体校园 Exploratory Three-Dimensional Campus
“一个人的好奇心同他所受的教育是成比例的。”——卢梭。成长的过程中仍然保有好奇心,是一件难能可贵的事,由校园设计出发,旨在激发学生探索的驱动力。中泰中学校园内部空间丰富立体,入口综合楼楼呈现口子型的窗口,象征中学的开放精神,而文体中心建筑单体通过大尺度的切削、变形,打破平淡的空间构成,令建筑成为校园一景,行走其中步移景异,如同在山谷间穿行。
As Rousseau once wrote, “a man’s curiosity is in proportion to his education.” It is rare and commendable to grow up and still retain a sense of curiosity. The campus design intends to inspire students to explore. Zhongtai Middle School has a rich and three-dimensional campus space. The Complex Building at the entrance presents a window-shaped opening, symbolizing the open spirit of the school. The building at the Culture and Sports Center breaks the dull spatial composition through large-scale cutting and deformation, making the building a scenery of the campus. Every step of walking through it gives you a different scene, just like walking through valleys.
▼入口楼梯,Stairs at the entrance© 此间建筑
整个中泰中学更像是一个“多孔的海绵”,阳光、景色穿透进来,除核心空间之外,多平台共享空间构成校园能量的发生场,平台之上的校园更加立体多维,可远望群山,视野开阔。共享空间避免过于聚合而变得沉闷无趣,而是呈现散点自由的分布形态,或出挑、或遮挡,随时等待学生发掘新乐趣。
The entire Zhongtai Middle School is more like a “porous sponge”, with sunlight and scenery penetrating in. In addition to the core space, the multi-platform shared spaces constitute the main energy field of the school, and the campus above the platforms is more three-dimensional, with a broad view of mountains afar. The shared spaces are not too aggregated to avoid becoming dull and uninteresting, but rather present a scattered and free distribution pattern, either protruding or obstructing, waiting for students to explore at any time.
▼走廊中的学生,Students in corridor© 此间建筑
▼其它校园建筑,Other school building© 此间建筑
在探索校园的过程中,教育重新与学生获得舒适的链接,而不是强硬的对抗,这也是我们此次设计的起点,并期待未来使用中发现更多的可能性。
In the process of exploring, students will be connected to education through a comfortable link, instead of a forced connection, which is also where we started with this design and we look forward to discovering more possibilities in future use.
▼总平面图,master plan© LZGC 量子构城设计事务所+浙江建院建筑规划设计院
▼平面图功能,floor plan features © LZGC 量子构城设计事务所+浙江建院建筑规划设计院
▼学生寝室平面,student dormitory plan
© LZGC 量子构城设计事务所+浙江建院建筑规划设计院
▼标准教室平面,standard classroom plan© LZGC 量子构城设计事务所+浙江建院建筑规划设计院
▼文体中心平面 1,cultural and sports center plan 1© LZGC 量子构城设计事务所+浙江建院建筑规划设计院
▼文体中心平面 2,cultural and sports center plan 2© LZGC 量子构城设计事务所+浙江建院建筑规划设计院
▼立面图,elevation© LZGC 量子构城设计事务所+浙江建院建筑规划设计院
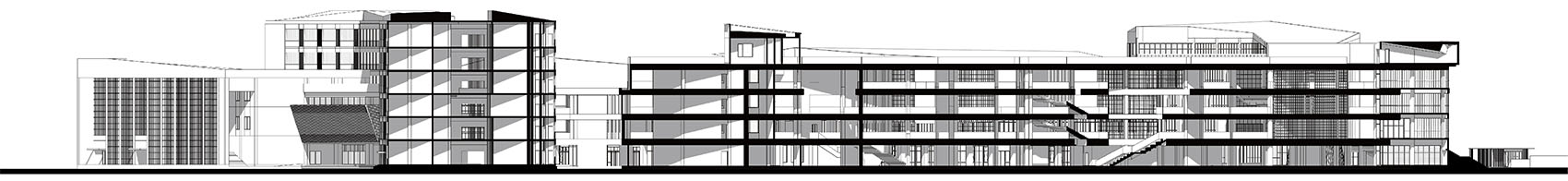
▼剖面图,section© LZGC 量子构城设计事务所+浙江建院建筑规划设计院
客服
消息
收藏
下载
最近









































