查看完整案例

收藏

下载
Pignic是一位饲养员,他在精心饲养小型猪。
Pignic is a breeder who themselves raises miniature pigs with great care.
▼室内空间概览,Overall view of the interior ©宮本啓介
Pignic也是一家由饲养员直接经营的咖啡馆,因此它为顾客提供了一个可以在惬意和轻松的氛围中与小型猪互动的地方。最重要的是,Pignic用心致力于指导和教学如何饲养并销售小型猪。
Since Pignic is also a cafe directly managed by the breeder, it provides a place where people can interact with miniature pigs in a stress-free style and relaxing atmosphere. On top of that, Pignic is very committed to instruct and teach how to raise and sell micro pigs.
▼温馨多彩的空间,Cozy and colorful spaces ©宮本啓介
人类在与动物的互动中感受到柔软、温暖和被治愈的同时,也能通过这种互动体验到内心的平静和满足感。
While humans feel softness, warmth and a sense of being healed by interacting with the animals, they can also, through this interaction, experience a peace of their mind and achieve a sense of fulfillment.
▼走廊,Corridor ©宮本啓介
▼互动房间,Interacting room ©宮本啓介
因此,代代木公园的Pignic咖啡厅,用柔和的曲线塑造每个角落,为顾客和猪设计了一个治愈且放松的空间。
Therefore, when it comes to Pignic Cafe at Yoyogi Park, by expressing all corners with soft curves we have designed a healing and relaxing space both for people and pigs.
▼由互动房间望向走廊,Viewing the corridor from interacting room ©宮本啓介
▼与小猪互动中的顾客,Customer interacting with pigs ©宮本啓介
事实上,通过给所有的墙壁和天花板抹灰,并用涂料和插画装扮墙面,我们已经成功地创造了一个完全由曲面包裹的室内空间。
In fact, by plastering up all the walls and ceiling as well as applying coating and illustration from above, we have managed to create an interior where all corners are curved surfaces.
▼温馨的灯光,Cozy lights ©宮本啓介
我们希望这个地方能为人们和小型猪带来新的邂逅机会。
We hope that this place will bring new encounter opportunities for people and miniature pigs.
▼有趣的细节处理,Interesting details ©宮本啓介
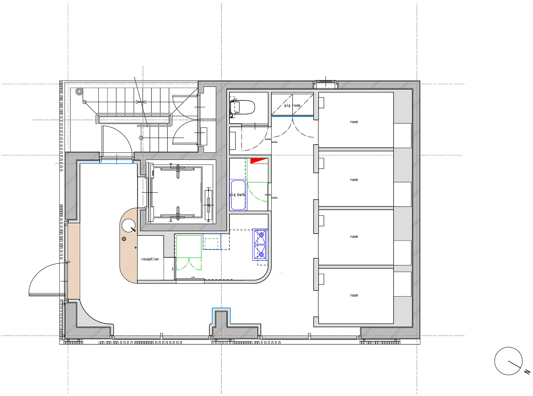
▼平面图,Floor plan ©KAMITOPEN
所在地:東京都渋谷区富ヶ谷1-17-3 2階
オープン:2022年6月11日
設計:KAMITOPEN 吉田昌弘 高橋柚月
床面積:57.41㎡
Photo:宮本啓介
内外装仕様データ
床:既存躯体の上リノリウム貼り(マーモリウムシート ML-3352/田島ルーフィング)
壁・天井:LGS組み+PBt12.5下地モルタル仕上げR角加工 床面同色グラデーション塗装 一部塗装仕上げ
客服
消息
收藏
下载
最近















