查看完整案例


收藏

下载
幼儿园作为一所非正式学校,是孩子们日常生活、在玩耍中学习、学习的空间,是他们的家外之家,是他们变得独立、遇见新世界的地方。
在给定的地点,位于斯科普里的一个住宅区,由独立的住宅建筑建造,新幼儿园的解决方案完全融入环境。
这所幼儿园的解决方案是一套单独和共同运作的活动,并声称接受孩子们,给他们探索和发现的机会,同时给他们安全感和自由感。
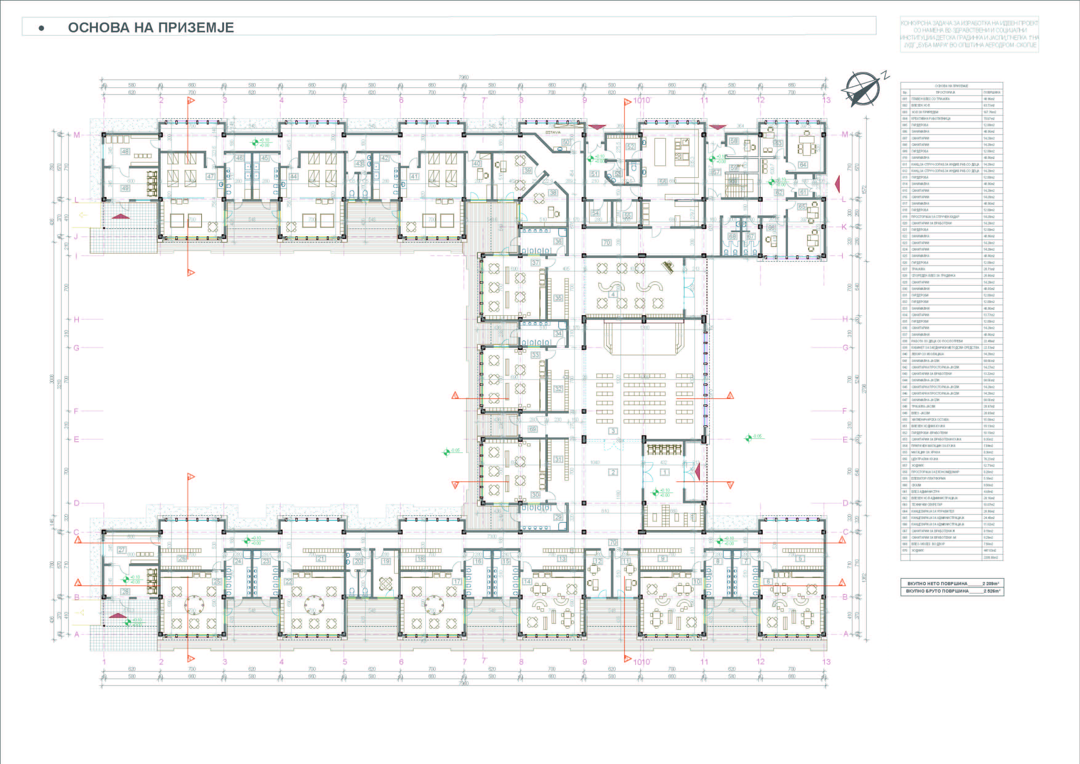
从概念上讲,幼儿园被设计成由小房子组成,形成两个院子(前院和后院——公共院子和私密院子),每个活动室都位于一个单独的房子里,具有不同的立面颜色,强调了一种感觉属于一个团体。
按照规范,幼儿园可容纳9组(活动),托儿所可容纳3组(活动)。
底层幼儿园总建筑面积2526平方米。
该幼儿园规划的活动室面积为49平方米,每个活动室设有12平方米的衣柜和14平方米的卫生设施。
育婴室(娱乐)分为睡眠区和游戏区两部分,总面积60平方米,每个娱乐室都有自己的卫生设施。
幼儿园的解决方案是一个目标——根据需要和特殊用途区域最大限度地尊重和利用有利的朝向、阳光和可达性。
幼儿园的游戏室面向南面和东南面,其位置和立面的玻璃表面为孩子们在幼儿园的整个逗留期间提供了充足的阳光。
服务区和行政区位于建筑及场地的北部和西北部,其下规划有地下室,并设有辅助用房。
幼儿园的主入口位于大楼的东北侧,在其自己的位置上为家长提供了停车通道。
从工地的东北侧,从 Crnorizec Hrabar St. 开始,有一条通道供员工停车、进入服务区,同一条通道通向 Mitre Vlaot St.,为消防车提供通道。
该解决方案还为幼儿园团体提供了一个单独的入口(西南公寓 - Mitre Vlaot 街),并为同一条街道的幼儿园团体提供了一个额外的入口。
表演厅、创意工坊等儿童公共活动空间均面向主入口,方便家长接送孩子时出入,创意工坊可作为家有儿童的活动室。停留时间较长(值班室)。
主入口前设置了户外表演舞台,可以在不影响内院私密性的情况下进行户外表演。
爱好室正面的表情代表了带有倾斜屋顶的房屋的原型,并且在每个爱好室中都重复出现。入口派对——活动大厅的形状与房子相同,轮廓接近孩子对家的认知,并以其建筑表现力吸引孩子来到他的第二个家——幼儿园。
儿童的卫生设施设置在房屋之间的休息处,在这个概念性项目中,计划建造一个接触式立面,其屋顶被决定为一个带有广阔的绿色屋顶花园的平屋顶(这是自我维持或需要最少的维护),并且凭借第五个立面,该建筑完全融入绿色植物,提供了一个更绿色、更健康的环境。
每栋房屋都设有通风的立面,采用矿棉隔热材料和覆盖屋顶的纤维水泥板,形成了一个独特的围护结构,提高了能源效率,并计划隐藏用于排水的排水沟。
该建筑由钢筋混凝土框架和梁组成。
院子里提供了园艺解决方案,可以种植当地树种,如椴树、山毛榉等。作为解决方案,他提出种植果树。内院有一个菜园,孩子们可以在这里积极参与教育活动。
幼儿园的院子是一个不受噪音和风影响的角落,孩子们可以在按年龄段提供的儿童游乐场和一般绿地上不间断地玩耍。
客服
消息
收藏
下载
最近

















