查看完整案例

收藏

下载
01
耕造建筑设计
项目位于上海,住房套内面积106㎡,这间屋子内,将会摆放收藏的艺术品、旅行纪念品、书籍、玩具;夜晚会窝在这里看电影,听音乐,阅读,听雨或者发呆。
纯白的餐厅与客厅,最大程度简化空间,使其成为单纯的背景,可包容软装的多样性。
客厅纯白的背景墙上展示着业主收藏的艺术品画作。
厨房敞开与关闭时的状态,灯芯玻璃散发温柔朦胧的光。
书房入口是特别定制的三拼花玻璃门,玻璃的纹理在不同观察角度,呈现出丰富的光晕,是通往“小黑屋”的神秘入口。
书房以暗灰色混凝土为基底,独留一面猩红色砂岩墙面作为“呼吸点”。满铺的土耳其地毯是空间中的一笔浓墨重彩,将氛围推至最高点。
书房中,随处可见不同风格的碰撞。
在空间上,卫生间北通客厅,南达卧室,形成一个独立的洄游动线。
卫生间比较大胆的设计改动点是:将客厅阳台东北角改造为开放的淋浴区。
项目名称:SYJ私宅设计
设计团队:耕造建筑设计
项目地址:上海静安
建筑面积:106㎡
摄影版权:WM STUDIO/盘达/Jason
02
云行空间设计
在城市的喧嚣中疲惫地周转,人口密度的压抑与快节奏的工作如同无形的枷锁,束缚着人们的灵魂。于是,人们渴望寻找一片净土让紧绷的神经得以松弛,让疲惫的身心得以休憩。
客厅作为家的核心,以开放式的设计引领整个空间。
光线透过玻璃窗,洒进室内照亮空间结构,仿佛赋予它们生命与灵魂,渲染出可视化的感染力。
打破传统的固定格局,采用开放式的设计手法,将不同功能区域进行灵活的划分和重组。
多功能空间诠释无定义的设计和生活,超越了传统的定义和界限,成为一个集工作、休闲、娱乐、思考于一体的全新生活载体。
多角度的视野,目之所及仿佛可以触摸到每一个角落的质感。
开放的场域是多元文化的交融之地,是创意与创新的源泉。
以空间为媒,以光为魂,空间不再是静止的背景,通过巧妙的转承和连接,在方寸之间,让空间与空间之间产生有机的联系,形成流畅的生活动线。
楼梯将功能和艺术兼并,将空间的美妙层次描绘得淋漓尽致。光线穿透其间,以最细腻的方式潜游在空间深处,空灵且悠长。
时光静好,木色温情。与自己对话,与灵魂相遇,享受着专属的静谧之域。
一间屋子,一方天地。设计沉静的力量超越了简单的装饰,成为了一种生活的态度。
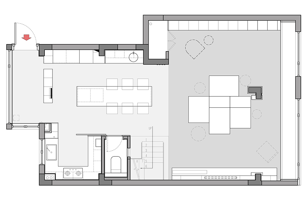
△
一层平面图
△
二层平面图
项目地址:安徽 芜湖
主创团队:云行空间建造设计
工程施工:云端建设
建筑面积:228㎡
空间摄影:黄秉文
延伸阅读
▽
客服
消息
收藏
下载
最近

























































