查看完整案例

收藏

下载
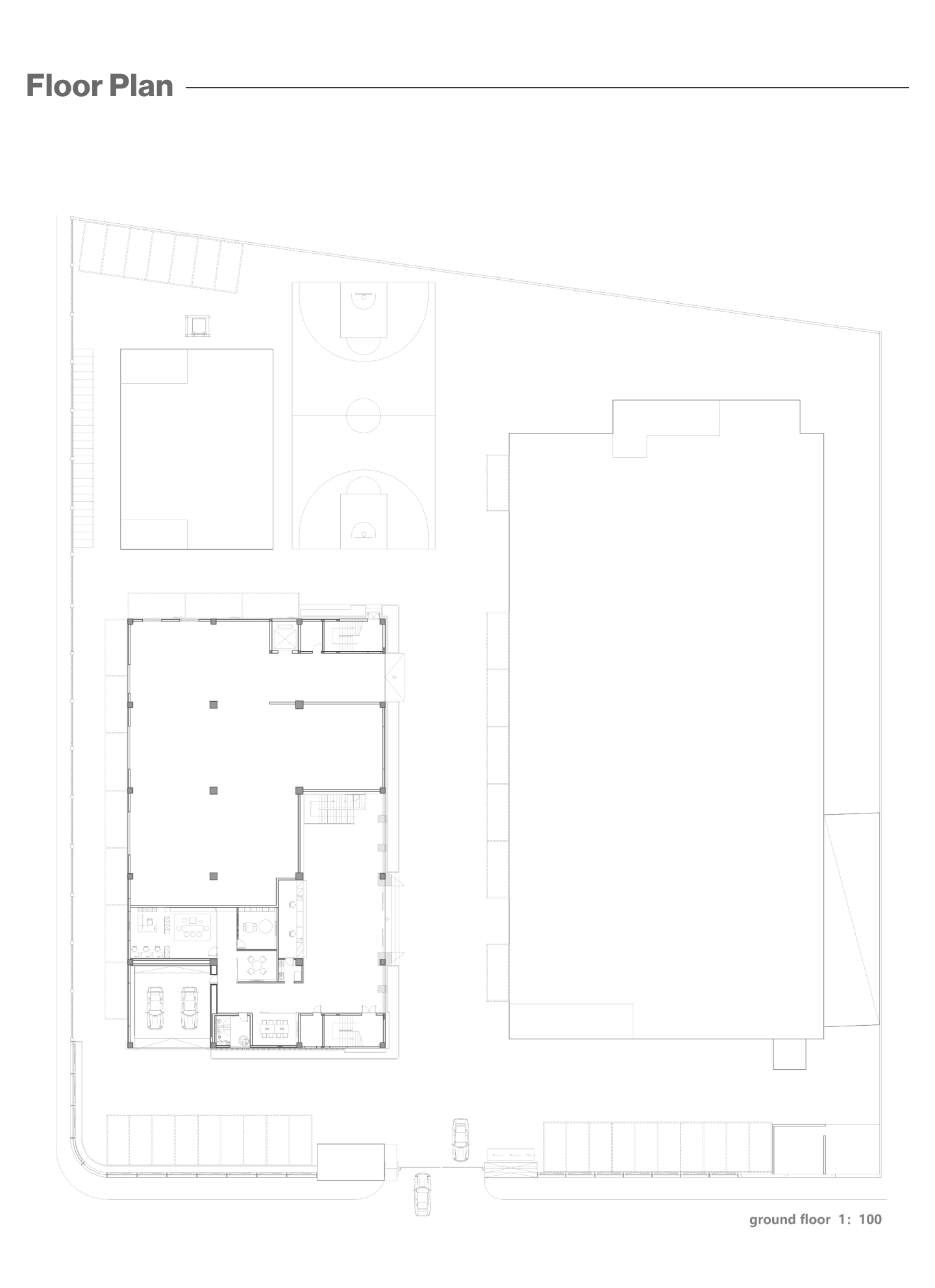
KClighting 是一家专注于商业空间照明产品的研发生产、销售、服务于一体的创新型企业。新总部选址位于中山小榄一处工业园内,前身为陈年老旧的工业厂区,面积约 3 万平方米。E Studio 受 KClighting 委托,为其进行改造,使旧厂区成为一个集合总部办公-展厅-研发工厂-宿舍的综合性园区。
Fall into the Real World
笼罩在一种神秘气氛中,这并不是刻意的颠覆行为,低光环境能让人联想到电影沉浸式的氛围。
如何为周边街区增添活力与生机、如何为城市更新和建筑复兴提供新的可能性,成为设计中需要着重考量的一环。
项目视频
考虑到中山周边工业建筑复杂无序的现状,项目采用去繁从简的手法,在保留原建筑结构的基础上,追求“内敛的丰富性”,依赖于一个拆解到最低限度的纯粹概念,最纯粹的姿态和凭直觉感知的表达,以极简的建筑外观达到摆脱周边无序建筑、引发好奇的效果,打造出具有创新性、前瞻性及可持续性的现代建筑体,独属 KClighting。
第一眼看上去是如此简单,如此界限分明,甚至可以说,这种直接和明确让作品本身看上去既不复杂也不模糊。设计师认为建筑不是一种包含空间的形式,而是一种体验、一个通道。
基于西南侧为人流主要方向,选择将办公楼的西南面和东南面作为园区的主要形象窗口,尽可能减少装饰材料带来的环境污染。
在保障原有厂房外立面框架基础稳定的前提下,设计师拆除了一些墙体,重新设计了外立面的窗口,进行了扩大和整合,并采用阵列排布,形成严谨有序的感觉。这不仅优化了视野,增强了自然采光,还有效地降低了能源损耗。
在建筑原有立面上覆盖统一的黑色涂料,上层采用竖向的黑色金属方通,转角处包裹黑色金属,通过精细化设计,让建筑构件更加和谐地融入到景观及建筑中,建筑的层次也由于金属的介入而丰富起来,金属的反光特性,塑造了建筑独特的形象,为项目增加现代工业建筑的先锋特质,三种不同黑色材质形成复杂但统一的肌理。顶层立面新增一排凸出的窄长窗,作为面向城市的取景器,在立面上打破矩阵窗户均匀分布的排列模式 ,进一步提升了建筑的空间美感。
可持续制造,高效生产和绿色建筑。拆除一座建筑往往会产生大量废料,因此本次园区改造没有选择推倒重来,而是遵循最小干预原则,在最大程度保留原建筑结构的基础上进行优化和更新。建筑使用了大量人造石、木材、外墙漆等环保材料。材料挑选采取就近原则,运输控制在方圆三百公里以内,在保证高效的同时,最大限度地减少材料搬运带来的碳排放。想实现低碳目标,关键要巧做“加减法”。建筑采用中空玻璃对建筑表皮隔热保温,能够有效孤立冷热气流的传输,减少室内温度的变化,降低采暖和空调能耗,同时,中空玻璃还可有效隔音,使室内环境更为舒适。在屋顶铺设太阳能光伏面板,光伏产品和建筑不仅仅在外观上有机融合,产生的绿色清洁能源还能满足厂房办公所需,实现自给自足,最大程度地提高性能和能源效率。大堂入口门头以黑色金属折线塑造,在黑色涂料之间制造了更多的层次,柔化了建筑内外生硬的界限。
这是一个四层楼的旧厂房建筑,设计师没有选择直接用电梯的方式去解决垂直动线问题,而是根据各个空间的气质搭配不同形态的楼梯去串联各个楼层,以楼梯为载体,形成了一条串联起一至三层的垂直动线,这条垂直动线衍生出了一个多样化需求的功能平台。
由于建筑每层楼的高度偏矮,设计师选择拆除了局部楼板,使得大堂获取了两层楼的挑高空间,此时一块巨大的金属斜面降临眼前,它是雕塑性的,如此具有表现力,能展现一个时代或一种性格,并带来一种冥想状态。
Wood Material
Washing Table
Spatial detail
△项目视频
办公楼由四层旧厂房改造而成,功能集企业大堂/办公/展厅/实验室/空中庭院于一体,其中二层为 KClighting 灯具工作室。
基于 KClighting 品牌气质与国际化的创意研发团队特质,整体办公布局策略以人的使用为逻辑,融合灯具产品的应用情景构建出一个可直观感受的灯光研发生活空间。
建筑原始梁柱网格框架与窗户的关系形成内在秩序,各功能区域的布置自然地在这个基础上进行演化,我们选择裸露的原始天花来加强这种秩序印象,新置入的办公功能则以简洁的体块造型延续 KClighting 极简的品牌核心精神。
咖啡区、会议室、脑暴阶梯、研发区散落在空间的各个角落,赋予不同的雕塑性几何特征,相互留出空间并形成空间的分区,空间上消解了大通铺的办公位带来的压迫感。
两个楼梯在垂直方向连接了一层大堂与三层展厅,会议盒子就轻盈地悬空在一二层的挑空上,在室内构建出一个立体的垂直城市,丰富办公区域之间的视觉趣味和互动。
粗犷的混凝土与极致的灯具产品碰撞出一个轻松、自由、灵活、艺术的场所,办公氛围侧面体现出品牌理念,比起对外精致包裹着的正襟危坐的商务办公姿态,设计师更青睐于创造一个服务使用者迸发灵感的自由之地。
各区域不仅是适用生活办公的空间,也是展示灯光应用场景的重要载体,灯光渲染的情节氛围是最直接的产品介绍。
研发部体块像一块黑色纪念碑落在广场中央,宽大的工作台面设置转折的磁吸轨道可快速测试灯具性能,在部门分区之间形成一种开放性隔断方式,转折之间既开放又分离,灯具设计师就在这纪念性极强的体块中办公让灵感可见。
设计从功能出发,但最终不应止于解决功能性的问题。在人们对美学评判更加包容的今天,办公场所不再囿于传统的单一办公模式,而是从使用者的需求出发不断尝试更加多样化的办公体验。
光,是一种纯粹的自然元素,它既是一种可以被观察的物质,也是一种可以被感知和体验的现象,从建筑室内到产品细部全方位传递 KClighting 极简的品牌态度。
旧改原貌
项目委托|KClighting
项目地点|中国 广东 中山
项目面积|30,000 m²
完成时间|2023.01-2023.07
空间设计|E Studio 壹所设计工作室
主持设计|范君健、周炫焯
设计团队|黄晨曦、张洁莹、刘淑琦、徐萌
物料设计|周婧
项目摄影|张超建筑摄影工作室
空间主材|GISEM 吉诚不锈钢、VOXFLOR 华腾地毯、华润水泥、LAMINAM 岩板、FLORINA 费罗娜水泥瓷砖
家具品牌|MATSU 玛祖铭立、Grado 格度、FRANK CHOU COLLECTION、聚美
定制柜体|LEJU 乐居
灯光设计|KClighting 康彩照明
范君健|周炫焯
壹所设计(E Studio)联合创始人
E Studio
壹所设计于 2018 年由范君健与周炫焯共同创立。
E Studio
致力于探索商业空间设计的多元化创意服务。团队坚持跨学科、跨文化的多元视野,具有敏锐的品牌洞察力及缜密高效的产品型思维。持续为不同行业的头部品牌提供前沿的室内、建筑、品牌的创意服务,囊括 DJI、哈苏、腾讯、网易、戴可思、传音、联影、悍高、九毛九集团、KClighting 等,至今 E Studio 作品已斩获数十项国际赛事殊荣。
客服
消息
收藏
下载
最近













































































