查看完整案例

收藏

下载
之外空间设计事务所
BEYONDDESIGNSTUDIO
设计说明
【破岩】清 · 郑燮(xie) 《竹石》咬定青山不放松,立根原在破岩中。千磨万击还坚劲,任尔东西南北风。马天成 《旅行记》中提到:净化土壤长出生命力;净化心灵生发智慧!
设计意为空间寻找一种向上的生命力。
色彩分析
白鹭色同类色搭配,不论是灰色还是黑色,都会形成一幅优雅隽永的水墨画效果,风情,极具东方情调。
白鹭色搭配大地色调,将醇厚的色彩,独特的包容感尽情展示出来。原始的自然土地,在阳光的衬托下交织成富有生命力的艺术世界,在光线的变化之间,你或许可以看到千万种色彩的变化。
原始照片
效果展示
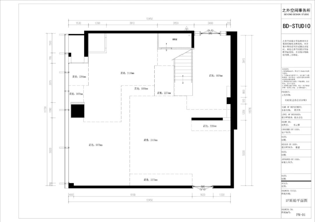
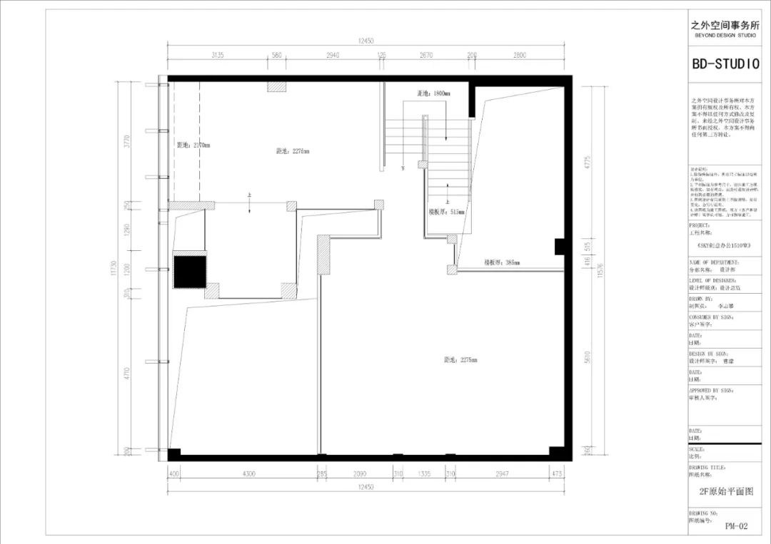
原始平面图
平面布置图
项目名称:破岩
】博鳌一龄养生会所
项目地点:石家庄SKY办公中心
设计团队:之外空间设计事务所
主案设计师:曹濛
感谢甲方对BD-Studio的信任和支持~
共同参与享受了如此美妙的设计过程~
希望之外能与您一同前行
曹濛
从业十五年
毕业于:四川传媒 环艺专业学士学位
2017-2018 中国设计星全国最佳人气奖
2017-2018 中国设计星全国12强
2017-2018 第二届红鼎奖 商业空间类TOP10设计作品奖
2017-2018 第二届红鼎奖 住宅空间类TOP10设计作品奖
M+中国高端室内设计大赛
China Top Interior Design Award
2018年度影响力TOP100
2019金住奖-2019中国(石家庄)十大居住空间设计师
中国陶瓷创新产品与空间应用设计大赛 优秀设计师
2020 中国建筑装饰材料应用与空间设计先锋汇 优秀设计师
2020-2021 40 UNDER 40 中国(石家庄)设计杰出青年
2021-2022 金堂奖 年度杰出零售空间设计奖
2021-2022 40 UNDER 40 中国(河北省)设计杰出青年
2022-2023 40 UNDER 40 中国(河北省)设计杰出青年
“情理之中意料之外”之外空间设计事务所
欢迎大家关注主理人
随时了解
BD-Studio
的最新动态
Add:河北省石家庄市裕华区中冶盛世广场C座1610室
客服
消息
收藏
下载
最近

















































