查看完整案例

收藏

下载
在澳门,充满烟火气的牛杂摊,和繁华璀璨的赌场,往往只有一街之隔。这样的纵横历史的穿梭,使澳门即有趣又神秘,赋予了这座城市独特的魅力。漫步澳门的街头,常常让人陷入一种时空交错的恍惚,仿佛上一刻,时间凝固在昔日的繁华,下一秒,又跌入当下的喧嚣。
位于新马路的六国饭店(葡萄牙语:
Restaurante Lok Kok),曾是澳门的一家著名茶楼,诞生于1913年,由广州茶楼大王谭杰南创办,当初名为“得心”。
它是澳门文物名录中被认定为“具建筑艺术价值之楼宇”的珍贵遗产。
1938年抗日战争初期,酒楼改名为六国饭店,与“冠男”及“大龙凤”一同矗立,三者与营地大街的“远来”并称为“澳门四大茶楼”。
电影《海上花》和《群龙戏凤》曾在此取景,留下了无数经典瞬间。
然而,如今的六国饭店已经历了百余年的风雨洗礼,焕然一新,变身为一座拥有62间客房的精品酒店,隶属于澳门新东方集团旗下。
坐落于澳门最繁忙的街道之一 新马路。
进入缆厂巷,一条幽长的
小巷,就是酒店的大门。
这里是旅人们忘却路途疲惫,感受澳门历史与现代气息的地方。
酒店的公共区域采用了装饰主义风格的设计,墙面和天花板选用了天然橡木、胡桃木和墨绿色手工花砖作为主要材料,以古铜及墨绿色金属条则点缀其间。这些花砖和色彩的拼贴以原六国饭店的用餐空间为灵感,将其以更简洁克制的现代设计语言重新诠释。
我们也对古建筑的花砖做了研究,以原六国饭店的窗户作为灵感,为二层的休息大堂设计了地面花砖的拼贴,将历史元素与现代风格相结合。在2000平米的总面积中规划62间客房的任务书并不简单,为了确保每个房间的有效采光,我们在整个建筑中开辟了五个采光井。紧凑的平面规划下,每个房间仍保持了小而美的精致感。客房以灰白色的墙面打底,靠床头一侧选择了墨绿色的涂料呼应酒店公共空间的设计,配合天然橡木,营造舒适、休闲的氛围,帮助住客卸下旅途的疲惫。
百余年后,六国饭店终于以全新的身份再次开业,迎接来自各方的游客。
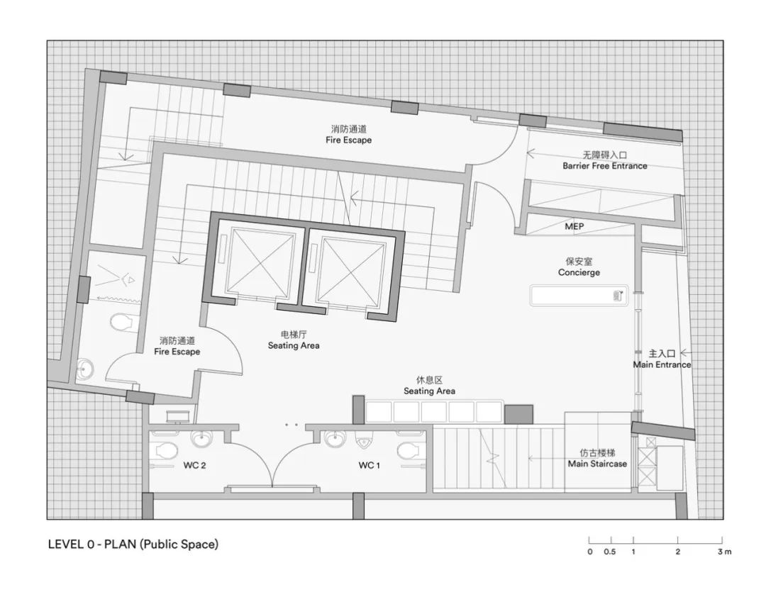
▽平面图
客服
消息
收藏
下载
最近




























