查看完整案例

收藏

下载
一隅之地
A Corner: A corner provided for this city
为这个城市提供的一隅之地在寸土寸金的上海,很大一部分的空间,一边在低频的使用,一面又把极限的面积空间炒作到天价。上海市青年干部管理学院的主办公楼的两个楼面用来作为青少年团成员的学习场所,为青少年提供定期的展示展览、开课路演等学习的空间,在没有大型参观学习的时间段,也对社会全面开放,提供学习驻留的场地。
In Shanghai, where every inch of land is precious, a large portion of space is underutilized while another part is inflated to exorbitant prices. Two floors of the main office building of the Shanghai Youth Cadre Management Institute are used as a learning space for young members of the youth groups. It offers regular exhibitions, presentations, and learning opportunities for young people. During periods without large-scale visits or learning sessions, it is open to the public, providing a space for study and residency.
▼建筑外观,exterior view© ANDY
外观 Exterior
记忆中在农村的生活里,看着长辈们在结束一天的忙碌之后,在屋檐下,男性长辈习惯性抽着黄色烟草,没什么过多言语,静静享受这一刻的休憩,女性长辈们则摘着菜叶,闲聊着一些家常,像是在为这一天的忙碌做一个结束语。
In my memories of rural life, after a busy day, I would see the elders. Under the eaves, male elders habitually smoking yellow tobacco, with few words, quietly enjoying this moment of rest, while female elders plucked vegetable leaves and chatted about daily life, as if concluding the busyness of the day.
雨棚屋檐,canopy as an eave© ANDY
广中路的一侧,临近马路,建筑雨棚做成了一个“屋檐”,在屋檐之下,留出一块半户外的缓冲空间,看着马路上的车水马龙,也希望为在这个城市的奔波者提供刹那的休憩空间。
On one side of Guangzhong Road, near the street, the architectural canopy is shaped like an “eave”. Under the eaves, a semi-outdoor buffer space is created, observing the bustling traffic on the road, hoping to provide a momentary resting space for the wanderers in this city.
▼雨棚结构,canopy structures© ACTSTUDIO
内部 Interior
内部空间在改造中更多围绕后期的使用场景去做设想,一楼的主要围绕对社会面开放场景,以景观、咖啡、书籍、展陈为主,二楼则更多围绕讲学以及展示功能去规划。
The interior space is envisioned with future usage scenarios in mind during the renovation. The first floor focuses on scenes open to the public, with emphasis on landscaping, coffee, books, and exhibitions. The second floor is planned with a focus on lectures and displays.
▼一楼概览,first floor overview© ANDY
▼一楼主要对社会开放,The first floor opens to the public © ACTSTUDIO
二楼概览,second floor overview© ACTSTUDIO
讲堂空间,lecture spaces© ACTSTUDIO
▼二楼一瞥,a glimpse at the second floor© ACTSTUDIO
一二楼之间则更多垂直空间的贯通,之前改造的钢结构楼梯进行拆除,重新设置了双道混凝土楼梯,更具有踏实感,挑空空间给了大型绿植的更多生长可能。
There is more vertical connectivity between the first and second floors. The previously renovated steel structure staircase has been removed and replaced with a sturdy double-concrete staircase. The open space allows for the growth of large green plants.
▼双道混凝土楼梯,double-concrete staircase© ACTSTUDIO
▼就餐座位与绿植,seatings with greenery© ACTSTUDIO
混凝土楼梯,concrete staircase© ACTSTUDIO
材料 Materials 半户外的雨棚,采用钢木结构去呈现,钢构件更多用于结构之间的连接处理;木结构则更多去做呈现情绪感受的传递。屋檐之下采用石子铺设,不过于去做地面的固化,趋向于原始状态。
The semi-outdoor canopy adopts a steel and wood structure. Steel components are primarily used for structural connections, while wood structures convey emotional feelings. The ground under the eaves is covered with pebbles, avoiding excessive solidification, tending towards a more primitive state.
▼从室内望向雨棚,view from interior towards canopy© ANDY
▼窗口,window© ANDY
▼二层窗口望向雨棚,canopy viewing through window on the second floor© ACTSTUDIO
整个建筑的外观都是八九十年代典型的马赛克装饰材料,内部则延续马赛克砖的应用,在马赛克的长宽比例上也尽量接近二三十年前的视觉感官,马赛克的色彩做了一个跳脱的颜色,整个以绿色生长为原则,再到整个空间内大面积的绿植置入。
The appearance of the entire building features typical mosaic decorative materials from the 1980s and 1990s. This application of mosaic bricks continues inside, and the aspect ratio of the mosaic strives to resemble the visual perception from two or three decades ago. The color of the mosaic is a departure from the norm, with green growth as the guiding principle, extensive green plants are incorporated throughout the space.
▼内部延续马赛克砖,the application of mosaic bricks continues inside © ACTSTUDIO
卫生间,toilet© ACTSTUDIO
一层路演空间,presentations space on first floor©上:ANDY;下:ACTSTUDIO
"继续""Continuation"
空间构造之初,更多是一个人或一个团队在打造的一个场景设想。那更期待的是,在社会层面扮演不同角色人们在这样一个空间内发生有意思的故事,从而继续丰富这个空间,继续“设计“下去!
In the initial construction of the space, it was more of a scene envisioned by an individual or a team. What is anticipated is that people in different roles within society will create interesting stories in such a space, Continuously enriching this space and continuing the process of “design”!
二层会客厅,second floor guest room© ACTSTUDIO
会议室,meeting room© ACTSTUDIO
▼空间细节,details© ANDY
一层展厅,first floor gallery© ANDY
▼夜景,night view© ANDY
▼外部轴测,external axon© 直距设计
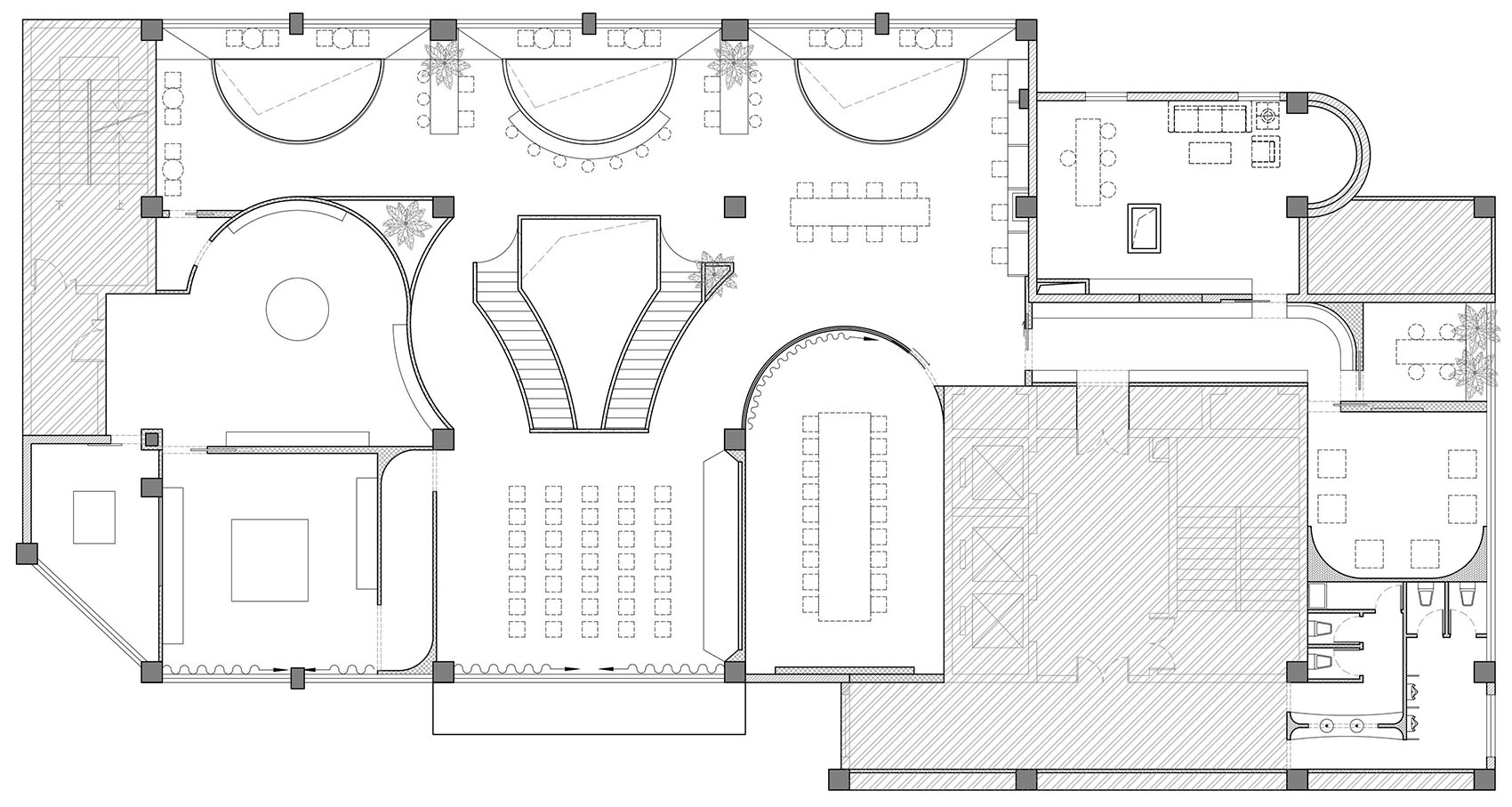
一层平面图,1F plan© 直距设计
二层平面图,2F plan© 直距设计
▼入口立面,entrance elevation© 直距设计
雨棚立面,canopy elevation© 直距设计
▼剖图,section© 直距设计
▼雨棚结构,canopy details© 直距设计
▼卫生间立面,toilet elevation© 直距设计
客服
消息
收藏
下载
最近






















































