查看完整案例

收藏

下载
项目地址|桂林·漓江壹号·龙瑞阁
项目面积|125
㎡
项目户型|4室2厅2卫
类别|私宅设计
设计|高俊毅
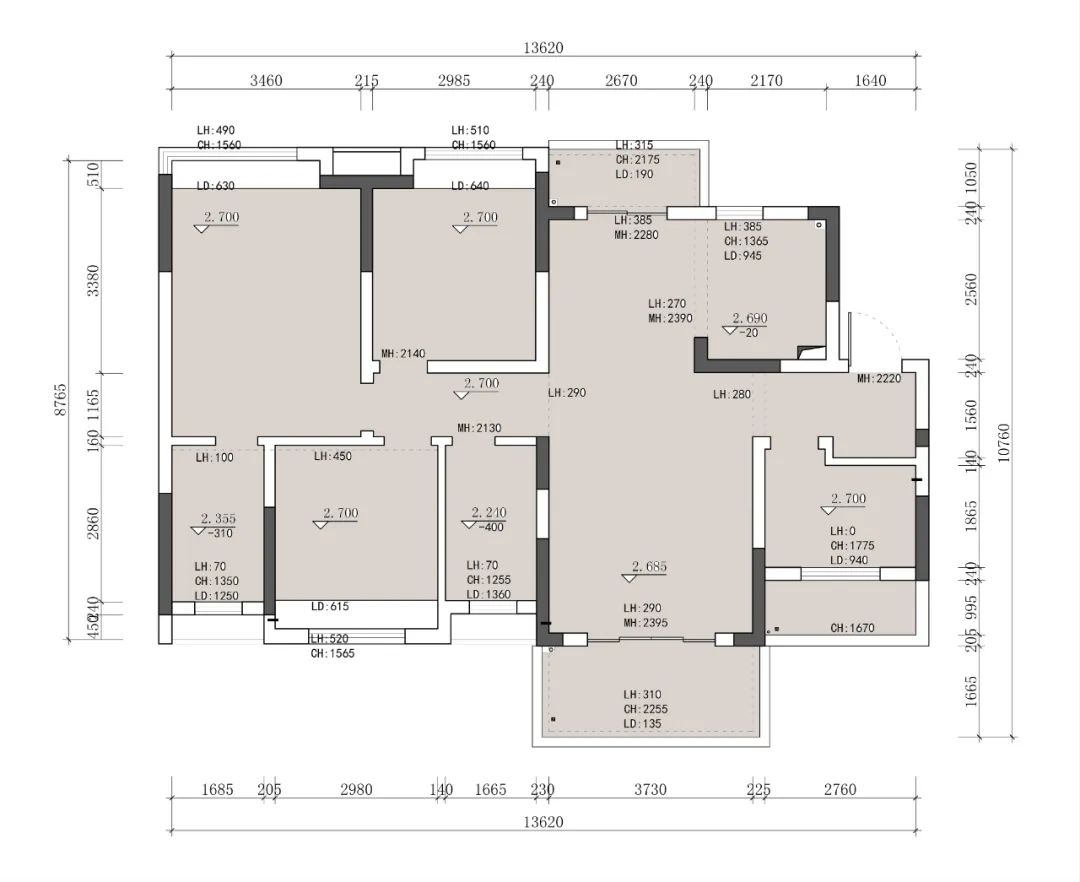
户型图
|
Household chart
原始结构图
▼
●
原户型问题&业主期望
业主期望空间能看起来尽可能大,喜欢开阔的大空间,原户型承重墙过多,不知道如何改造为好。家庭成员就是一家三口,不需要考虑客房,但是需要一个能两人同时办公的书房,家里朋友聚会可能会多一些,以上为业主需求。
平面布置图
▼
●
空间改造
①将入户房间改造为功能房,可作为聚会扩展酒吧区,也可作为阳光书房使用,可以扩大入户及客厅的空间感。
②将三个房间格局互相打破重组,让主卧及次卧均能拥有较大空间,主卧和衣帽间&书房联通,成为大套房,但是主卧相对书房也能独立存在。次卧也拥有独立衣帽间。缩减了原本的过道空间,让空间利用率更高。
③因为要考虑聚会多时的就餐情况,原餐厅尺寸偏小,所以向书房稍微借空间以扩大餐厅,同时拓展出来的空间增加餐边柜添加实用功能,餐边柜上方的窗户可以扩大书房及餐厅两个空间的空间感。
方案图
|
design sketch
入户屏风的设计将形式与功能结合,在材质上选择透光不透影的材料使光线能正常穿过,不影响入户玄关的采光;在结构形式上与整体风格协调,不仅不显得突兀还像一个艺术小品一样可以点缀空间;在功能上可以满足入户时坐着换鞋的需求。
原客厅阳台推拉门拆除后,左右两侧都有一小节不可拆除的承重柱,在电视墙侧,选择用多层叠加的结构手法用方块+圆弧+平缓变急促阵列的留白包裹住柱体,然后采用不同材质的浅木色悬浮电视柜抽屉穿插,用深木色木饰面打底,并且将深色木饰面一直包裹链接至餐边柜及过道的墙面以及吊顶上,形成视觉的连贯,让原本不大的电视墙得到体块的延伸,形成更大气的效果。
超长梳妆台的墙面岩板过渡到格栅板后,将格栅板侧面的暗藏灯带与顶面单眼皮吊顶的灯带与窗帘盒的暗藏灯带连接,形成一个在不同块面的结构穿插灯光效果,空间虽有多种材质的变化,但是颜色严格把控在奶咖基础色调的范围内,形成多材质碰撞但却和谐统一的高级感效果。
客服
消息
收藏
下载
最近
















