查看完整案例

收藏

下载
KUN SHANG DESIGN
地址:中国|广州
Address: Guangzhou, China
项目:信诚北街小区
properties for sale:Xincheng North Street
户型:套房
Unit type:a suite of rooms
面积:88㎡
Acreage:88㎡
风格:现代风
Style: Modern style
序言:
本案是一套
88㎡的三室一厅现代风案例。设计师通过开放流畅的空间和恰到好处的巧思,为业主打造了一个简约舒适的家。
客
厅
Living Room
客厅与厨房在布局上是贯通的,开放式的布局创造出了宽敞通风的室内环境,增加了空间的连贯性和流动感。大落地窗不仅可以让业主享受到绝佳的风景,还提最大化利用了自然光线。充足的光线在提高室内亮度之余,还赋予了一层温暖的氛围。
厨房 Restaurant
厨房的空间整体并不大,但因为是开放式厨房的关系,整体布局上和客厅相通,并不会让人觉得狭窄。视觉上更加宽敞明亮,布局也更加灵活。经典的黑白配色,优雅耐看。
主卧 Master Bedroom
卧室统一使用了舒适美观的木质地板,冬暖夏凉之余还自带自然的纹路与纯朴的颜色,自有一种温润之感。主卧的配色比起其他房间,少了几分跳脱,多了几分典雅。悬浮桌与柜子结合,既美观,又不影响储物空间,打开灯后又显得十分高级。
小孩房 Children's room
房间整体简约不单调,清新的牛油果绿与木地板的原木色,共同制造了一种清新的氛围,还有了一丝活力。床品使用柔和的奶茶色,更添几分温馨。壁挂式的桌子,不仅造型时尚,还可以更好的利用空间。安置在窗前,学习时一抬头就是窗前景色,随时可以进行远眺,缓解视觉疲劳。
书房 Study
房间布置简洁有序,温馨自然的原木地板带着简约质朴的气息,在阳光的映衬下充满了温柔。房间简约的布置,蓝色的墙面为室内增添了几分沉稳的气息,让人在阅读办公的时候能够有一个更易投入其中的氛围。
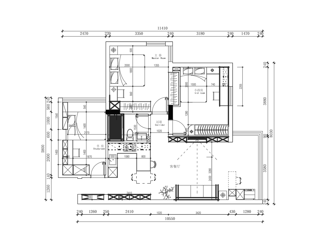
户型图 House type diagram
--
If you need to reprint, please indicate the
source.
图 | 坤尚设计
Figure | from kunshang design
E N D
客服
消息
收藏
下载
最近














