查看完整案例

收藏

下载
小宅空间
Anna Bereznyak
新作,33
㎡
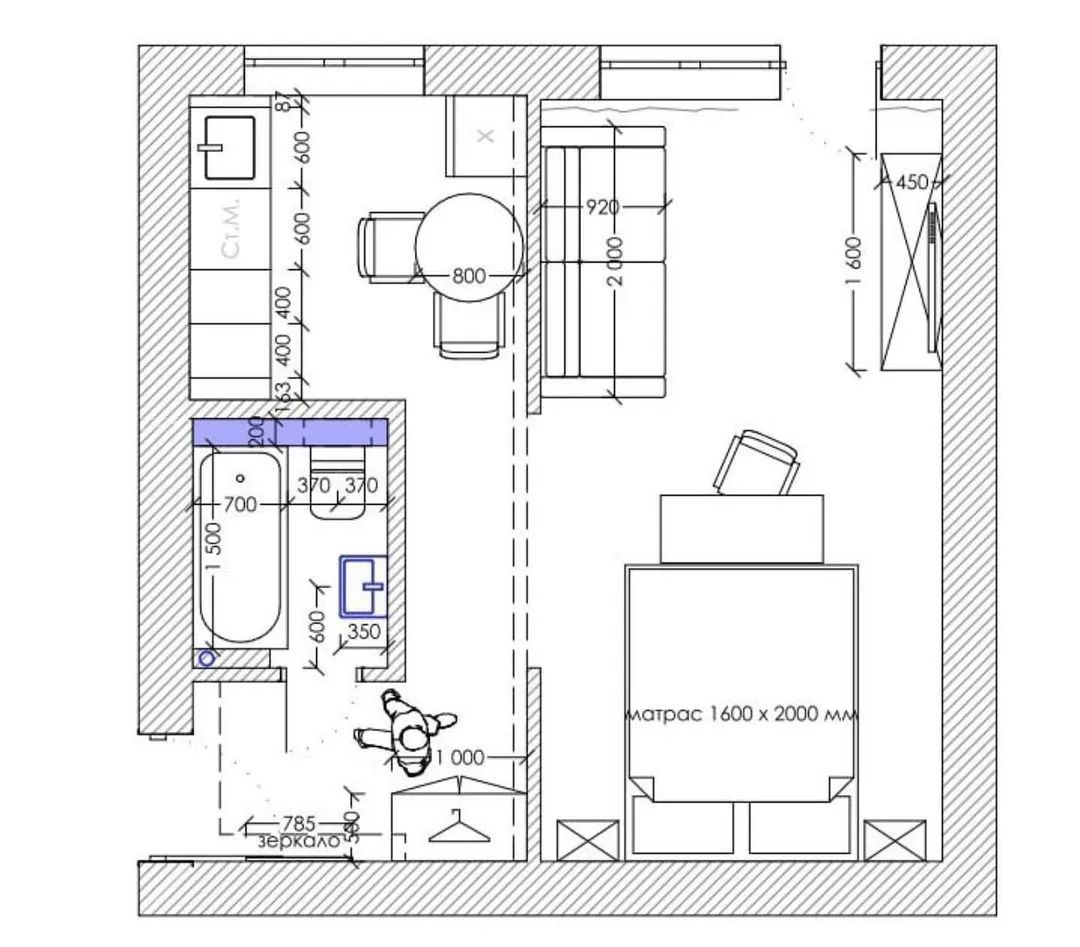
一居室公寓,一个明亮的放松空间。厨房、一间带客厅的卧室、一间浴室和一个走廊被放置在一个小区域内。室内设计风格不拘一格,融合了复古和现代艺术的元素。
将中性、浅色的内饰变成不寻常、色彩缤纷。
5
㎡
厨房里安装了一套小套装,桌面由MDF制成,饰有单板。用餐区摆放着小桌椅,墙上贴着海报。
客厅没有额外的隔断,墙壁上装饰着壁纸,放置了一张沙发。主要照明是现代枝形吊灯,增添了
房子的
气氛。
睡眠区安装了一张带有半圆形床头板的大床。
空间布局
▽
客服
消息
收藏
下载
最近

















