查看完整案例

收藏

下载
项目背景
Project Background
“秦风书阁”是团队配合“三星(中国)半导体社会公益项目”完成的陕西希望工程第 2 个“乡村校园图书馆”(2021 年建成的“终南书阁”是第一个),能够持续为陕西乡村教育的文化赋能提供物质载体让我们倍感荣幸。
The “Qinfeng Library” is the second “Rural School Library” of Hope Project in Shaanxi completed by the team in cooperation with the “Samsung(China) Social Welfare Program” (the first one was the “Zhongnan Library” completed in 2021), and we are honored to continuously provide a carrier for cultural empowerment of rural education in Shaanxi.
▼项目概览
project overview©孔锦权
设计价值
“秦风书阁”坐落于西安鄠邑区的“秦风初级中学”,该校始建于 1996 年,2020 年才由秦风、牛东、秦渡三所农村初中整合而成,并更名为“西安高新区第十八初级中学”。学校被农田及散落的村落所环抱,并与南面的秦岭山脉遥相呼应。在如此优美的乡村环境中,图书馆二期的设计既延续了与场所环境“融合互为”的立场,又从具体环境及使用需求中展现出与一期的诸多差异,并实验性地探索了以下两方面的价值:▼项目区位,project location©垣建筑设计工作室
The “Qinfeng Library” is located in “Qinfeng junior high school” which was founded in 1996 in Huyi District, Xi’an. In 2020, the school was integrated by three rural junior high schools, namely Qinfeng, Niudong, and Qindu, and it is renamed as “The eighteen junior high school of Xi’an Hi-tech Zone”. The design continues the concept of “integration and mutualization” with the environment and experimentally explores the value of following two aspects:
▼项目与周边环境,project and the surroundings©孔锦权
首先是开放共享的价值。团队与三星及校方负责人共同商议确定,将建设场地放在校园的最东南角,毗邻东侧和南侧两条主要的乡村道路。外向性选址的目的是让建筑作为纽带来同时服务于校园内外,惠及到更多周边村民。南侧开放的半室外檐下空间及可进入的内部一层大空间成为了校园文化生活与周边村民积极互动的“共享空间”,可在未来举办丰富活动以激发乡村多元文化生活的发生。
The first is the value of opening and sharing.
The team, together with Samsung and school officials, decided to build the site on the southeast corner of the campus, adjacent to two main rural roads on the east and south. The purpose of the outwardly located site is to serve both the campus and the surrounding villagers, so that the building can act as a link. The semi-outdoor eaves space on the south side and the accessible first-floor large space inside have become a "shared space" for active interaction between campus cultural life and surrounding villagers. Future activities can be held here to stimulate diverse cultural life in the countryside.
The team consulted with Samsung and the school officials and determined that the construction site would be located in the southeast corner of the school. The location is adjacent to the student dormitory of the north side and two major rural roads of the east and south side. The purpose of outward location is to allow the library as a link between school and neighboring villagers. The open semi-outdoor space under the eaves on the south side and the accessible large space on the first floor become a “shared space” for active interaction between the school cultural life and villagers, and enrichment activities can be organized to stimulate diversified cultural life of countryside in the future.
▼从十字路口看图书馆,view from the intersection©孔锦权
图书馆东立面,east elevation of the library©孔锦权
▼室外檐下阅读空间,the open semi-outdoor reading space under the eaves© 孔锦权
为此,设计明确了“小空间多用途”的复合型目标,并通过空间大小、高差及内外的变化形成丰富的构成关系,如此既满足了阅读的基础功能,又兼容起研讨、展览、交流、学习、表演等使用可能,成为师生与周边村民真正的“共享场所”。北侧和西侧的半室外檐下空间则与校内建筑(北侧紧邻学生宿舍楼)及景观相呼应,主要服务于校内的师生群体,以弥补校园公共交往空间不足的问题。
The design specifies a “small space and multi-purpose” composite goal. Multi-disciplinary compositional relationships are formed through changes in space size, height difference, inside and outside. The design satisfies the basic function of reading and is compatible with the seminars, exhibitions, exchanges, learning, performances and other possibilities. So, the library becomes a truly “shared place” for teachers, students and villagers. The semi-outdoor space under the eaves on the west and north side echoes the dormitory and landscape of the west side, mainly serving the students and teachers to make up for the lack of public spaces.
▼公共的半室外空间,the open semi-outdoor space© 孔锦权
公共的半室外空间,the open semi-outdoor space© 孔锦权
▼从公共的半室外空间看秦岭,a view of Qingling Mountain from semi-outdoor space© 孔锦权
▼与花园相对望的图书馆西立面, the west facade facing the garden© 孔锦权
▼收束花园景观的西侧灰空间, the west grey space© 孔锦权
其次是生态可持续的价值。The second is the value of ecological sustainability。
该图书馆在西安建筑科技大学零能零碳建筑科研团队的技术支持下,探索了因地制宜的建筑低碳化路径,使之成为实质意义上的全直流供电建筑,具有示范性意义。早在选址和概念设计阶段,科研团队就与设计师协同合作,很好地促进了建筑设计与零碳建筑技术的融合,充分考虑了与当地自然环境相结合的策略,使建筑朝向、形态、坡度、开口和屋顶天窗都有利于空间在冬季获取更多的太阳辐射,在过渡季和夏季获得较好的自然通风及降温效果(尤其是夏季午后由南至北的下山风可通畅穿流)。同时,单坡建筑形态对北侧宿舍楼的日照不产生任何影响,屋顶的天窗设计又补充了图书馆全年室内空间的自然采光及夏季通风。
▼云端数据监控, data monitoring©垣建筑设计工作室
▼空间共享和低碳技术示意,demonstration of space sharing and low-carbon technologies©垣建筑设计工作室
With the technical support of the Zero Energy & Zero Carbon Building Research Team of Xi’an University of Architecture and Technology, the design fully explores a low-carbon path. The library has become substantially the whole-house DC-powered building, which possess significance of demonstration. As early as the site selection and conceptual design stage, the team worked in cooperation with the architect to well facilitate the integration of architecture design and zero-carbon building technologies. The design has fully considered the integration with the local environment. The orientation, form, slope and openings of the library are conducive to obtaining more solar radiation in the winter, and better natural ventilation and cooling can be obtained in the transition season and summer (especially the downhill wind in the summer afternoon). The single-slope form avoids the impact of sunlight on the north dormitory, and the skylight on the roof complements the year-round natural daylighting and summer ventilation.
▼面向主街道的南立面, the south elevation facing the Main Street© 孔锦权
建筑室内的照明、多媒体设备、插座以及智能开窗所需的电能均由光伏提供(采用铁锂电池组储能,直流 48V 总线供电)。光伏板的安装采用结构一体化预埋件+钢龙骨连接技术,兼顾了美观性、安全性和成本集约性。
研究团队为图书馆配备了太阳辐照量、光伏发电效率、室内热湿环境、运行能耗等全套监测设备,并实时传输数据到云端,为建筑低碳技术的迭代推广蓄积起第一手实际运行数据,将成为重要的乡建低碳化实验基地。
▼生态路径说明, ecological technology path©垣建筑设计工作室
The lighting, multimedia equipment, sockets and smart window are powered by PV (PV modules combined with lithium iron battery storage and 48V DC bus power). The PV installation adopts the connection technology of structurally integrated embedded parts and steel keel, which takes into account the aesthetics, safety and cost intensification. The library is equipped with a full set of monitoring equipment, and the data is transmitted to the cloud in real time, accumulating first-hand operational data for the application and promotion of low-carbon building technologies. The library will become an important experimental base for low-carbonization of rural building.
一楼共享大厅的多元活动,diverse activities in the shared hall©孔锦权
▼从北向南看内部空间, look into the space from north to south©孔锦权
▼与花园相对望的西侧空间, west side space facing the garden©孔锦权
面对花园的静谧空间, quiet space facing the garden©孔锦权
▼与空间的对话, dialogue between space©孔锦权
暖阳下的阅读, reading in the sunlight©孔锦权
这样的探索是对团队承担的“十四五”国家重点研发计划项目“太阳能富集区零碳建筑关键技术研究与示范”相关成果的佐证,也是对国家和陕西省关于零碳建筑、建筑光伏一体化等系列政策的积极响应。
The library is the evidence of related result of the “14th Five-Year Plan” National Science and Technology Major Project of China, “Research and Demonstration of Key Technologies for Zero-Carbon Building in Solar-Rich Area”, and it is also the positive responding to a series of policies of the State and Shaanxi Province on zero-carbon buildings and BIPV, etc.
二楼的静谧阅读空间, quiet reading space on the second floor©孔锦权
结语 Conclusion
“秦风书阁”这个低造价的小型校园图书馆是建立在一期基础之上的“2.0 版本”,拓展出了有关“开放共享”和“生态可持续”的双重价值。虽然在建设过程中依然需要面对乡村条件下的诸多困难和不可控因素,但此项目的持续推进必将为陕西乡建及公益事业的发展提供可借鉴和推广的样本。
▼对比图书馆一期和二期, comparison of the first stage and the second stage©垣建筑设计工作室
The “Qinfeng Library”, a small school library with low cost, is the “version 2.0” of the project, expanding the values of “opening and sharing” and “ecological sustainability”. There were many difficulties in the construction under rural conditions, but the continued promotion of this project certainly provides a model for the development of rural building and public welfare in Shaanxi.
▼北侧檐下空间夜景, the night view of the space under the north eave© 孔锦权
▼东南角夜景, the night view of the south-east corner© 孔锦权
▼傍晚图书馆, the night view of the library© 孔锦权
▼场地模型, site model©垣建筑设计工作室
▼建筑模型, building model©垣建筑设计工作室
▼总平面, site plan©垣建筑设计工作室
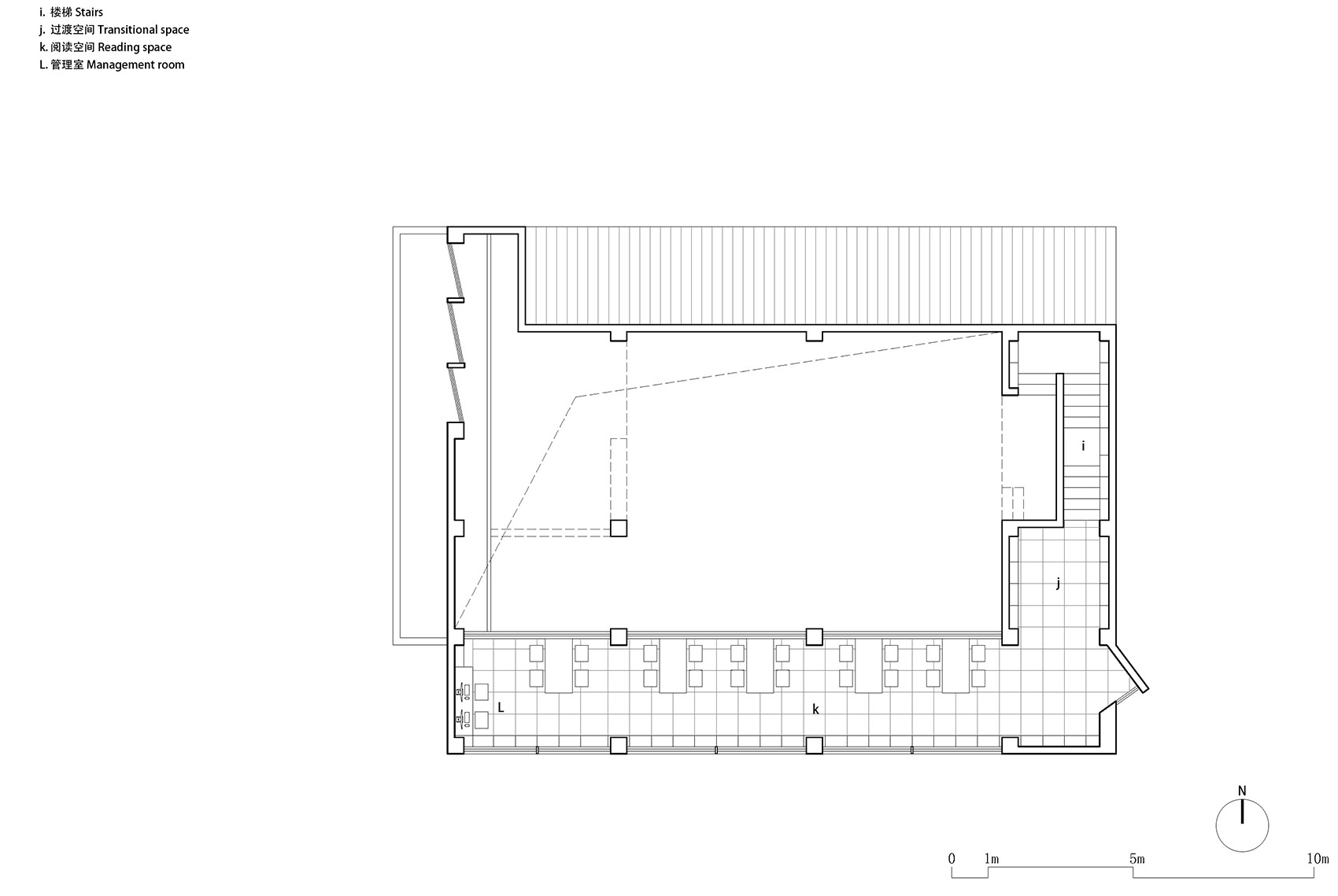
一层平面, ground floor plan©垣建筑设计工作室
二层平面, first floor plan©垣建筑设计工作室
立面 1, elevation 1©垣建筑设计工作室
立面 2, elevation 2©垣建筑设计工作室
▼剖面 1, section 1
©垣建筑设计工作室
▼剖面 2, section 2©垣建筑设计工作室
▼剖面 3, section 3©垣建筑设计工作室
▼草图, sketch©垣建筑设计工作室
客服
消息
收藏
下载
最近

























































