查看完整案例


收藏

下载
,
易高案例
项目名称:曲江大城
项目风格:现代简约
项目面积:270㎡
主案设计:武登高
深化设计:方琳
软装设计:杨晓旭
项目专员:王宇
本案面积 270㎡,家是疲惫生活里的解药,是我们幸福感来源最多的地方,设计师对家中功能规划分区,让生活更加专注。还原业主理想之家,让空间与生活更加的契合。
“一楼空间
易高国际设计作品
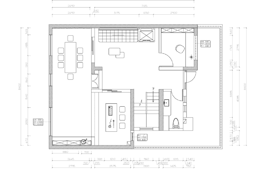
一楼平面设计图
▲入户
家是疲惫生活里的解药,家是我们幸福感来源最多的地方,从入户开始处处体现心意。全景落地窗最大可能容纳“光的艺术”,窗外是车水马龙的城市,屋内是向往的生活。以户型门框造景,点缀空间多一丝诗意。门厅开启生活的必经之路。
▲餐厅
▲餐厅
▲厨房
进入家的主空间,映入眼帘的是白色与浅木色搭配的餐厅,视觉温润舒适,让居者卸下生活疲惫去享受这家居生活。吧台与餐桌结合呈 T 型摆放,西餐操作台两侧设有烘焙区,多功能化的餐厅更能满足现代人的多种需求,厨房与餐厅之间灵活变化,可打通可独立,在这个小天地之中生活可以随心所欲。
▲客厅
▲客厅
沿着家中动线,客厅是主要的活动区域,开放式的设计给生活场景留下更多可能,空间以白色为主色调搭配无主灯设计,空间更显通透明亮。秉承简约即高级的设计理念,空间之中采用浅木色与灰色做以点缀,丰富空间层次,避免色彩的单一造成视觉审美疲劳。
▲一楼卧室
▲一楼卫生间
卧室设计注重舒适度,米白色的色调给人平静舒缓,放下疲惫好好的享受睡眠。
“二楼空间
易高国际设计作品
二楼平面设计图
▲二楼主卧
▲二楼主卫
二楼是家中静区,分布着家中的主卧以及次卧。是私享之地,简单舒适称人心意。主卧背景墙采用雾霾蓝色,温柔的恰到好处,墙面连体衣柜将空间利用率最大化,主卫干湿分离让空间专注于一件事。
▲二楼次卧
▲二楼次卫
▲二楼榻榻米
次卧延续家中简约风格,以灯光作为空间的装饰,黑色床头与窗前书桌相连一体。搭配松软舒适的床品,清丽雅致。
“三楼空间
易高国际设计作品
三楼平面设计图”
三楼公区
▲三楼餐厅
绿色是三楼的主题色,生机盎然更像是一处“世外桃源”,提升业主生活品质。
▲三楼休闲区
▲三楼休闲区
▲三楼书房
▲三楼卫生间
在餐厅品味珍馐,让生活更具精致的仪式感。休闲区促进家庭成员形成紧密联动。书房里放松精神,享受幸福。
关于设计师
武登高
中国室内注册设计师
注册号:ZB20803174
毕业院校:西安美术学院
设计理念:用艺术的眼光雕琢生活
设计风格:中式 简约 欧式极简
从业时间:17 年
易高国际创始人、设计总监
2017 年瑞典色彩学院 色彩专业结业
2004 年--2010 年北京元洲装饰首席设计师
2011 年--2013 年陕西九朝装饰首席设计师
2013 年至 2016 年北京峰上大宅装饰专家设计师
2009 美化家居设计大赛三等奖
2011 获陕西省优秀设计称号
2012 筑巢杯设计大赛优秀设计奖
2013 住宅装饰行业优秀设计师
2014 住宅装饰行业优秀设计师
2015 第三届【锋尚·京瓷杯】新中式设计大赛最佳功能布局奖
2016 第三届中国建筑装饰设计艺术作品展获铜奖
2017 居然顶层精英设计师
2017 年中国(陕西)设计杰出青年
2017 第四届峰尚杯新中式设计大赛 最佳方案奖
2017 首届禾记万佳杯设计设计大赛优秀奖
2017 创意生活设计金蝴蝶奖
2017 商业旅游地产年度优秀住宅公寓设计师
2017 评选为亚太空间艺术大师
2018 金楠奖设计大赛优秀奖
2018 获得第二届西安建筑装饰设计“青年设计师领袖”称号
2018 设计作品《中海百贤府》获得 第二届西安建筑装饰设计别墅类银奖
2018 设计作品《龙湖香醍》获得 第二届西安建筑装饰设计样板间设计优秀奖
2019 金堂奖全国百强先锋榜百强设计师
2019 年度腾讯家居搜狐焦点家居杰出设计师
2019 德国高仪住宅精英榜 TOP108 匠
2019 蒂森克虏伯杯别墅设计大赛经典设计奖
2019 第三届西安建筑装饰设计奖“年度青年设计师领袖”
2020 中国设计新青年评选“城市举荐官”
2020 设计作品《石中木》获得陕西地区优秀住宅软装设计
2021-2022 中国新地产设计大会年度优秀别墅设计师
2021 金住奖-中国百杰居住空间设计师
2022 中国国际空间设计大赛十佳设计师
成功案例:中华世纪城紫薇臻品、白桦林居、中海华庭、中海国际、紫薇融侨就掌灯、中海东郡、曲江公馆、曲江尚林苑、曲江兰亭、曲江华府、枫林意树、湖城大境、中海铂宫、中海百贤府、紫汀苑、紫楹台、曲江和园、中海曲江大城......
客服
消息
收藏
下载
最近



























