查看完整案例


收藏

下载
项目位置 / 桂林·兴安
项目户型/ 4室2厅2卫
设计面积 / 150㎡
类别 / 私宅设计
设计 / 高俊毅
本期业主在找我之前经历过一次失败的设计,所以当她找到我说明这个情况时,我们双方都顶着巨大压力,她害怕这次还是和之前一样的结果,我害怕达不到预期辜负所托。在经过充分的前期沟通之后,业主最终还是选择了尝试,忘掉之前的设计!全部推翻重来!而最终也不负所托,做出了我们双方都比较满意的设计。
■
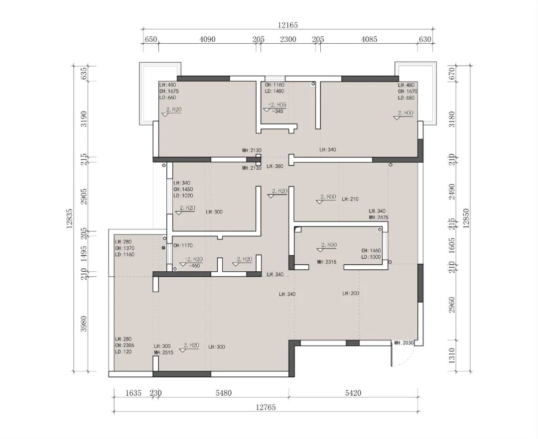
原始结构图
原户型虽然面积不小,但是因为空间分配比较零散,所以现场实际看起来各个空间都显得不大
。而业主比较喜欢开阔的大空间,希望能把空间尽可能做大,储物空间要尽可能多,最最头疼的是在客厅正中心有一根横贯的梁不知道要怎么处理,入户鞋柜也不知道要怎么放比较好。
■
平面布置图
因为小区目前的物业管理很松,聊等于无,而且业主上下左右都没有邻居,所以大门可改,大门左移,留出了右侧的鞋柜位置后,玄关就自然诞生了,利用墙体结构设置入户玄关,增强入户仪式感,同时把厨房外扩,也解决了“开门见灶”的风水冲突问题。原厨房不可拆卸的柱子顺势和玄关的墙体形成了一个轴线对称的结构,仅利用结构就可以修饰好看不突兀,形成更有意思跟舒服的回游动线。衣帽间也没必要占用一整个房间那么大,保证够用后,留出一部分往过道开门,隔成杂物间,收纳大件生活零碎。拥有了衣帽间后,主卧就解放了,只需要摆床即可,多出来的空间可以用来扩大主卫,让主卫拥有超大洗漱台。
入户正对的墙面很多情况下都是挂一幅画或者做一个造型来处理,但是因为这里正好后面是一个开放式的空间,可以做一个穿插的效果,让后面的台面露出来,台面的吊灯既可以照亮后方也可以照亮玄关,穿插的视野让空间感会拓展2米左右,入户地面也可以用和后面墙砖呼应色彩的地砖来做区域划分,让空间有更多留白,从功能上说,也避免了一进门就踩到木地板。
原厨房不可拆卸的柱子与玄关新砌的墙之间,利用色彩与结构形成独特的造型关系,不仅不显突兀还为空间加了分,同时以此为界,将过道与厨房的地面与客厅划分开来,从色彩上说,让客厅和餐厅成为了一个更方正的结构,少了很多拐角感,从功能上说,无论从公卫洗澡出来还是在厨房做菜,瓷砖都更好打理,而木地板做在客餐厅则更显温馨舒适。
客厅中间的横贯梁选择用一个连绵顶面和墙面的一体造型来处理,将电视柜拉长延伸视觉感,同时在各个墙面分色的比例上,做好呼应与对称之间的关系,让整个结构看起来顺理成章,天衣无缝,和谐而有设计感。
主卧色彩沉静优雅,灯光柔和,浪漫舒适。仅利用色彩与灯光,不用什么名贵材料,即可营造出温馨质感的睡眠空间。
以淡雅柔和为主色调,温柔舒适的包裹感在空间中弥散,感受生活的惬意
。
客服
消息
收藏
下载
最近
















