查看完整案例

收藏

下载
付女士私宅装修档案
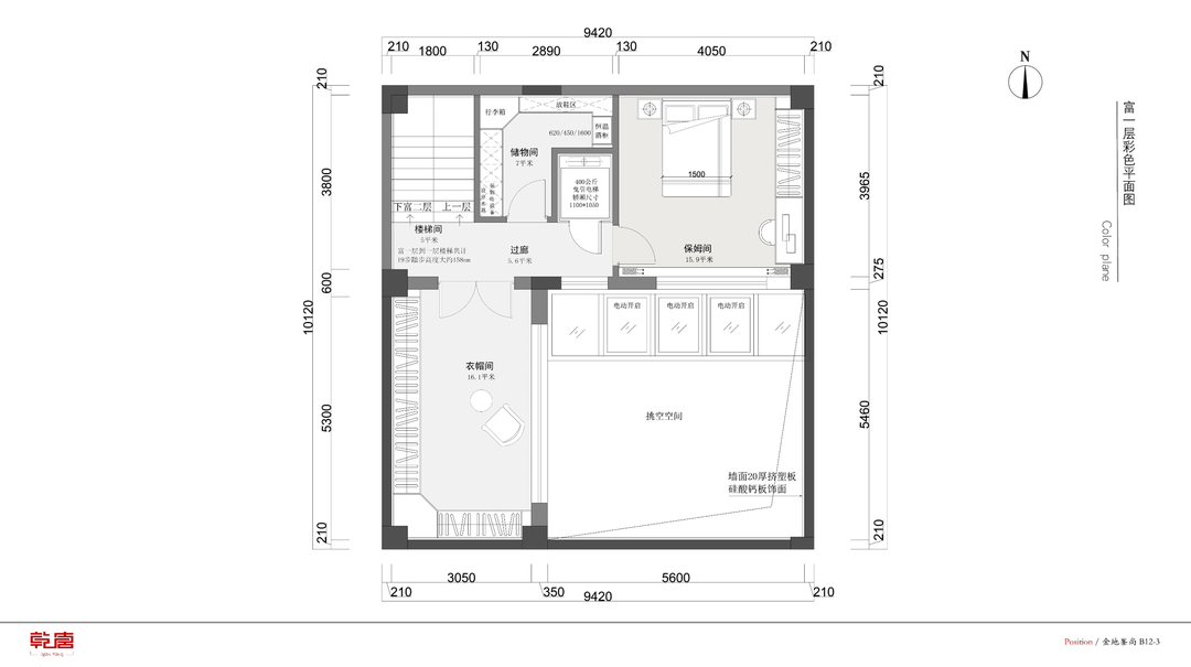
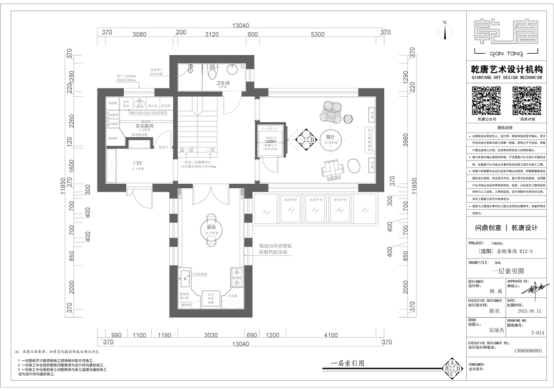
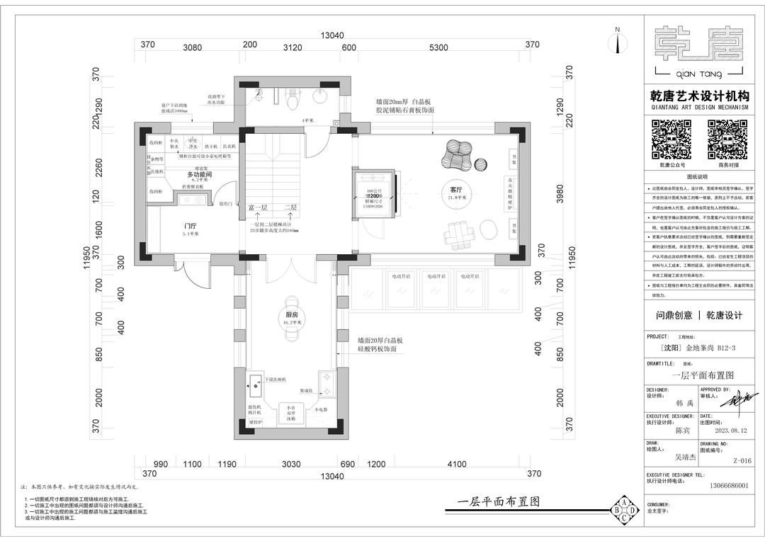
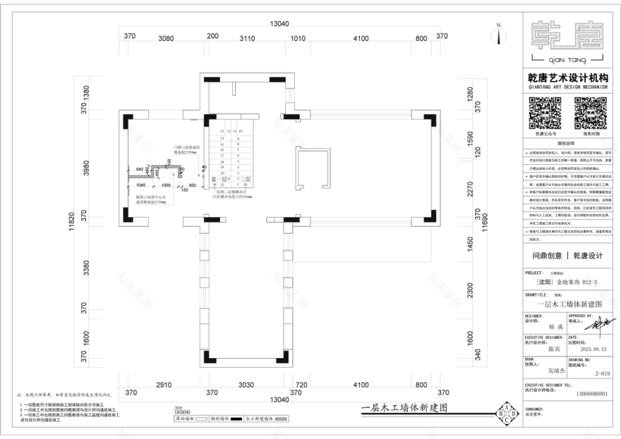
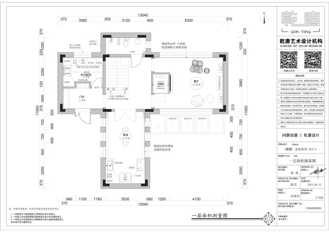
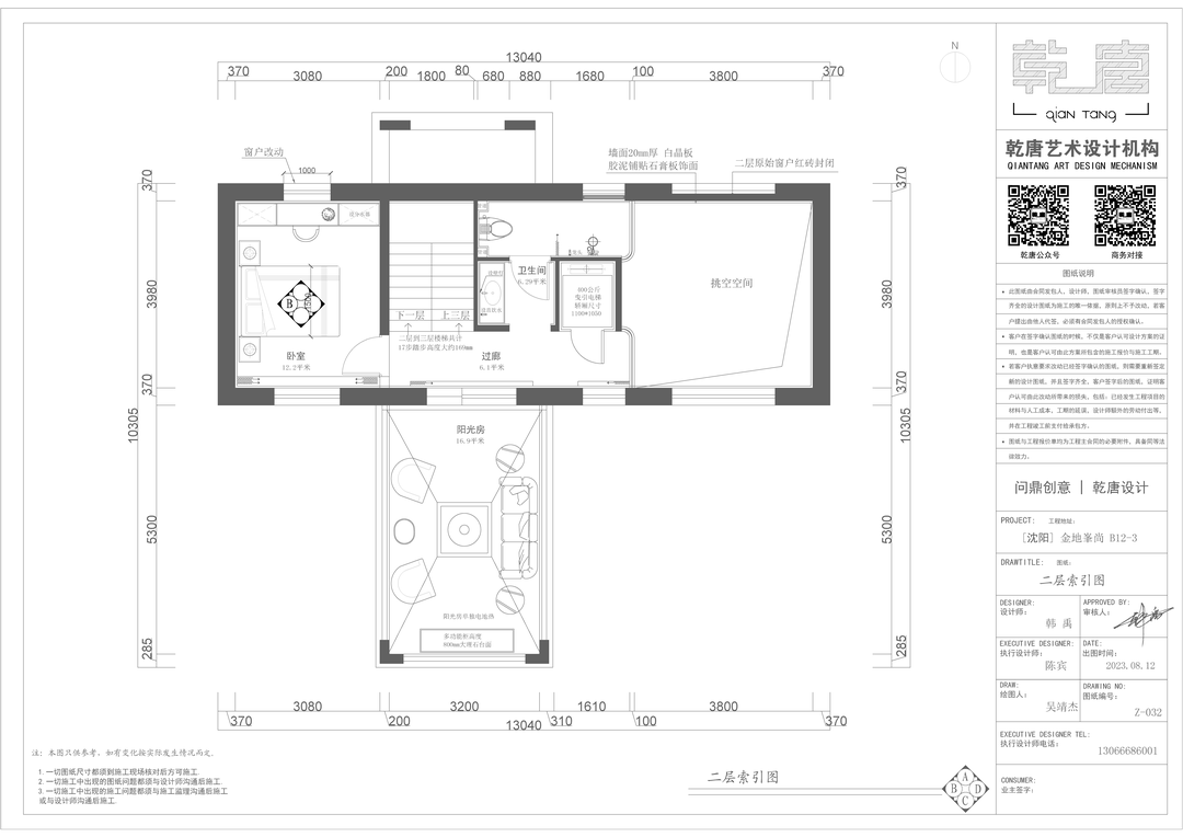
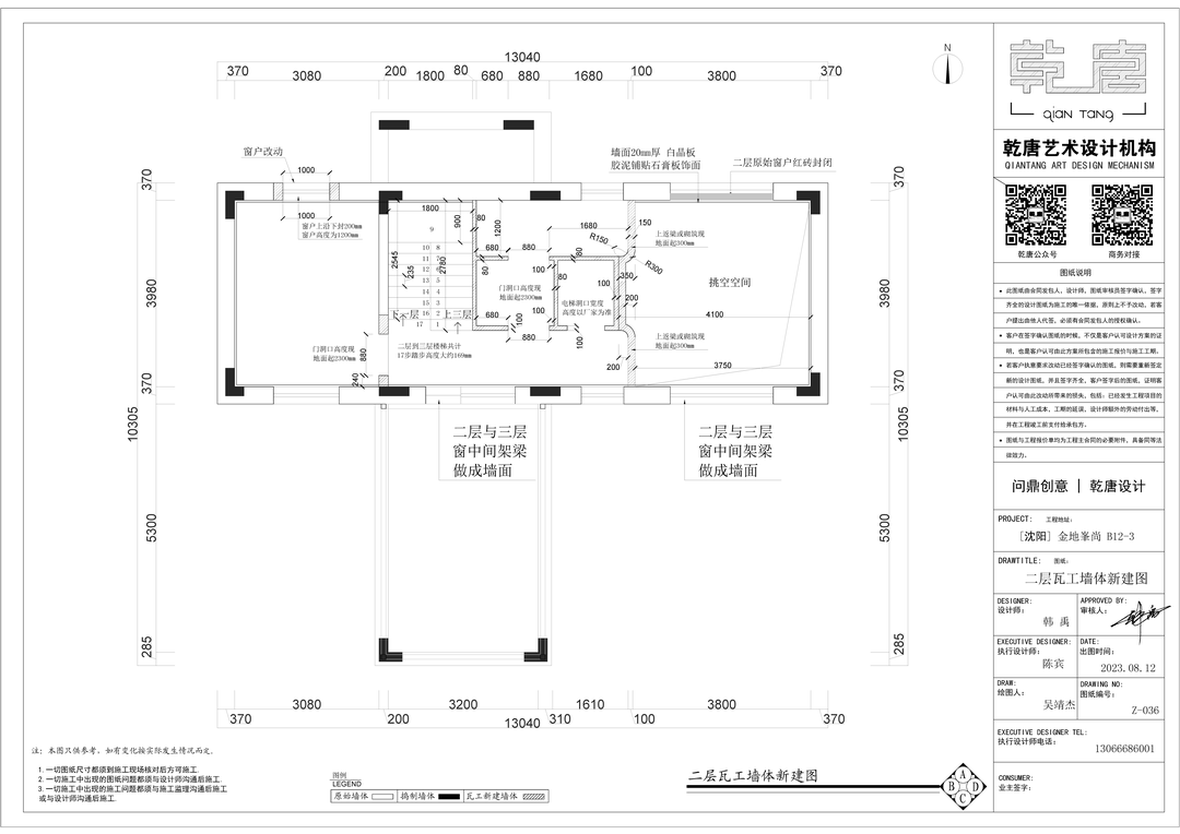
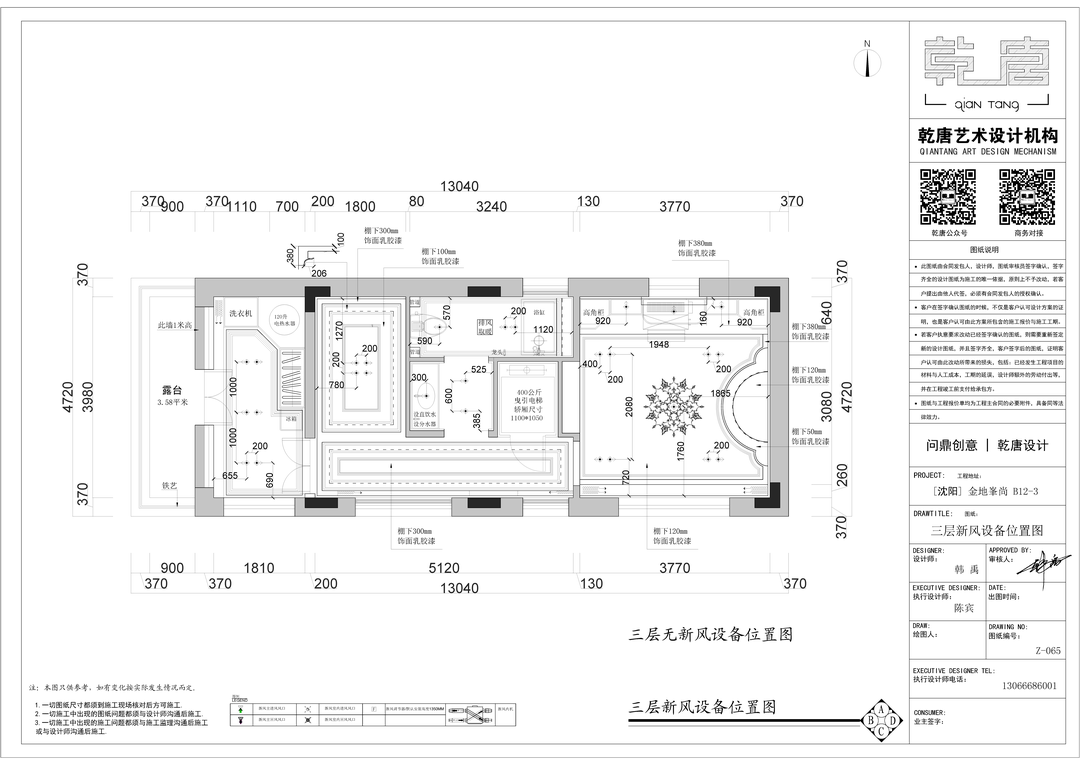
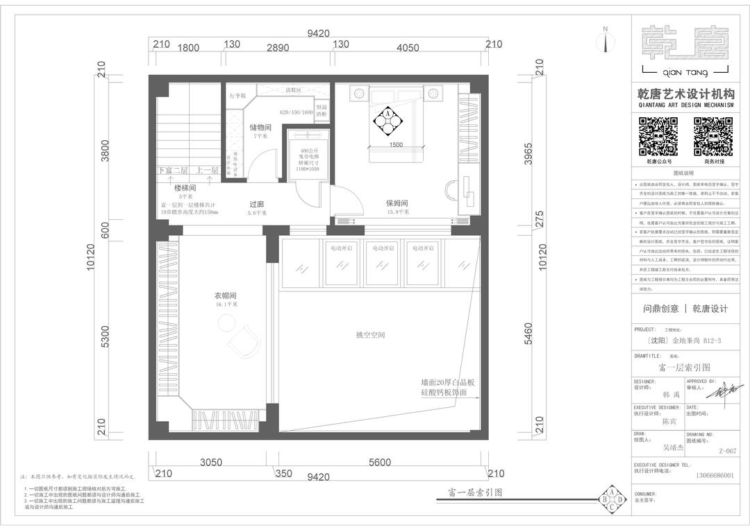
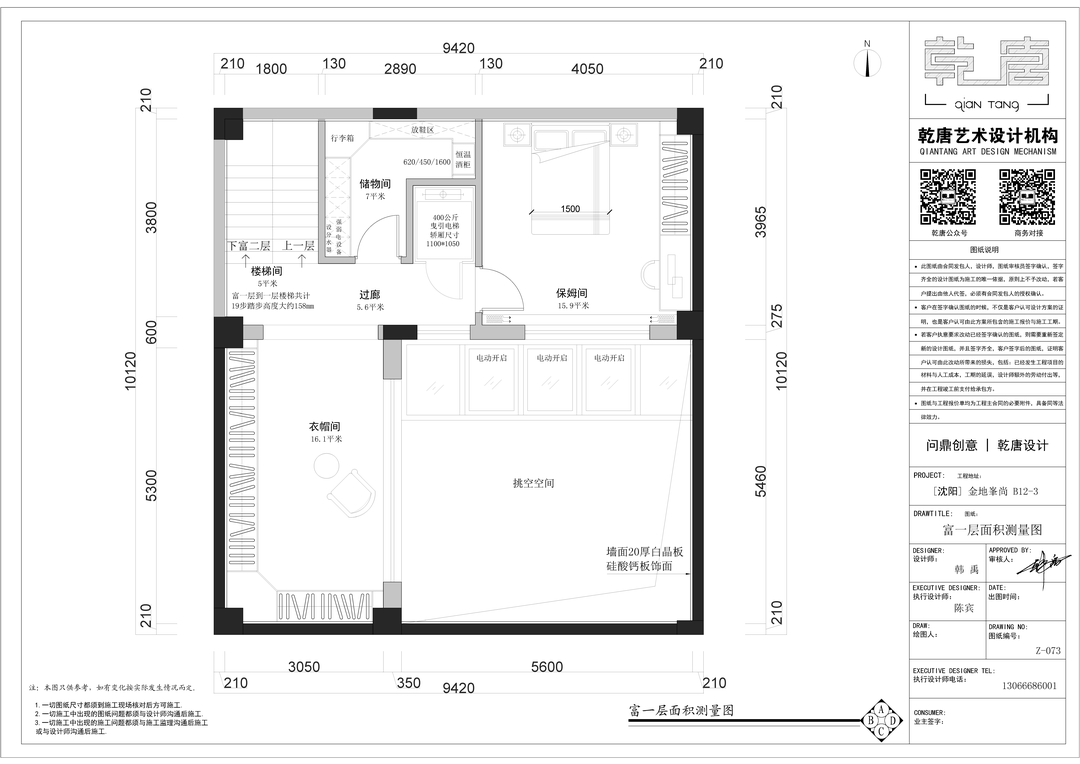
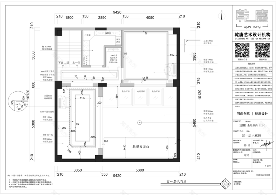
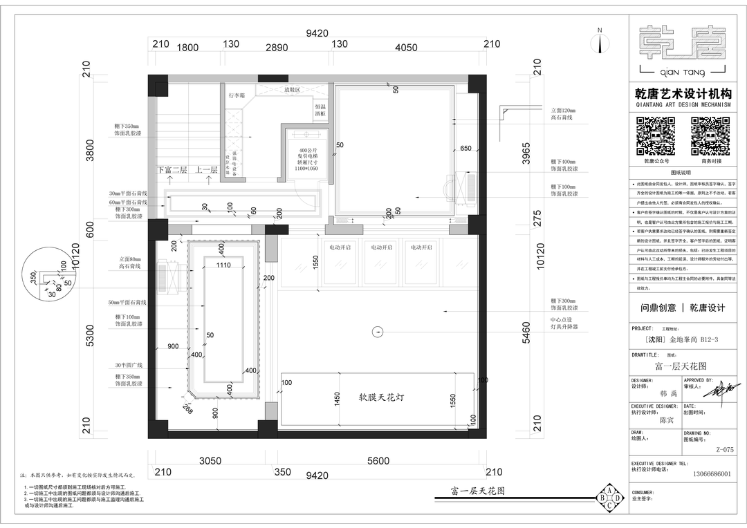
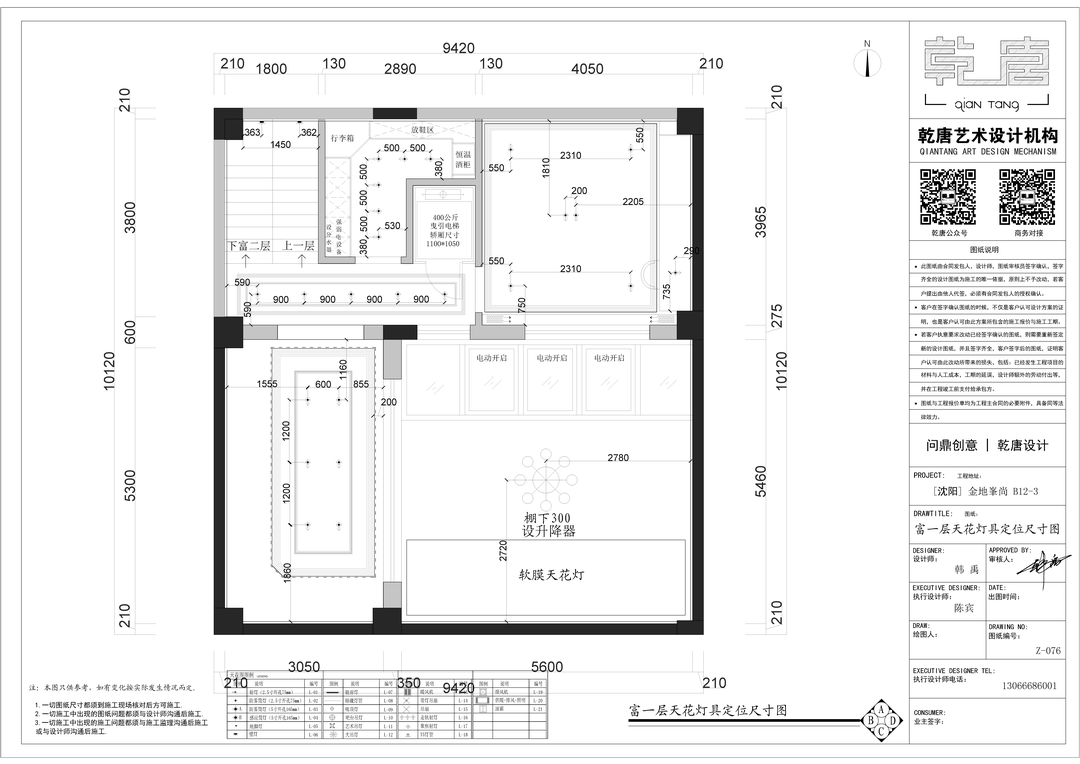
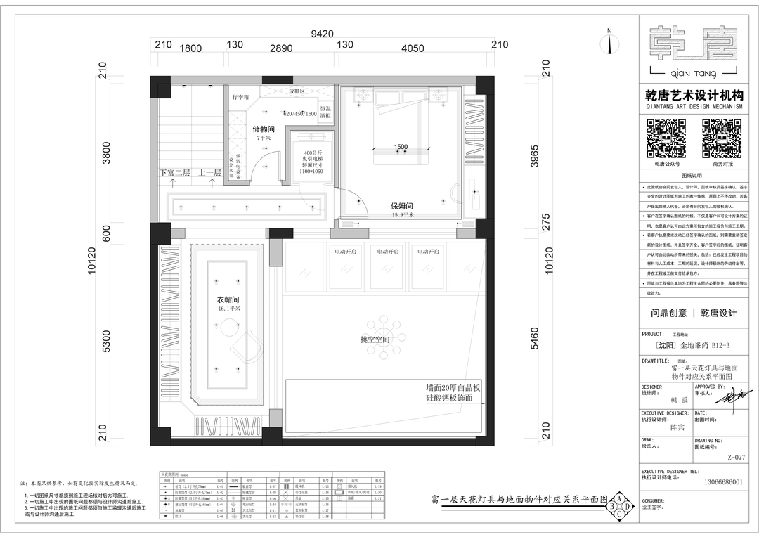
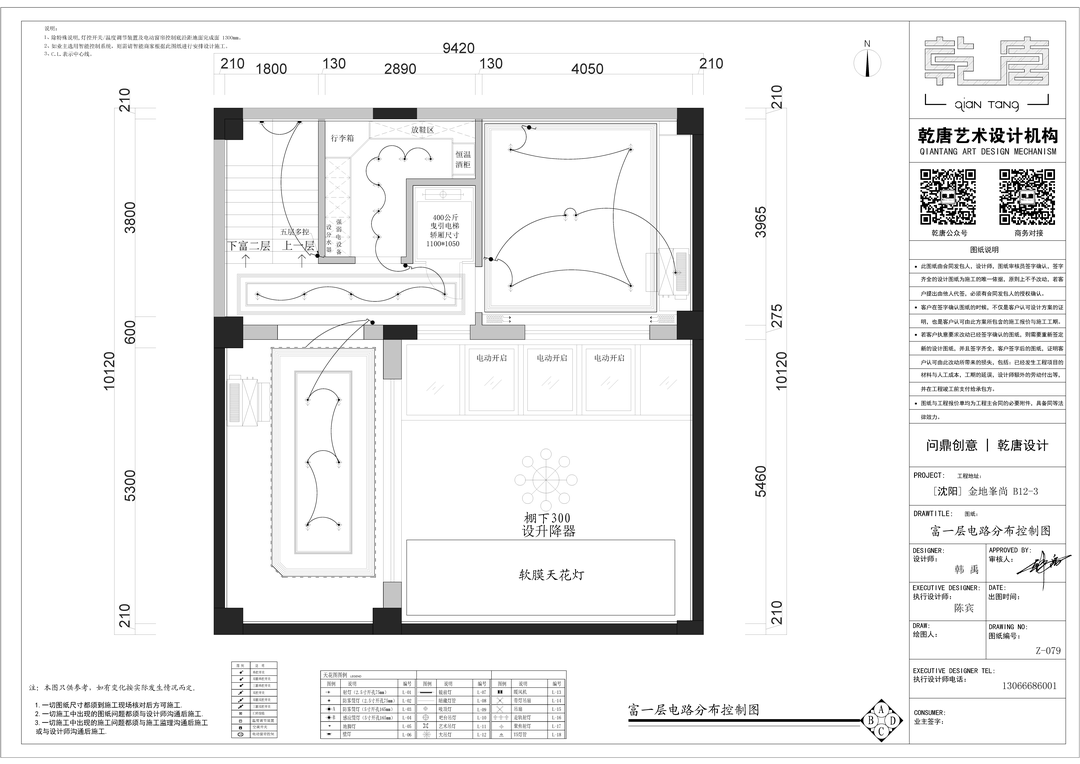
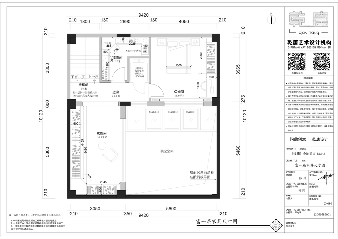
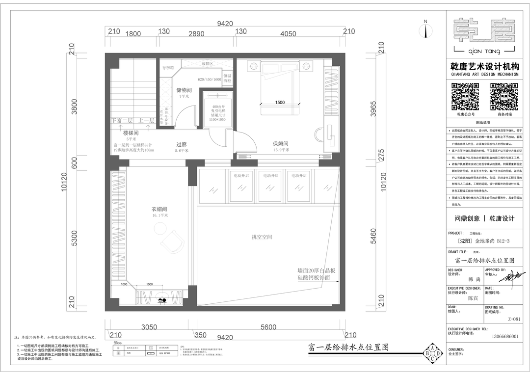
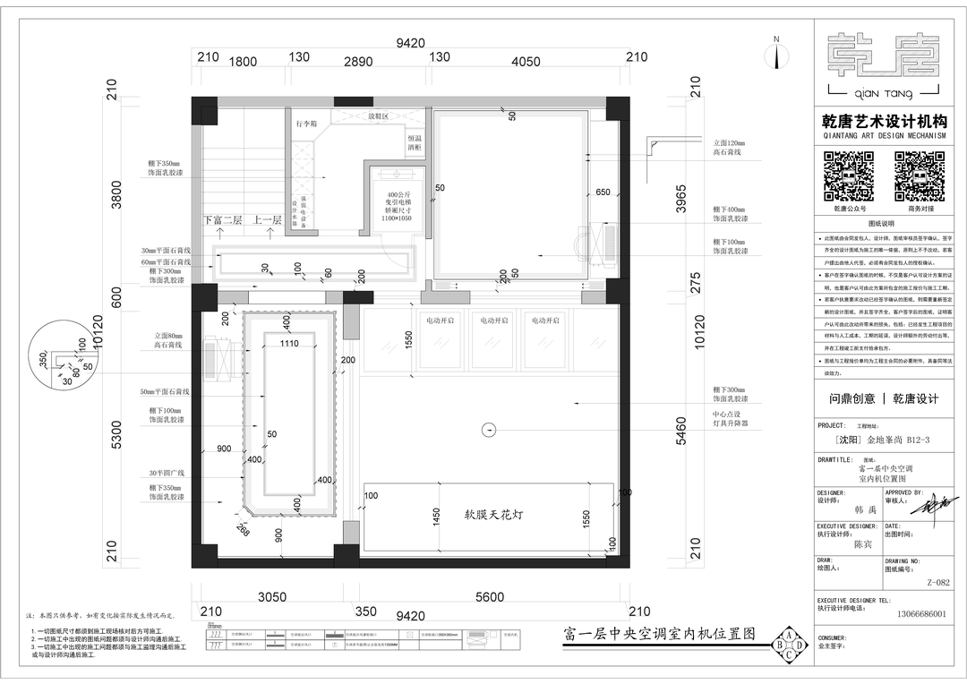
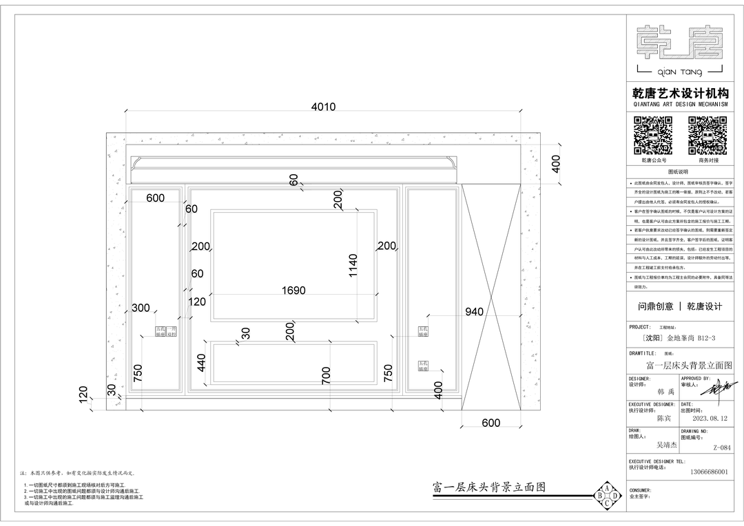
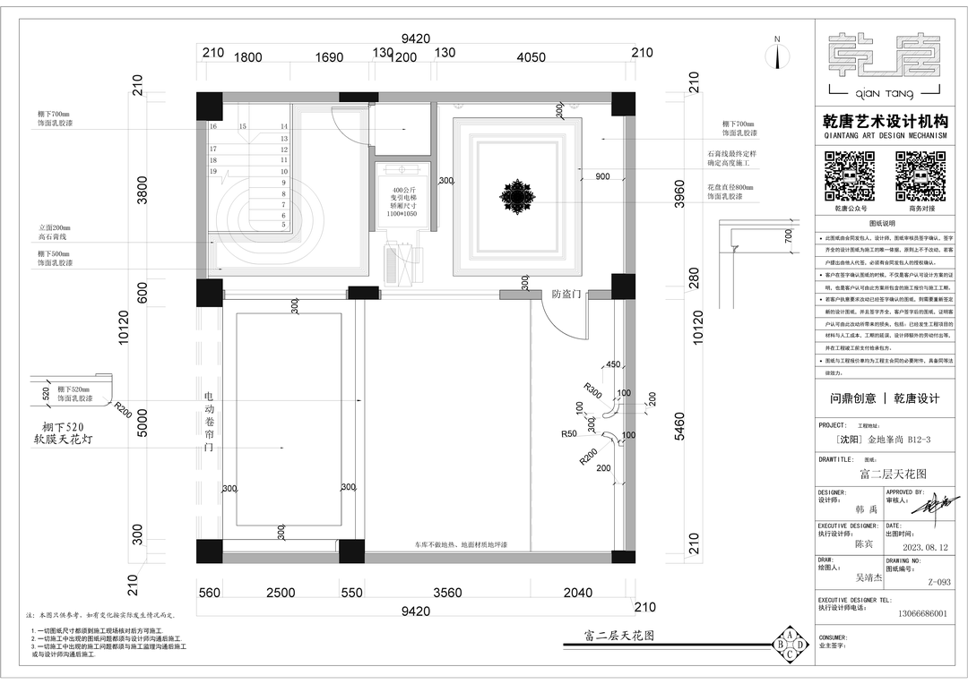
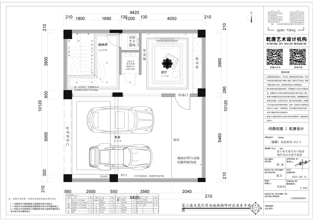
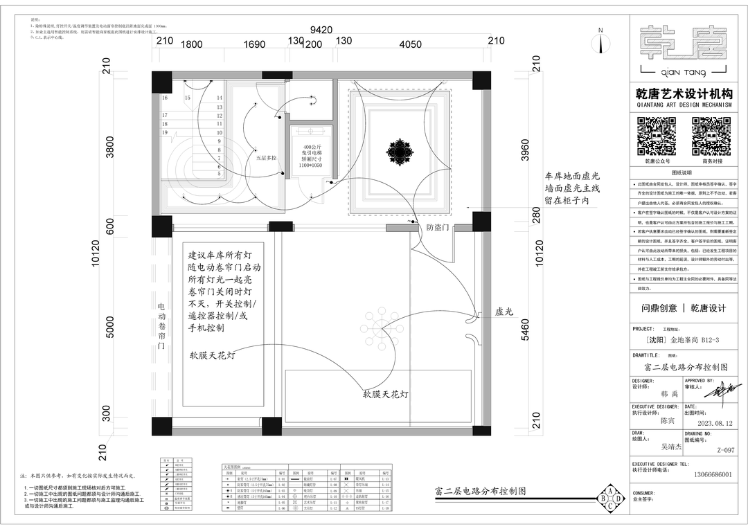
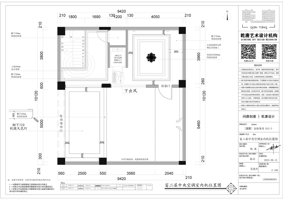
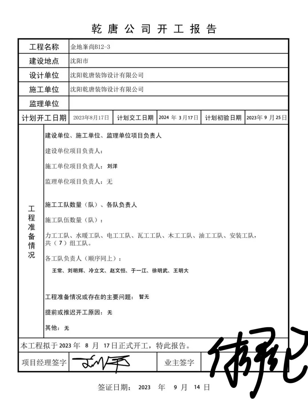
金地峯尚B12-3
▲TDD+e乾唐设计团队
室内设计:TDD+e乾唐设计
设计总监:韩禹
设计团队:陈宾、王艺、王明大、吴靖杰、范宁
软装设计:唐诗
项目名称:金地峯尚
项目地点:辽宁 沈阳
项目类型:别墅
项目面积:350㎡
开工时间:2023年8月17日
预完工时间:2023年12月31日
主要材料:天然大理石、PU线条、艺术漆、实木油漆、艺术瓷砖等
乾唐设计公司特别规定:对冷热水管路进行了分色套管处理,所有热水管均为红色,冷水管均为蓝色,一个方面防止水管夏季结露,更重要的是一下子区分开来冷热水管,便于公司和客户检查,在施工和维护的每一个阶段,乾唐设计公司为客户提供上乘服务。
为避免强电信号受强电磁场影响,国家规范规定强、弱电平行间距不小于20cm,为保证此规定的执行,乾唐设计公司规定不同类别的线缆使用的穿线管颜色不同,强电线管均为黄色,弱电线管均为绿色,另外电源线与通讯线不得穿入同一管内。
涂刷德国汉高柔性防水灰浆规定卫生间地面须满刷深绿色德国汉高柔性防水灰浆,并从地面延伸至墙面300mm。淋浴区加高至1800mm,边沿整齐。德国汉高柔性防水灰浆抗变形能力强,有效规避局部磕碰、墙体变形造成漏水。更细致的施工和更优质的材料相结合,实现了家装工程的完美品质。
防水验收主要是闭水实验的记录,包括检验的开始时间、验收时间、试验时间及试验结果,并确保防水验收的合格。
第一阶段验收包括水电项目(水路改造、电路改造)的检查位置(厨卫、各空间)、检查内容及质量要求以及检查结果。
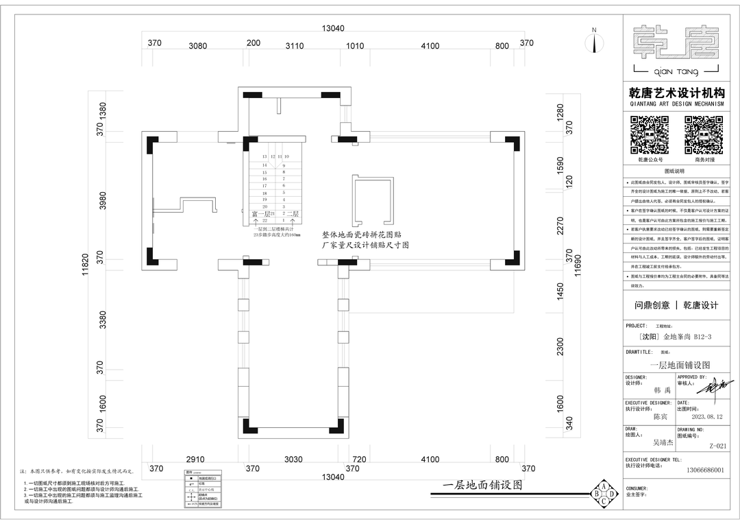
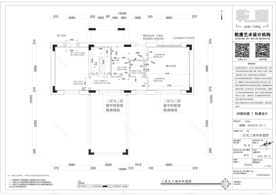
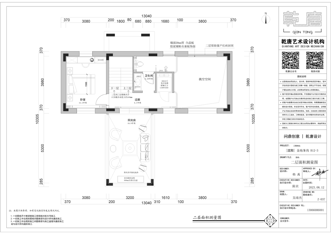
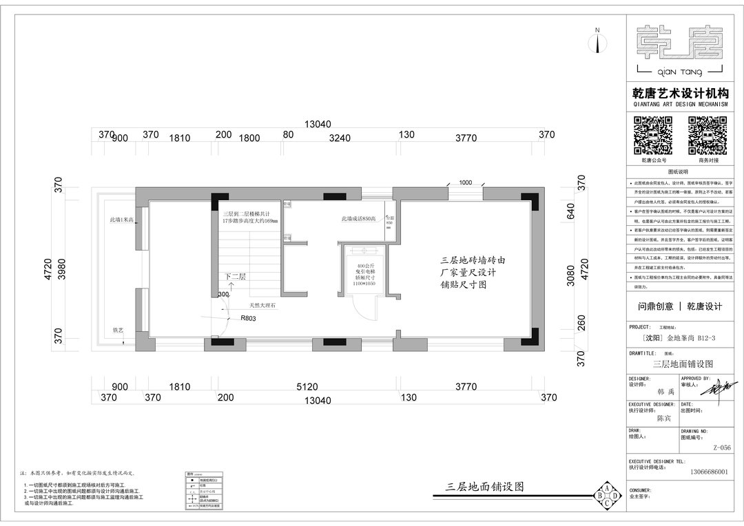
设计师需要参与与瓦工进场后修补和找平工作,这个阶段要跟工人交代清楚每个空间用哪些规格、样式的地砖墙砖,然后贴砖从哪里开始贴,避免把尴尬的贴砖手边留到比较显眼的位置。
公司工艺要求,铺贴瓷砖时水泥砂浆要饱满,贴于墙面的切割仿古砖及地砖必须使用瓷砖粘接剂,以防止瓷砖空鼓现象发生。在质检部检查验收时,对瓷砖的空鼓率检查是一个重点项目。
总监巡检
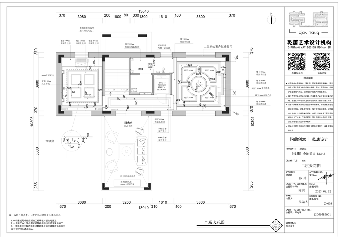
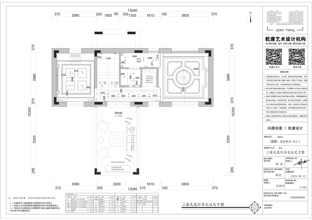
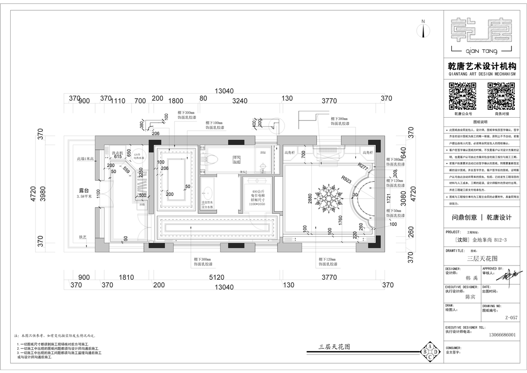
在检查主龙骨吊杆螺丝的紧固性,并拉拽检查轻钢花骨,保证龙骨整体稳固。检测人员在拉线(或借用水平激光线)检查副龙骨底面是否等高,从而保证石膏安装后底面的平整度。
未完待续~
设计咨询
更多信息
百度:韩禹
抖 音:乾唐設計
微博:乾唐設計
微信:13897930079
咨询洽谈
ADD:沈阳市铁西区北二东路 红星美凯龙设计馆顶层
客服
消息
收藏
下载
最近






































































































































































































































































































