查看完整案例

收藏

下载
项目信息
PROJECT INFORMATION
地址/柳浪阁
城市/中国杭州
户型/三室两厅
面积/100㎡
风格/混搭
设计施工/浙江南鸿装饰
作品前言.
ABOUT HOME
这套房子是作为业主的一套备用房兼后期的工作室使用,功能设计需求主要在书房这块区域上。
本案的客厅刚好居两个房间的中间,为了不影响采光和空间感,客厅两侧均做玻璃移门的处理,也使得空间可以在公共与私密两种状态间自由切换。
墙面装饰整体留白,用以平衡多样化的软装元素所带来的视觉厚重感。全屋使用大量温润的木材与暖色调的设计,如同一枚太妃糖般,带来甜蜜而香醇的滋味。
软装搭配上尽显混搭的风采:餐桌结合大理石和黄铜材质,沙发结合磨砂皮和金属铆钉元素,质感上都是较为轻奢的,沙发边的斗柜又有新古典和法式的元素,茶几也是两种材质进行了组合......不刻意划定风格的家具,以一种随性而自由的姿态呈现在空间之中,组合出一幅艺术气息浓厚的优美画卷。
“在设计的世界里,创新和个性是我们永不停歇的追求。设计就是要敢于去打破常规,通过造型、颜色、材质、形态的多变组合,用无限的创意赋予空间更多的灵性和自由。”
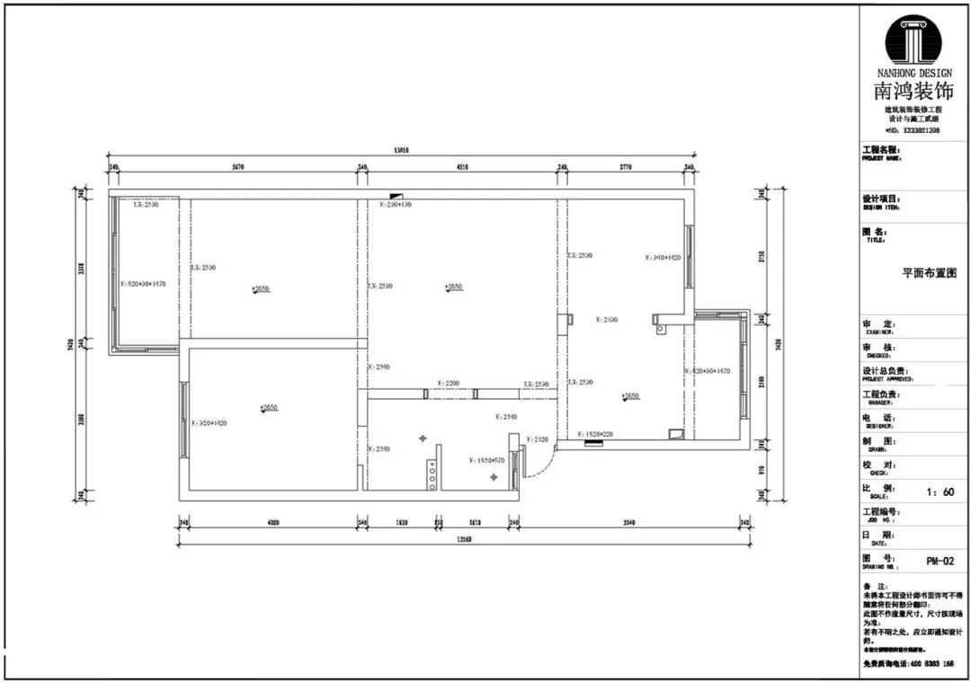
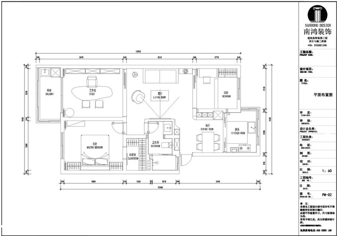
户型改造
LAYOUT DESIGN
①将原户型厨房的外阳台包进,优化餐厨空间。
②书房和次卧采用移门设计,整体空间更加开阔和明亮。
③卫生间台盆外置,增加了主卧衣帽间。
④次卧做多功能房,平时可以作为客厅的一部分延伸客厅的空间感,需要的时候可以作为临时的客房使用。
⑤主卧除了衣帽间之外,还在床头两侧设计衣柜,进一步增加储物面积。
实景呈现.
CASE APPRECIATIONNo.1客厅
客厅居于书房与次卧之间,两侧玻璃移门的设计,让空间感得到延伸的同时,不会影响到居家私密性。地面通铺人字拼的木地板,墙顶均做留白,居室的氛围温润又安恬。
背景墙用石膏板面工艺拉出凹凸的层次,简白有型的体态勾勒出轻松闲适感。磨砂皮面结合金属铆钉的浅色主沙发,搭配木石组合的茶几,两侧加入落地灯和法式复古风的黑色斗柜,不同材质和元素间彼此碰撞,让空间充满活色生香的艺术气息,远观近看皆是佳景。
空间整体暖棕色系处理,加上恰到好处的留白,表述着一个关于冬天的温暖故事,宁谧、优雅而独特。
No.2餐厅
餐厅位于入户口,毗邻厨房,选用了现代轻奢风的餐桌椅与吊灯,在温润木意的渲染下,呈现低调雅致的视觉观感。
餐厨间同样用玻璃移门隔断,下厨的时候便能杜绝油烟的问题。木质的餐边柜与四周融为一体,功能划分清晰整洁。
餐食区过渡到室内我们用了曲面的转角,形态柔和,视线转换变得更加自然。
No.3厨房
厨房利用U型设计将空间的利用率提到极致,木白色系呈现素雅,白色的蜂巢帘沉稳大方,独特的光线过滤效果,倍增室内温馨氛围。
No.4书房
书房需要作为主人后期的工作室使用,移门一合,便是一个完全私密和独立的办公、会客空间。内部延续了整体简洁温馨的色调,搭配朦胧感的国风壁布,使空间浸润在和煦与静雅之中。
书柜的设计结合了多种元素和形式,比如木材、金属板,比如玻璃门、层板。书柜的玻璃夹丝柜门与墙面的壁布一样,同样具有朦胧的效果,起到呼应作用,搭配金属质感的边框,让精致感、优雅感逐步丰盈。
No.5主卧
主卧是一个简约但优雅的空间,没有任何视觉和行为上的干扰,只在温柔与纯净之间,打磨出恒久的肌理和质感。床头两侧增加储物空间增强实用性,床尾则用一个美式的白色斗柜增加居室的复古感。
No.6次卧
次卧设计地台,底部灯带营造悬浮式的视觉效果,半开放的呈现方式,增强了家庭成员间的陪伴感。整体的木色让人倍感治愈放松,空间是书房、客房,同时也是收纳室和休闲室,实用性与美观度不分上下。
No.7
卫生间
卫生间使用大量鱼肚白的岩板,厚实的结构体块、镜面框架共同奠定沉稳大气的基础,墙排式的龙头更显时尚和精致。
客服
消息
收藏
下载
最近




































