查看完整案例

收藏

下载
小宅空间
Roman Kapenkin
新作,25
㎡
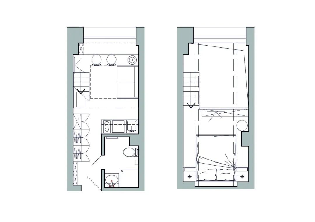
小型公寓,把生活所需的一切都装进了一个微空间。迷你厨房、餐厅和工作区、一间卧室,甚至还有一张客床。浴室有3
㎡
,不仅安装了淋浴和水槽,还安装了洗衣机。
空间布局
▽
一楼的主要空间分为几个区域:夹层下的厨房壁龛,中间的折叠沙发和电视,靠窗的吧台,也可以用作办公桌。一张双人床放置在夹层;它位于两根天花板横梁之间,从而为天花板提供了更多的净空空间。
工作区域受到厨房所在壁龛尺寸的限制,
工作台面上有一个水槽和一个炉子,并且有可用的烹饪空间。
下层设有冰箱和储物抽屉,
上层设有架子和洗碗机
。
选择色块作为装饰技术,明亮的颜色并从中创建几何构图。天花板横梁没有任何装饰,海报上鲜艳的印花作为孟菲斯风格不可或缺的一部分,与室内的主色调相得益彰。
客服
消息
收藏
下载
最近
















