查看完整案例


收藏

下载
卡萨斯,墨西哥圣佩德罗加尔萨加西亚
设计师:SITTUM Arquitectos
面积:1730 m²
年份:2019
摄影:Mariola Soberón
提供协助:AutoDesk, Bloquera Regiomontana, Gilsa, Grupo Arca, Trimble, Glasswelt, The Woodshop
负责建筑师:María del Carmen Gonzáles, Guillermo Antonio Vidal
工程师:Guelco Ingeniería
Paisajismo:SITTUM Arquitectos
顾问:Revitaliza Consultores
合作者:PCG Design, Grupo Índice
城市:San Pedro Garza García
国家:México
设计师描述 | Designer description:
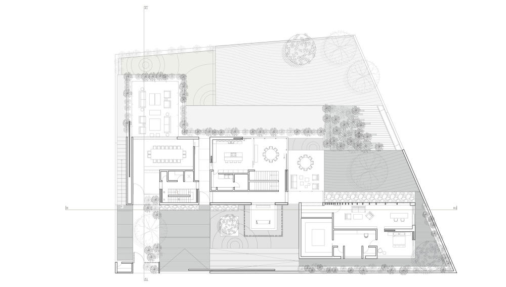
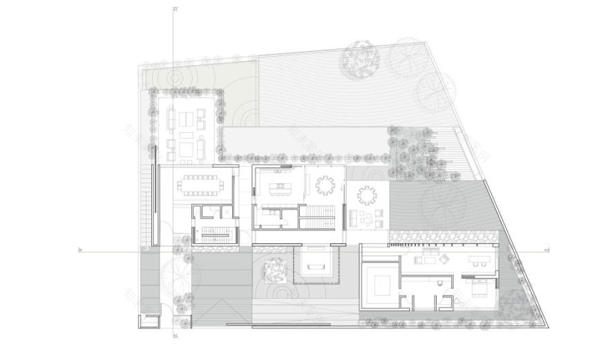
这栋房子由玻璃连接器铰接而成的三块石头砌成,构成了这栋专门为用户设计的建筑程序。 阅读周围环境并应用环境策略决定了住宅的形态和经验,并获得了银级房屋的LEED认证。
每个体积均独立响应特定程序,并保持空间调制,实质性,自然采光和遮蔽的恒定原理。 该计划细分为具有广泛计划的项目提供了规模,规定了清晰的容积并标出了居住地的特定路线。
从多学科的角度来看,一种方法设法使景观项目,室内空间的建筑和环境完全一致。 结果是不同元素之间的空间连贯性,使体系结构与特权环境统一起来。
可持续建筑原则被纳入设计和建筑中,以创建对环境和建筑物的居住者友好的高性能建筑。 为了衡量可持续性,该项目使用了美国认可的LEED房屋标准(房屋能源和环境设计领导力)标准。 绿色建筑委员会(USGBC)。
最终的对象是由位于其环境中的不同元素组成的建筑构图,展示了光影过渡,姐妹材质,空间层次结构,自然大气和高环境标准的体验。
项目完工照片 | Finished Photos
设计师:SITTUM Arquitectos
分类:Casas
语言:西班牙语
阅读原文
客服
消息
收藏
下载
最近


























