查看完整案例

收藏

下载
复古优雅
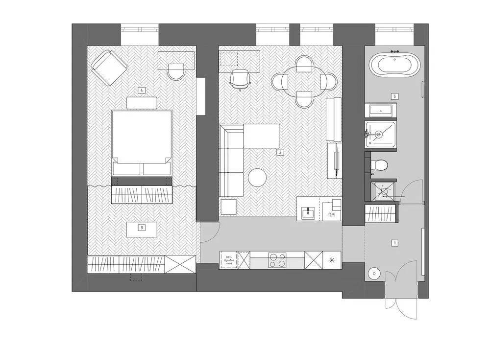
Alexandra Chigintseva新作,市中心一套74㎡老旧公寓,该公寓原本没有浴室,因此设计师重新设计布,厨房移至走廊,与客厅相连,客厅保留在原来的位置,浴室位于旧厨房的位置。
在细长的浴室中,创建了一个完整的壁龛系统。
这种又长又窄的房间经常出现在老建筑中;
壁龛的解决方案使得不必沿着墙壁布置“家具队列”即可提供必要的功能。
Orak Decor的现代灰泥造型重现了旧公寓的氛围,地板上铺着镶木地板,设法在客厅里恢复了原样,走廊、厨房和浴室均设有自流平地板。
该项目装饰有复古的、经过修复的Cesca椅子,由Marcel Breuer为Knoll设计;桌子和厨房是由AIR Mebel工作室制作的
;
沙发和床SK Design
;
阿皮卡镜子
;
Bezhko沙发上方的枝形吊灯。
空间布局
▽
客服
消息
收藏
下载
最近


























