查看完整案例

收藏

下载
筑鹿空间设计/ZL DESIGN
现代简约风设计
简洁 清爽
简约而不失精致
滨江道
Designer
设计师 刘一漫
Style
风格 现代简约风
视频鉴赏
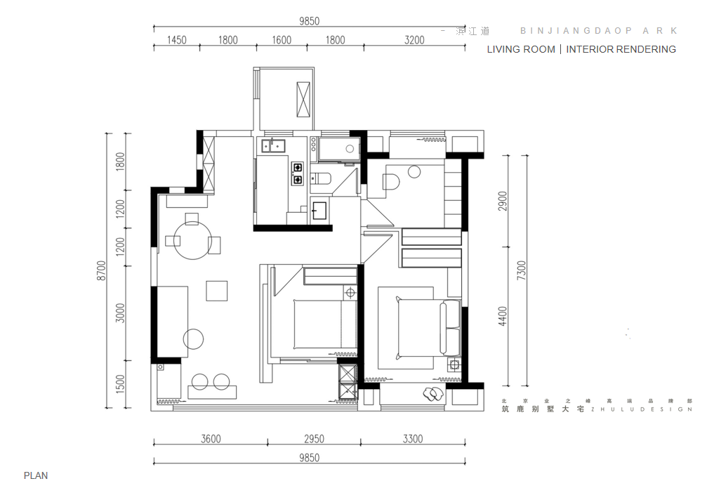
户型结构图
室内效果图
/
01
玄关
HAIIWAY
-玄关是进门的第一印象,因此保持整洁非常重要。考 虑在玄关区域设置一些储物空间,如鞋柜、壁挂式储物架,方便存放鞋子、钥匙、帽子等物品。并于中间设置一展台,可在上方放置装饰品、香薰等。即起到实际作用并且在视觉不显单调。
/
02
客厅
LIVING ROOM
现代简约风格采用白色、灰色和黑色。选择了纯色的墙壁和地板,搭配黑色或灰色的家具和装饰品,营造出简洁、干净的氛围。把质感和颜色运用到了极致,体现了独属屋主的生活情调。
/ 03
卧室
BADROOM
卧室的家具沿用了房屋的总体风格,让总体的视觉更加统一,整体灰色调点缀暖色调使得入眠更佳舒适,让劳累一天的身体得到全面的放松。
/ 04
书房
STUDY
书房是一个宽敞明亮的空间,设计简洁而舒适,是一个充满智慧和灵感的地方,让我们能静下心来聆听世界的故事,品味故事的韵味。
设计师
ZHULU DESIGN
筑鹿别墅大宅/ZLDESIGN 2023
把时间还给生活
设计师:刘一漫
滨江道/现代简约
客服
消息
收藏
下载
最近













