查看完整案例


收藏

下载

翻译
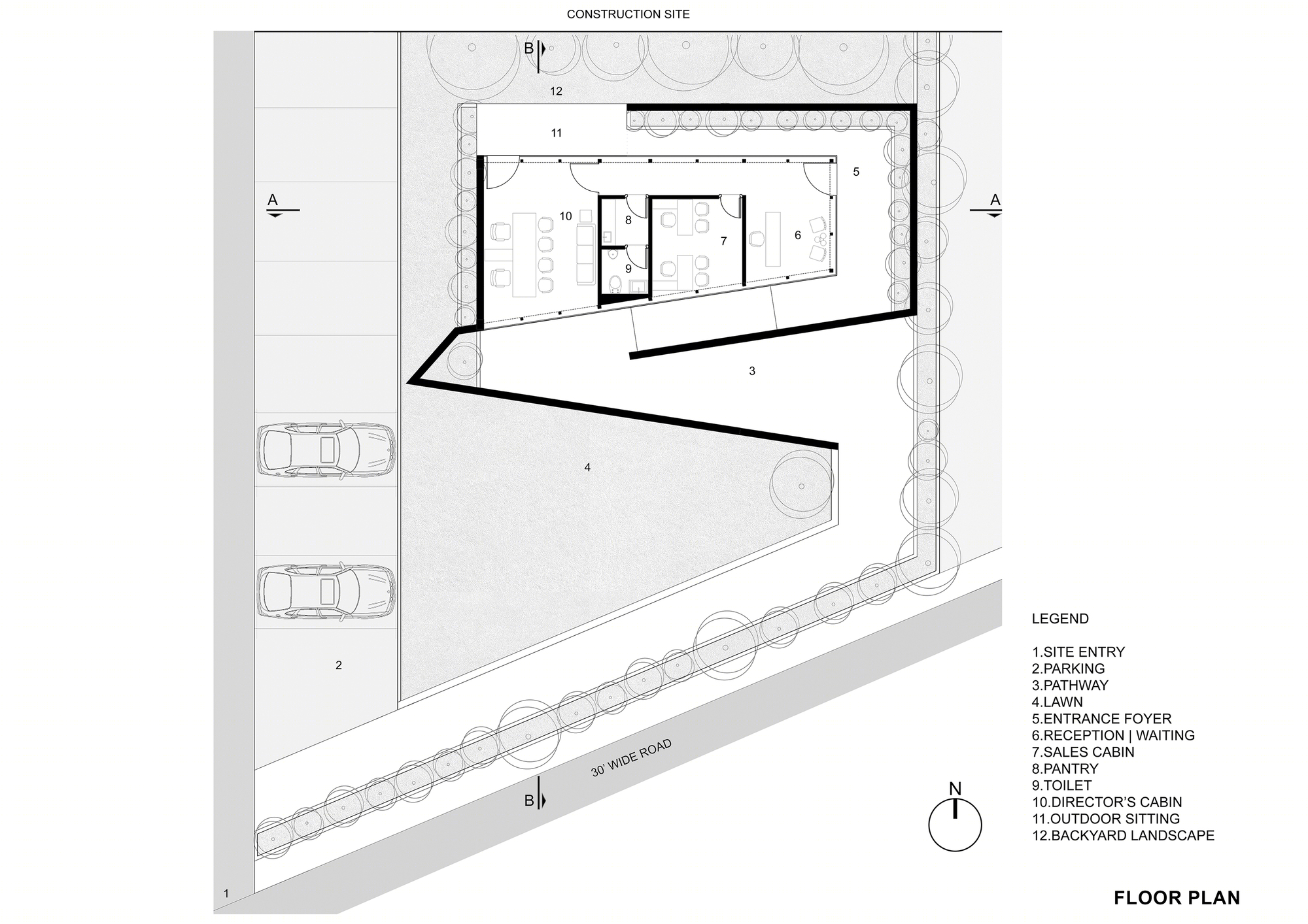
Located in the outskirts of Bharuch city, Wrapped Volumes caters as sales pavilion for developer’s multiple projects. The site lacks specific context, at the same time the abutting road chops the site into a trapezoidal shape. We transformed this progressive movement of the road along the site into geometry by wrapping up the spaces into a continuous facade.
As a result, the structure lifts itself from the ground and transforms itself into a dynamic geometry. Some parts of this wrap form a landscape layer, while others a protective skin, reducing the heat gain from south. The façade opens up on the north to penetrate natural light.
The façade poses a striking ribbed plaster which adds progressive motion to the structure. The office weaves the landscape and structure, engaging an individual to transcend from exterior to interior spaces to experience a sumptuous character of compact interior spaces washed in natural light.
客服
消息
收藏
下载
最近





















