查看完整案例


收藏

下载
我们思考我们的展厅是什么?它的功能是什么?我们构思得出这样的结论,空间如同酒的容器,我们的每一个不同的功能如同调酒一样,把基酒、白酒调和在一起,形成一个整体。空间的动线就像品酒,慢慢去品尝酒的酱香、甘甜,空间也是如此,呈现给客户一种娓娓道来的体验感。
国立酒业位于贵州省仁怀市有着中国酱酒圣地的茅台镇。国立品鉴馆作为酒厂日常接待、品鉴的场所,打造一个轻松、舒适、独特的品鉴空间,是这个项目主要的功能需求。
对于白酒而言,当酒精度保持在 53 度左右,白酒中的酒精分子与酒中的水分子之间的缔合最为牢固,加上酱香型白酒的储藏期较长,存储条件稳定,酒中的酒精分子游离较少,若是存放若干年后,在密封完整的情况下,酱香味依然浓郁、口感尚佳。
设计构思
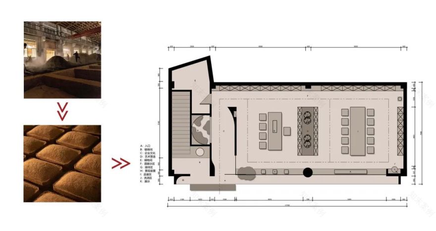
整个空间的平面布局就从池而来。正如人们拥有空间却无法 100%填满空间,而液体却可以占据整个空间。无形的酒,转化为曲线、转化为面,将整个空间划分开来,将这个“酉”划分开来。
平面构思
佳酿如佳人,品酒需品魂。“酒之魂”从品味文化上来讲,
四韵即“色韵、香韵、味韵、格韵”,对应白酒的“物质四观”,“色、香、味、格”韵致的感知状态。
色韵
兰陵美酒郁金香,玉碗盛来琥珀光
香韵
花气酒香清厮酿,花腮酒面红相向
味韵
我饮不尽器,半酣味尤长
格韵
偶得酒中趣,空杯亦常持
品酒桌设计模型
茶桌设计模型
展架装置模型
左右滑动查看更多
五意
所谓“意”,是喝酒、爱酒的一种感知状态,及时精神情怀的表达,也是人性休养的体现。
五意即“意境、意情、意向、意趣、意义”。
意境
绿蚁新醅酒,红泥小火炉
意情
酒逢知己千杯少,话不投机半句多
意向美酒饮教微醉后,好花看到半开时
意趣
举杯邀明月,对影成三人
意义
对酒当歌,人生几何
这是我们在商业空间设计的一次“新”的探索和“心”的耕耘,打破常规的设计逻辑,让重生、锐变成为场所的灵魂。以生产工艺构与酒为创作构成,最终构建出酒文化的空间美学。
原始现场
施工现场
造型施工
原创家具施工
左右滑动查看更多
项目信息
项目名称 | 国立酒业品鉴馆
项目地点 | 贵州省仁怀市茅台镇
项目面积 |120m²
设计机构 | 凡舍设计
设计总监 | 孟磊
设计团队 | 赵玲岑 田小伟
施工单位 | 凡匠工程
灯光照明 | 金牌之光
主要材料 | 钢板/水泥砖/木方/小麦/艺术涂料
设计时间 | 2022 年 06 月
竣工时间 | 2023 年 01 月
项目摄影 | 一刻视觉
DESIGNER
孟磊
贵州省凡舍空间设计有限公司
创始人兼设计总监
设计理念:方寸之间、人本无间。设计,如同一种生活方式,是包括功能、材料、工艺、审美等因素的综合。优秀而贴心的设计,往往能满足多维度的心理需求,以润物细无声的方式,让我们的身心灵能体会到趋向完美的生活状态。而我们身处的空间环境,作为身心灵需求的物质实体,无论是外观的呈现、功能的设计、材料的运用,理念的传递,都蕴藏着深层的情感内涵,在不知不觉中,为我们构建出丰富的内在世界。
客服
消息
收藏
下载
最近






































