查看完整案例

收藏

下载
项目地址 | 嘉致峰
项目性质 | 私宅
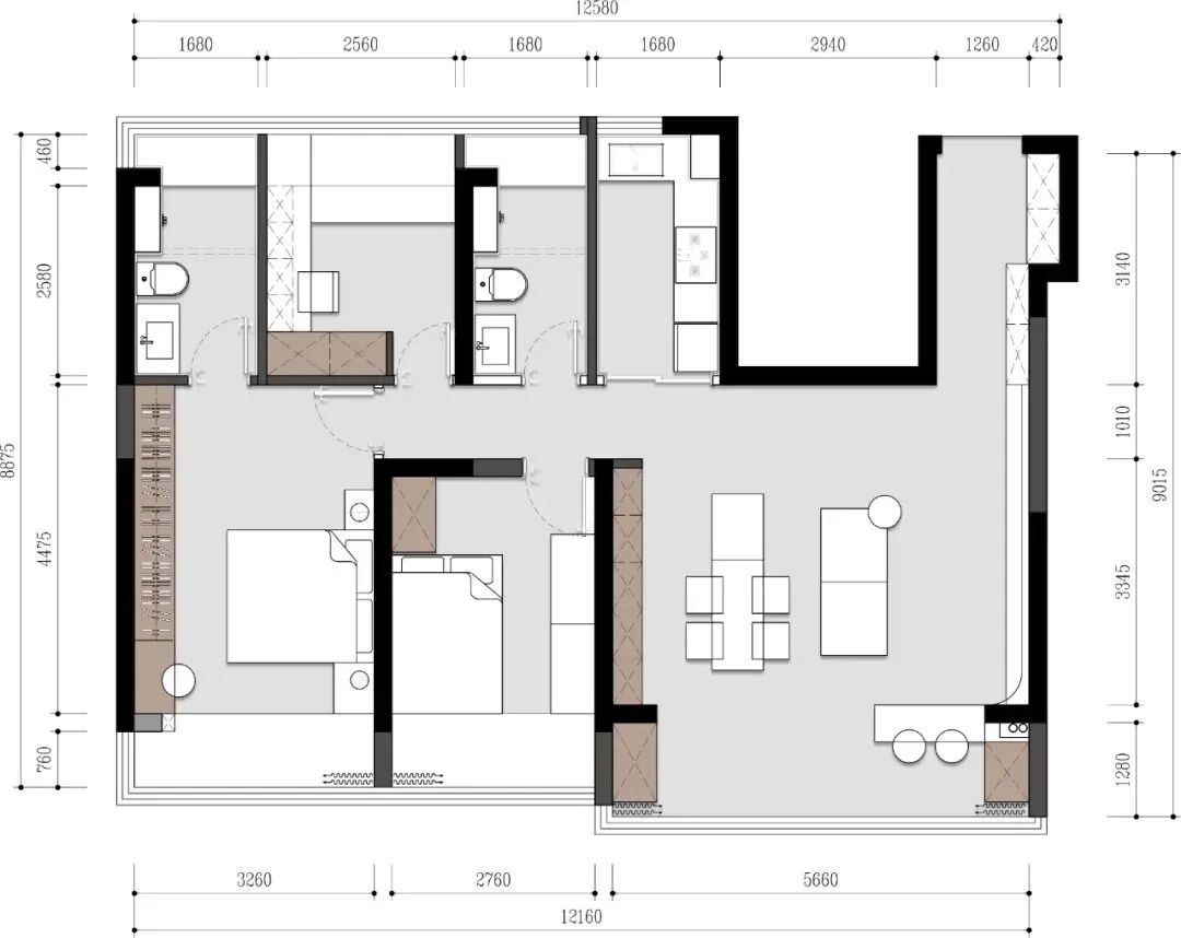
项目面积 | 120㎡
设计机构 | 铭棠空间&黎铭设计
软装陈设 | 铭棠空间&有类软装
▼平面布局图 FLOOR PLAN
原始结构图
平面布置图
空间是为居住者服务的,不流于形式,不被观念束缚,与居住者真实生活没有距离的空间,才是真正的家。
本案从业主的生活轨迹出发,打破家的固有形式,弱化客餐厅的功能表达,将公共空间打造成融合休闲、就餐、阅读、互动的复合空间;同时将原木这种主材发挥到了极致,剥去繁琐的装饰,注重实用主义的表达和亲近氛围的塑造,让舒适的日常成为家的主旋律。
01
玄关
ENTERHALL
纯白的底色与原木交织,让入户明朗轻快,收纳柜塑造出错落的层次,同时融合了展示、换鞋能功能简洁实用。
02
客厅
LIVINGROOM
客厅以极简的设计呈现出高自由度的场景。空间功能不再被拘泥于传统的会客模式,可以成为一家人的放松场域。沙发简约的设计打开空间的格局,宽敞的空间让人感觉更舒适自如。
阳光和原木将阳台包围,木格栅的纹理装饰出丰富的层次和温暖的气息,空间沐浴在松弛舒适的氛围之下。躺椅和地毯将空间的舒适性拉向一个新高度,让小小一隅变成享受安静时光的空间。
阳台的另一侧设计了水吧台,让多元的功能为生活增添更多乐趣。木质的小吧台在半透明玻璃的修饰下多了几分复古的格调,飞碟灯复古而精致,为吧台增添独特的格调。
03
多功能区
MULTIPURPOSE AREA
开放式的空间凝聚了一家人的多种生活场景,就餐、办公、阅读、亲子互动......空间以岛台与长桌的结合代替书桌,打造更丰富的功能;质朴的长凳既满足日常需求又能释放空间,视觉效果与使用体验都得以提升。
内嵌式的书柜拥有纯净的底色,塑造出空间的开阔感;灯光与线条将这里分割出秩序,灯光晕染出暖洋洋的氛围,让空间更有温度。
04
卧室
BEDROOM
卧室将原木利用到极致,铺陈出空间温馨质朴的基调,充足的留白让空间更有呼吸感,张弛有度。宽阔的飘窗被木饰面全面覆盖,触感温暖,为休息提供不一样的形式。
衣柜与阳台无缝衔接,相同的材质让过渡更为自然。将梳妆台穿插在衣柜里,不打破空间的协调性,黑色的加入碰撞出视觉的张力,打造色调与质感的平衡。
客服
消息
收藏
下载
最近


























