查看完整案例

收藏

下载
◤
◤
丨设计师说丨
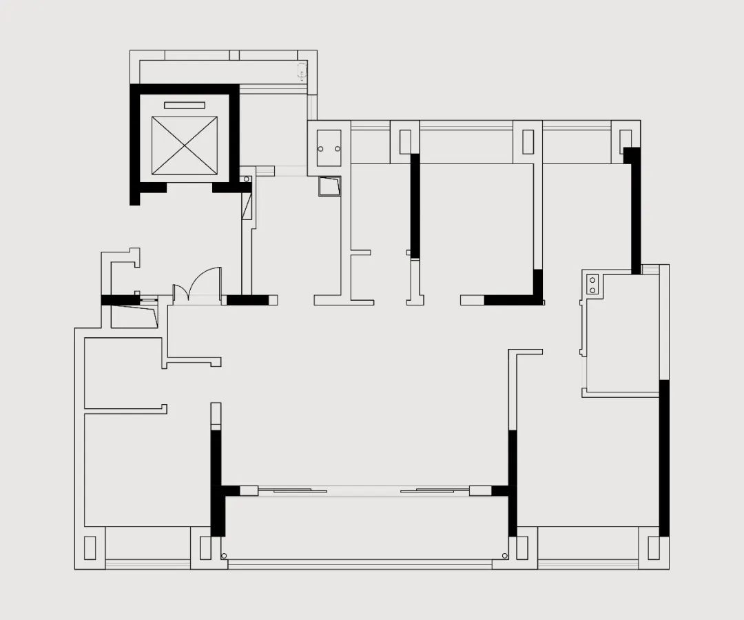
这套在硬装结构改造上能够有所构思大施拳脚的过程非常愉快,解决了户型进门堵,无门厅,不开阔的硬伤问题。根据年轻业主的喜好,选择了现代风格的设计,整体空间不繁复,简单即是高级。
>DENG DESIGN<
✦
为了让客厅整体空间更加通透开阔,选做薄款电视壁无电视柜的设计,白色的墙面与地板相接,使得空间更具空旷的呼吸感。客厅与阳台连通,采光极好,天气正好的日子,阳光透进窗帘从左边划向右边,踱步在此感受时间的变化,捧一杯咖啡,享受闲散一天的安静时光。
In order to make the overall space of the living room more transparent and open, choose to make a thin TV wall, no TV cabinet design, white wall and the floor are connected, making the space more empty breathing sense. The living room is connected with the balcony, the lighting is excellent, the weather is right, the sun shines into the curtain from the left to the right, pacing here to feel the change of time, holding a cup of coffee, enjoy the quiet time of the day.
在入户映入眼帘的区域搭建了一个小吧台,也正好在餐厅后方,餐桌椅选用了黑橘搭配,暖色一向是最能勾起食欲的颜色,在保有现代高级感的同时,选用暖色点缀,曾香增色一举两得。饭后闲暇时,也可以在吧台处小酌一杯,与家人惬意相伴。
A small bar is built in the area that meets the eyes of the entrance, just behind the restaurant, the dining table and chairs are selected with black and orange, warm colors have always been the most able to arouse the appetite of the color, while maintaining a modern sense of advanced, the use of warm colors embellish, Zengxiang color kills two birds with one stone. At leisure after dinner, you can also have a drink at the bar and be comfortable with your family.
主卧融入了一些法式的元素,做了圆角拼色背景&卫生间的拐角圆弧拐角设计,只是两处简单的设计就将原本规整的空间呈现出一种设计感,圆角的柔和带动着氛围也变得轻和。沉沉的身体有所释放,才会让自己的神采奕奕。
The master bedroom has integrated some French elements, made a rounded color background & corner arc corner design of the bathroom, only two simple designs will show a sense of design in the original regular space, and the soft rounded corners drive the atmosphere to become light and light. The body has been released, will let their own spirit.
次卧选了木质百褶窗帘,为房间增添了一丝朦胧之美,床头优雅的大靠背设计,让你在卧室中也能感受到艺术的气息,墙壁也有选用带有现代元素的长臂灯,深夜时也能让光线很好的融入其中。
The second bedroom chose a wooden pleated curtain, adding a touch of misty beauty to the room, the elegant large back design of the bed, so that you can feel the atmosphere of art in the bedroom, the wall also has the choice of long arm lamp with modern elements, and the light can be well integrated into it at night.
▼
>原始结构图<
>平面布置图<
硬装设计师:施佳璐
软装设计师:龚子璇
客服
消息
收藏
下载
最近

































