查看完整案例

收藏

下载
半隐半遮 寄古韵悠情
白墙黛瓦 展绵延新象
尘世繁华流转 畅抒自然洗尽
巧思严造 纵深尽在和园
不拘传统中式构筑的表象,秉持文化回归的初衷,用一处古意小院儿,经当代建筑与设计语言,重塑飞檐轻巧的古典建筑的意象,新绘中式简约的新派东方风情,如此成就,惠风和畅。
•
01ENTRY
入境
一层入户,路径直通有度,原木材质包裹的简静气质,给予入口空间更多稳定心神的力量,让自然的光影在此得以重生。
剔除了繁琐的设计元素,保留直白的装饰语言,过廊以有棱有角的线条感,对比磨砂玻璃与哑光材质,构造一派大气无声。
石质黑马的艺术摆件,呼应红色立柱,鲜明的对比间,满满活力给整体视觉热烈的冲击。
P. 01
P. 02
P. 03
磨砂玻璃既是屏风、又是光源的另一种呈现,将客厅的平和宁静分层逐步展出于面前。增加了艺术感染力,缩减了空间占比,是设计师一加一减的巧思。于是,在质朴空间的伸展下,岁月静美的脚步慢慢延续。-
P. 04
P. 05
P. 06
P. 07
P. 08
腊梅傲雪,迎冬只待初绽。客厅沙发后的背景墙体以浮雕、画卷合二为一的新颖形式,描绘出一幅繁华洗尽,只待春来的幽静。
布艺沙发、地毯以浅灰色调及材质一一呼应场域气质,承载了对“久在繁华里,复得返自然”的寻觅与向往,更和谐体现设计、自然与人之间的关系。
P. 09
P. 10
P.11
P.12
请光入室,是私宅设计尤其别墅设计的重要环节,外景与内饰的呼应,山野和内心的响应,都在这一窗白纱落地的玻璃窗前,徐徐散发着如梦遨游的神思。
南北通透的起居空间,以开朗过道将客厅与餐厅左右呼应、妥帖安放。惠风清朗而过,尽展愉悦笑颜。
P.13
P.14
餐厅的采光更为明媚,在自由光影之下,艺术留白的墙面投下绿植斑驳的影子。简约拙朴的清雅气质,汇聚一片新派中式意境。入境,举杯畅怀,便可消融尘世烦忧而忘我。
P.15
•
02HIDDEN RESIDENCE 潜邸
天井投下温和的光语,下沉一层作为茶室与书房,以朗阔格局,坐拥最宽广的纵深。为尽可能将暗堂变为明厅,天花与地板都选取了莹白色调,增强整体光照的质感。
P. 16
P. 17
胡桃木色的禅境太师桌椅与书柜,榫卯工艺呈现出更多东方古意。白瓷茶盏交错,淡雅茶巾相邀,静谧之间,就着四时之色,轻谈一场风雅茶事。
胡桃木吊柜与墙面呼应一体,没有多余造型与装饰,随遇而安只见自然天与地。
P. 18
P. 19 留一处石壁古垣,卧一塌新派软椅,一番古今意趣,皆在潜邸之处、俯仰之间。-
P. 20
P. 21
P. 22
• 03
CLIMBING THE CLOUD
登 云
二层主卧室亦是极简风格的另一种共鸣,米白色与低饱和色调的整体氛围尽显平和而宁静的精神力量。
大面积落地窗映出天高云淡,与淡而含蓄的素雅室内气质,构建起安宁的栖息空间。且执白练当空,登云舞,妙想清欢之姿。同是浮雕设计手法的床头背景墙面,将柔美澎湃之力动人心魄,搭配半包裹式布艺床靠,共叙一室且暖且软的和畅净土。
P. 23
P. 24
P. 25
P.26
衣帽间采用墨色玻璃与灰咖色衣柜整体搭建,复古与时尚兼具,做出沉淀内敛的高级表达。洗浴间内圆润转角的镜面,呼应黑白相间的洁具色调,凸显架构与取色之美。-
P.27
P. 28
古意却不繁杂,含蓄不失品味。畅然至美,需欲扬先抑;沉思雕琢,方举重若轻。
P. 29
• 04
ANALYSIS
DIAGRAM
分析图
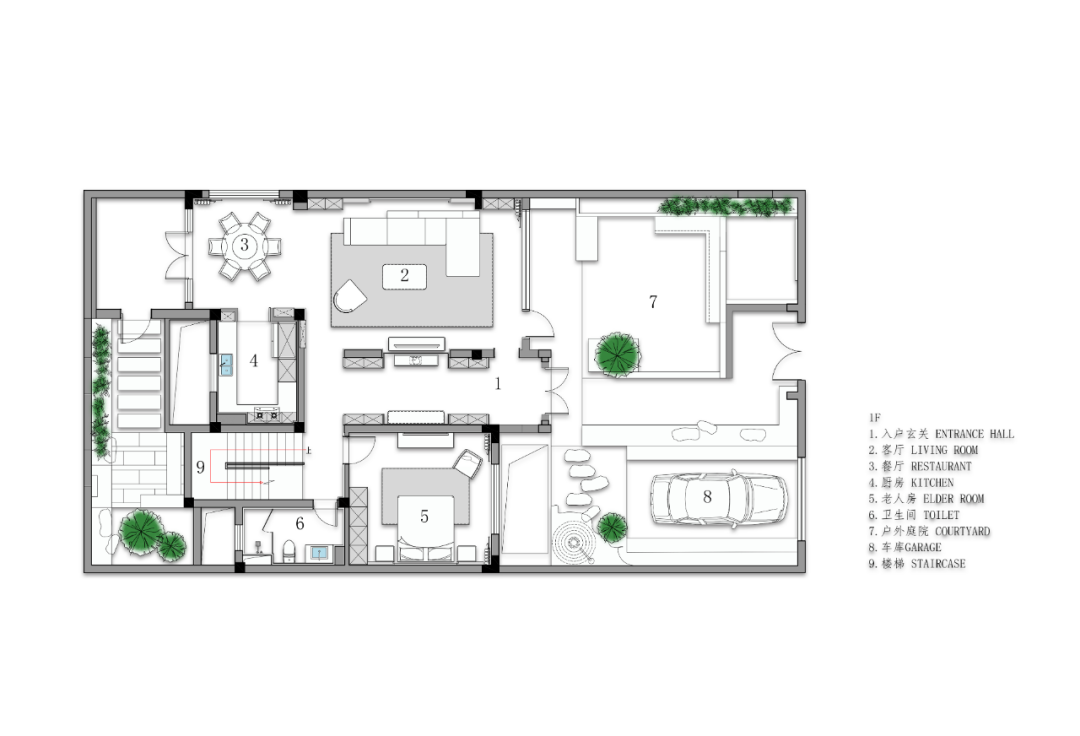
滑动查看平面图 P.30
INFO
-项目名称-
和园山景别墅
-设计机构-
牟恩室内设计
- 设计总监-
牟 冬
- 参与设计-
朱本宝 房帅 刘茹荟
- 项目面积-
380㎡
-项目地址-
山东 济南
-项目摄影-
隐像筑影
-文案编辑-
清歌传媒
DESIGNER
牟冬
牟恩设计创始人&设计总监
牟恩设计事务所(以下简称牟恩设计)是一家年轻且蓬勃发展的新锐设计公司,成立于 2017 年。做一家高端室内设计服务的专业设计公司,是其成立之初便定下的品牌调性。
作为一家以商业空间为核心的设计事务所,牟恩设计专注服务于业界领先的酒店集团和企业主,并发展延伸至别墅、私人豪宅等高端客群。目前业务涵盖精品酒店、会所、别墅、地产设计等项目,提供极具品质感的设计服务。
设计力是牟恩设计的竞争优势,“做精品设计”是牟恩设计的品牌基因,更是其设计实践中坚守与创新的根本。对空间、色彩、体验都有独到的见解,能够准确把脉项目特质,掌控好设计、商业和艺术之间的平衡,创新出既契合空间体验需求,同时兼顾审美品位的独特辨识度作品。
设计的高度还原落地,则是牟恩设计另一服务优势。我们以空间设计、软装设计、家具设计制造与整体饰品采购一体化的综合专业实力,保障项目落地的完美交付。
凭借着过硬的全案综合输出能力,牟恩设计不断收获客户口碑,以及更多的项目合作,并多次荣获行业奖项。
牟恩设计|艺术魔方 木趣世界
牟恩设计·谢帅办公空间丨依静稳之姿,度格调百态
牟恩设计·TYLAN SPA丨浸礼身意,崇念六信共鸣
牟恩设计·左右艺术展厅丨浮光跃金,美学迭新
客服
消息
收藏
下载
最近










































