查看完整案例

收藏

下载

翻译
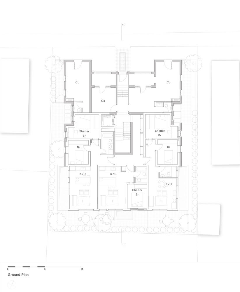
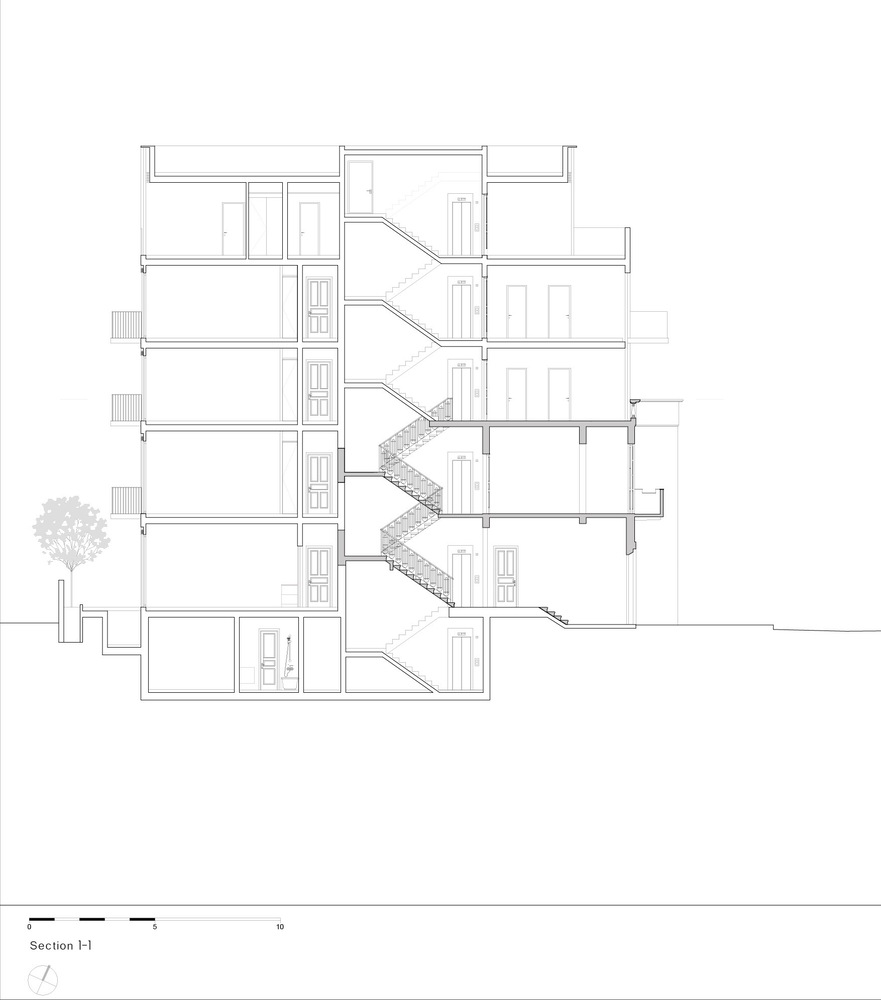
A 3-story addition above a 2-story eclectic-style listed building, designed by architect Yosef Minor in 1924. Europe in an oriental style, romantic oriental architecture. On the ground floor, there is a commercial façade in the basement, and on the upper floors, there are 24 small apartments.
We aimed for a design that would reflect a synthesis of cultures and tell the story of the various periods in the life of the city that had left their mark on the building. The new architecture contrasts with the existing context, maybe even "harms," and undermines the principles of the old building. Nevertheless, the whole creates an ensemble, a certain mix of the old and the new. The goal was to create a sharp contrast, to present an inherent project, but most importantly – to use this contrast to highlight the beauty of the old building, a building by a prominent architect that very few of his buildings still exist in the country.
The new design pays tribute to the traditional pitched arches of the old building but uses contemporary language, geometry, and materials while trying to maintain the original scale and ratio between open and closed. The unconventional treatment of the Corten facades and curtain walls gives the building a sense of weightlessness and elegance, an extraordinary appearance within the structure.
This urban infill contrasts with the existing building and its neighbors in height, roof type, color, and materials. At a close look, it has nothing to do with the surroundings. Yet from a distance, from the street perspective point of view, this impression blurs, and the new building becomes an integral part of the urban fabric that tells the history of Tel Aviv.
客服
消息
收藏
下载
最近




















