查看完整案例

收藏

下载
有限会社オンサイト計画設計事務所 studio on site,由四个合伙人长谷川浩己、铃木裕治、戸田知佐、三谷彻担纲,涉及的专业领域涵盖环境、建筑、美术、园艺等多方面。设计宗旨为创造出“用地 一 场所”可亲密接触的空间。
長谷川 浩己 / Hiroki Hasegawa(President)
“事实上,通常景观在我们着手设计之前已经存在,所以我们的工作显然不是创造,而是改造。因此景观设计通常都是‘与现存的事物相协调’的工作。重要的是你想通过设计营造一个怎样的环境,并且这个环境能不能让生活在其中的人以及其他生物更好地发展。人们见到的景观并不是独立的,个体的,而是包含了很多内容。它不仅仅是项目邻近用地,对面大楼的地平线,或是高速公路,甚至连空中的云朵都包含在景观中,如何把握好景观设计的比例感就是该如何设计的问题。”
三谷 徹 / Toru Mitani
将日本传统园林的创作元素,与西方现代设计手法相结合,以现代人的角度去诠释传统,追求新的意义,从艺术、技术、生态等方面赋予其新的内涵。开创独树一帜的城市与自然景观融合风格,以“为人们提供一个轻松的场所”为设计理念,创造平和、清淡、简洁的享受空间,让人们感受自然,享受自然。将现代日本景观设计发展到一个新的阶段。
studio on site
特辑|公共景观|广场 公园 下辑
广场/公园
釜石大町广场
釜石大町広場
釜石大町广场,设计团队打造的南广场作为连接道路和大型商业中心的开放空间,意图为繁忙的商业区创造一个不仅供人通行,而是可以让人们每天停留休憩,享受放松感的户外场所。设计干净简洁——像营造绿地泳池一般,由简单几何构造空间轮廓,中间布置平整草地,作为中央舞台和活动场地。
周边用两种颜色的木质夹板和混凝土板层层堆叠铺展,塑造空间丰富而细腻的高低层次,划分不同功能区域,以平面的抬升和高低层次差异,塑造廊架、台阶和桌椅,满足不同使用需求,分隔出多样化的休闲空间。
简单平整的围合空间,具有一定向心力,具备安全感和亲和力,让人体验到平静与心旷神怡的感受。各个区域不同的动静休憩、社交、活动空间,让人们在此聚集、互动,度过快乐时光。
项目名称:釜石大町広場(南广场)
竣工时间:2015-06
規模:2,300㎡
地址:釜石市大町一丁目地内
内容:基本設計、実施設計、設計監理
负责人:長谷川浩己、丹野麗子、中村智子
业主:釜石市
合作:株式会社建設技術研究所
構造:株式会社リズムデザイン=モヴ一級建築士事務所
照明设计:ぼんぼり光環境計画 株式会社
摄影:吉田誠
鹿田公园
籠田公園
戏水活动区,以活泼的弧线为基本轮廓,营造起伏的地形,丰富空间层次,增加探索乐趣,并以喷泉和游乐设施增加丰富的游乐体验。周边平台和廊架作为看护休憩场所。
项目名称:鹿田公园 籠田公園
竣工时间:2019-07
规模:6800㎡
地址:爱知县冈崎市鹿儿田町
内容:基本设计、实施设计、设计监督
业主:冈崎市
建築:h+de-sign/architect(エイチデザイン/アーキテクト)
構造設計:リズムデザイン
照明设计:ICE 都市環境照明研究所
标识设计:U M A / design farm
土木工程设备设计:葵コンサルタント
紫波町几何广场 紫波町オガール広場
一个旨在通过公私合作振兴整个城镇的综合项目,广场长 280 米,宽 27 米,被规划为区域的标志性广场。项目在设计会议上分享方案,并通过市民研讨会进行讨论。
广场作为将整个区域融为一体的大庭院,连接了各种设施和住宅区,同时补充了户外活动和空间体验。自由来去的路径交叉相通,将广场切割为几何块状,动感交织的动线让空间感受更丰富。
广阔的场地作为活动场所,以便孩子们可以四处奔跑,并在其间设置林下休憩空间。周边的廊架空间,成为居民的集会场所。
项目名称:紫波町オガール広場
竣工 2012-08
规模 3,663m2
地址:岩手县志和郡志和町
负责人 长谷川广树、丹野玲子、原幸弘
业主:紫波町
构造设计合作:リズム・デザイン
施工:佐々木建設
摄影:吉田誠、オガール紫波株式会社
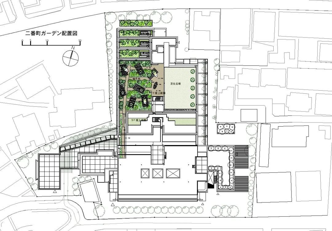
二番町花园屋顶庭院
二番町ガーデン屋上庭園
二番町花园是位于千代田区中心的办公楼和住宅的综合建筑。在这个计划中,办公室的概念因花园的存在而改变,通过在退层空中露台中创造不同户外场所,以扩大工作空间。
其中,7 楼天台空间最大,由东侧的条纹森林和西侧草坪广场花园组成。在这里,通过桌子、柜台、长凳和隔板等家具的营造,将空间体验融入森林,创建了各种大小的半私密区域,以适应各种办公需求的使用。
另一方面,草坪的天空蔓延使市中心的建筑物成为一个安静而平静的地方,提供了更多元的都市工作场景。
竣工时间:2004
规模:11,057.11㎡
地址:東京都千代田区
内容:基本設計、実施協力、監理協力
负责人:長谷川浩己、鈴木裕治、木田裕子
业主:第一生命保険、三菱地所、太陽生命保険
建築:三菱地所設計
照明:ライトスケープ
新山口站北广场平台 0 号线
新山口駅北口駅前広場「0 番線」 LD
项目意在体现“连接城镇和车站”的概念,在一场广场和二层平台以植物营造步行和休憩空间。树种采用混合种植,四季自然减少维护。未来增加或更换新树种的可能性正在被视为公民可参与活动之一。
项目名称:新山口駅北口駅前広場「0 番線」LD 新山口站北广场平台
竣工:2018-03
规模:4615.31m2
地址:山口县山口市
内容:基本設計、实施設計、设计监理
担当:戸田知佐、原行宏
业主:山口市
建築:プランツアソシエイツ
构造:T&A アソシエイツ
设备:総合設備計画
标识设计:KMD
照明设计:ライティングプランナーズアソシエイツ
丸之内 OAZO
丸の内 OAZO
丸之内是日本有名的商业街,同时也是三菱集团的大本营。在商业街区设置休憩广场及口袋公园,并以“细节设计”为商业体验增加更多趣味性。
项目名称:丸の内 OAZO
竣工:2004-08
規模:23,767m2(全体街区)
地址:東京都千代田区丸の内
内容:全体街区-景观总体规划;丸之内酒店/商业设施大楼-基本设计、实施设计协力、设计监理协力
负责人:長谷川浩己、戸田知佐、木田裕子(元所員)
业主:丸之内酒店/商业设施大楼-丸之内酒店、日本人寿保险公司、三菱地所
协同整块总体规划:三菱地所設計
建築:三菱地所設計
照明:ソラ・アソシエイツ
标识::メック・デザイン・インターナショナル
摄影:吉田誠
希尔顿广场 西广场
ヒルトンプラザ ウエスト前広場 LD
项目是大阪站前的高层商业建筑脚下的街角广场。这个广场是一个“多孔立体广场”,将两个建筑入口大厅和外部广场,以及地上广场和地下空间融为一体。设计插入了一个“绿色梯级”,以将碎片化的城市空间连接和整合到一个整合的叙事中。
“绿色梯级”是一种独特设计的水培系统,它实现了在大中庭空间中轻盈漂浮的效果,并在三维空间中渗透连结建筑物的内外,地面和地下的游客都会被植物的气息和柔和的光线所吸引。
广场上饭团状的采光井,将清新的城市光线引入地下空间。日落后,城市活动的光芒从这些不同的洞中渗入,形成了独特的景观。这个“多孔立体广场”在城市的高层建筑脚下创造了受日本人喜欢的褶皱空间。
竣工时间:2004-07
规模:约 1,600㎡(地上广场部分)
地址:大阪市北区梅田
内容:基本設計、実施設計、設計監理協力
负责人:三谷徹、戸田知佐、金光弘志(元所員)、丹野麗子
业主:第二吉本ビルディング、阪神電気鉄道、望月建設
建築・構造・設備:竹中工務店
照明:角舘政英
标识:廣村正彰
オブジェ:海老塚耕一
水培系统合作:朝日興産
摄影:吉田誠
客服
消息
收藏
下载
最近



































































































































