查看完整案例


收藏

下载
独立住宅, Madona, 拉脱维亚
建筑师:Totan Kuzembaev
面积:4230 m²
项目年份:2018
摄影师: Ilya Ivanov
厂家:AutoDesk, D.I.Piu s.r.l. Andretto Design, Focus, Juris Medis, RHEINZINK, Schotten & Hansen
City:Madona
Country:拉脱维亚
第三层次则是洗浴和健体中心,它的结构像一个玻璃杯,不同的体块被“放置”在里面。复杂的结构,材料的选择以及室内装饰都体现了设计元素的多样性。主屋的形状是由前建筑较小的占地区域和对大面积新房间的需求而设计的,悬臂支架结构在视觉上起到腾飞般的效果。设计中消除了对楼梯的需求,取而代之的是连接体量与体量之间的桥梁。
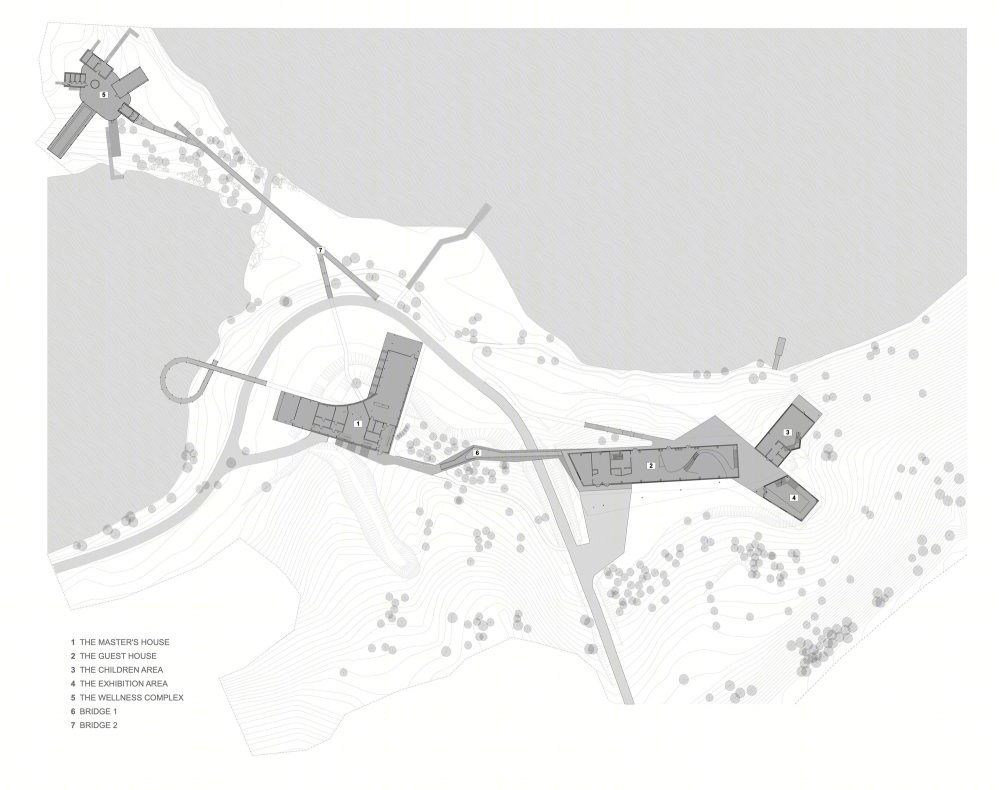
在做这个项目的室内设计时,我们非常重视艺术收藏的展示和室内设计的联系。庄园占地50公顷,拥有壮丽的湖泊和森林景观,处于生态保护区内。有野生动物出没的地理独特性,险峻的丘陵与两个湖泊,都赋予了项目不破坏自然的主旨。主屋、客屋和浴室由桥梁连接。这样一种连接的解决方案是为了消减两者在质感上的强烈差异带来的冲突感,以及避免对于直上直下的楼梯的使用。
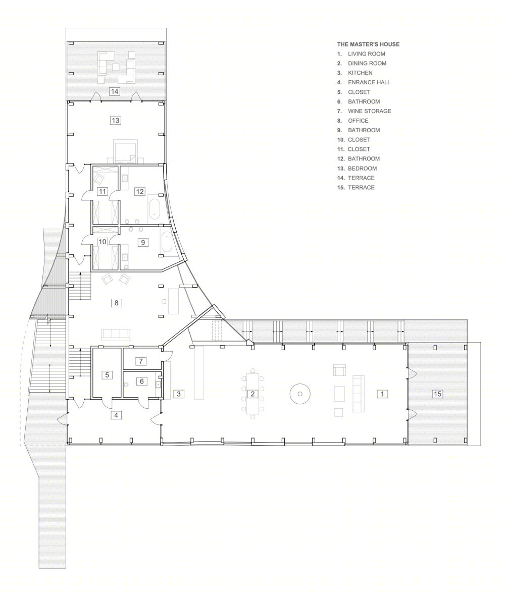
主人房是在原址上设计的,面积不大。根据当地法律,建筑面积必须与原屋相同,为了增加新建筑的使用面积,建筑师专门设计了一系列船型操作台,给整个结构赋予了雕塑般的表现力。尤其值得注意的是,不仅是内部的木饰面,悬臂杆的表面也有木饰面,这些木饰面就如同一件小家具,是由当地工匠用珠宝般的精密和专注制作而成。原以为室内设计将由拉脱维亚建筑师设计,但在设计过程中,客户决定委托Totan Kuzembayev bureau进行室内设计。
最大的屋子,从湖上看过去就像一个单独的伸展体块,空间被划分为客房,儿童房和展览画廊博物馆这三个部分。建筑主体随地势的差异而被架空。从房子不同侧面的“翼”包含有序的通道:从湖上的桥和从庭院的半封闭式走廊,会议室,然后流入通往主人房的通道。客用区包括六间卧室和一间带壁炉区的餐厅。儿童部分有两间卧室和一间客厅。一个单独的空间留给主人广泛的瓷器收藏。
从外部看,这些体块采用了不同的屋顶来表现其存在感:锌钛材料覆盖了展览和客卧部分,以及通往主人住宅的桥梁碎片;铜材质则运用在画廊屋顶和一个儿童房的“侧翼”。建筑师别具匠心地来处理室内流通与相融的解决方案。几乎所有的装饰技艺和家具都是专门为庄园设计的,包括展示主人收藏的艺术品的陈列柜。健体中心是住宅前部的第三个组成部分,主体设计像一个玻璃杯一般,包含游泳池、健身房、阳光露台、桑拿和入口空间。在最初的设计版本中,该综合体应该位于靠近水域的地方,但遗留的湖泊有一个水资源保护区域,因此建筑必须远离海岸线。由于同样的原因,桥支架的间距也从6米改为50米。
项目完工照片 | Finished Photos
设计师:Totan Kuzembaev
分类:独立住宅
语言:简体中文
阅读原文
客服
消息
收藏
下载
最近



































































