查看完整案例

收藏

下载
色彩空间
Slovo Bureau最新完工的项目,一个不拘泥于任何特定风格的室内装饰,使其色彩缤纷,同时又轻盈而平静。
空间布局
▽
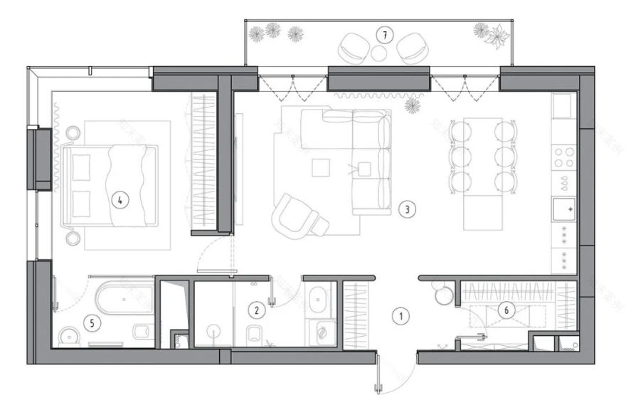
面积75
㎡
,一个入口大厅、一间更衣室、一间厨房客厅、一间客用浴室、一间卧室和一间浴室。由于业主不需要大量房间,所以朴素的公寓看起来很宽敞。
厨房客厅的设计基于材料和颜色的对比,金属元素赋予房间现代时尚的外观,而纺织品的颜色和纹理则营造出舒适的感觉。暖色调的Finex工程板增添了自然气息,而大理石纹理的瓷砖则增添了优雅感。
内饰颜色主要有白色、绿色、珊瑚色、黄色。绿色被用作卧室和客厅的统一颜色,也用来掩饰衣柜和平开门。最明亮的房间是浴室:主浴室是黄色,客用浴室是珊瑚色。其中,设计师使用了哑光瓷砖,并在墙壁底部插入了彩色嵌件。
客服
消息
收藏
下载
最近






















