查看完整案例


收藏

下载
△ 建筑外观
© Chris Goldstraw / Brookfield Properties
设计单位:Foster + Partners
项目地点:阿联酋迪拜
建成时间:2020 年
建筑面积:146,153 平方米
ICD 布鲁克菲尔德广场坐落于迪拜国际金融中心区(DIFC)核心地段,是一个办公和零售综合开发项目。该项目为混合用途,包括一座 53 层高的塔楼,设有世界一流的办公空间,一方面它在城市环境中拥有着优越的地理位置,另一方面其建成也为所在区域带来了积极的变化。
△ 建筑外观及环境
©Chris Goldstraw / Brookfield Properties
地处迪拜金融城 Gate Avenue 商业长廊,该大楼参与构成活跃的城市社区,为生活和工作创造了高品质的空间。
大楼北面是阿联酋塔和迪拜河,南面是哈利法塔和迪拜市中心区,景色无与伦比,与谢赫扎耶德路、迪拜地铁和周边地区也有着良好的连接。
△ 办公区域绝佳窗外景致 摄影:有方
设计最独特的点在于跨越五层楼的“夏日花园”,这是一个壮观非凡的公共空间,也是整个建筑综合体的社交核心。
“夏日花园”位于塔楼的北侧,白天大部分时间都在办公塔楼的遮蔽之下,形成了一个充满活力、全天开放的空间,可以举办各种活动,进而成为迪拜金融城社交场新的聚焦点。
△ 夏日花园
©Chris Goldstraw / Brookfield Properties
△ COP28 会议期间,夏日花园内各具特色的艺术装置 摄影:有方
△ 裙楼细节轴测示意
图
© Foster + Partners
设计在狭窄的场地上划开一条斜向路线,以一条人行道将阿尔萨达街和海滨长廊直接连接起来。这激活了场地并自然地形成了一条通往“夏日花园”的路径,也为办公大楼的几何形状提供了指导。这一操作既打破了街区的网格节奏,也打断了阿尔萨达街的曲线形态,由此宣示了新建筑的存在感,标示出通往 DIFC 的新入口。
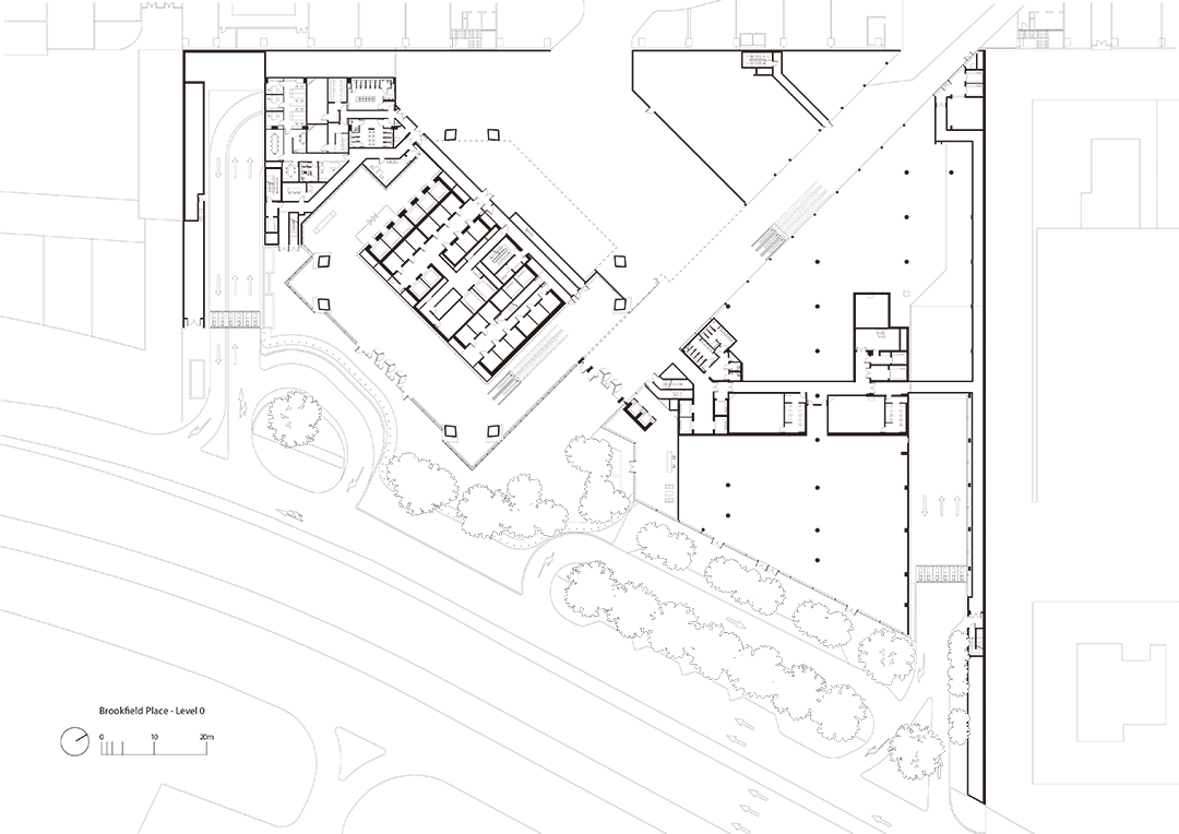
△ 地面层平面图
©Foster + Partners
△ 裙楼外观
©Chris Goldstraw / Brookfield Properties
办公塔楼的独特造型顺应了结构和环境条件。塔楼位于阿尔萨达街的视觉轴线上,四层高的“A”形框架使建筑看起来更加稳定,同时为建筑入口创造了一个显眼的标志。设计特意将社交场所集中在充满活力的地面层,而塔楼顶部四层通高的高耸空间,是这座城市最为卓越的办公场地之一。
△ 入口
上方的“A”形框架©Chris Goldstraw / Brookfield Properties
设计图纸 ▽
△ 地面层平面图
© Foster + Partners
上下滑动查看更多平面图
△
1 层平面图
©Foster + Partners
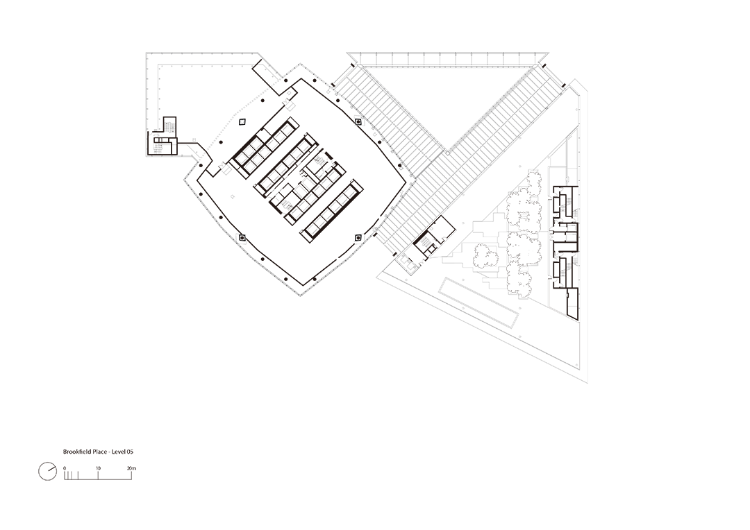
△5 层平面图©Foster + Partners
△
6 层平面图
©Foster + Partners
△
19 层平面图
©Foster + Partners
△
31 层平面图
©Foster + Partners
△
43 层平面图
©Foster + Partners
△
51 层平面图
©Foster + Partners
△
55 层平面图
©Foster + Partners
△ 左:北立面图;右:南立面图
©Foster + Partners
△ 剖面图©Foster + Partners
△ 细节图纸©Foster + Partners
△ 细节图纸©Foster + Partners
△ 细节图纸©Foster + Partners
△ 细节图纸
©Foster + Partners
完整项目信息
上下滑动浏览
ICD Brookfield Place
Dubai, United Arab Emirates
2014 – 2020
Client: Investment Corporation of Dubai (ICD), Brookfield
Architect: Foster + Partners
Foster + Partners Design Team:
Grant Brooker, Gerard Evenden, Ill Sam Park, Ian Whitby, John Blythe, Merino Ranallo, Sunphol Sorakul, Sandy Karagkouni, Ho Ling Cheung, Tim O’Rourke, Joliette Lange, Hisayo Kaneko, Daniele Sbaragilia, Jack Saunders, Hyun Jin Kim, Ana Barroso Martinez, Aquilino Fernandez Lopez, Ricardo Abreu, Monical Earl, Golshid Varasteh Kia, Barbara Palacios Orozco, Oriol Piquet, Vasiliki Mavrogianni
Other Foster + Partners Team:
Francis Aish, Khaled El-Ashry, Martin Glover, Sarah Villar-Furniss, Georgina Fairhurst, Emma Gibb, Nigel Young, Aaron Hargreaves
Collaborating Architect: Brewer Smith Brewer Group (BSBG)
Landscape Architect: Townshend (Townshend LA), Cracknell (Cracknell)
Main Contractor: Multiplex Ssangyong JV
Structural Engineer: Robert Bird Group
Mechanical Engineers: AECOM
Cost Consultant: AECOM
Other Consultants:
Fire and life safety engineer: Design Confidence
Facade engineer: Priedemann GmbH
VT consultant: The Vertical Transportation Studio
Acoustic engineer: Acoustic Logic
LEED consultant: AESG
Specialist lighting consultant: Spiers + Major
Access and maintenance: Access Advisors
Geotechnical engineer: Coffey
Security consultant: GDA/ VIDEF
Testfit: TP Bennett
Waste management/ logistics: Cini Little
Wind modelling: RWDI
Project management: AECOM
Cost management: AECOM
Lighting engineer: AECOM
People flow modelling: AECOM
Stone Consultant: Dr. Massimiliano Barsi
Sub-contractors / Suppliers Facade: Al Abbar
MEP: James L Williams (JLW)
Vertical Transport: Kone
Steel structure: Eversendai
Stone: Deemah Stone
Interior joinery: Depa Interiors
视觉
/ 饶安林
校对
/ 袁蓓祺
本文由 Foster + Partners
客服
消息
收藏
下载
最近
































