查看完整案例


收藏

下载
世界上并不缺少美,只是缺少发现美的眼睛。
项目地址 |嘉致峰
项目性质 | 私宅
项目面积 | 120㎡
设计机构 | 铭棠空间&黎铭设计
软装陈设 | 铭棠空间&有类软装
(女业主的墙面手绘)
本案是一处精装房,房子的主人是一对年轻夫妻,女主人孙佳爱生活爱分享。在她“佳居有家”的主题分享里,一茶一饭都是诗,一事一物总有美,对生活的热情满到溢出来。善于发现美的她对新家也有着超高的要求:高颜值,超强收纳,功能丰富......新家的改造为空间做减法,同时挖掘更多可能性,从实用性出发,以生活之美充实空间。
(女业主的分享记录)
在落地过程里,女主人和设计师一起选材,把控细节,并进行了全程记录,分享自己的经验。经过屋主与设计师的共同努力,这座简约、温馨、舒适的原木风新家1:1圆满落地了,是女主人心中当之无愧的dream house。
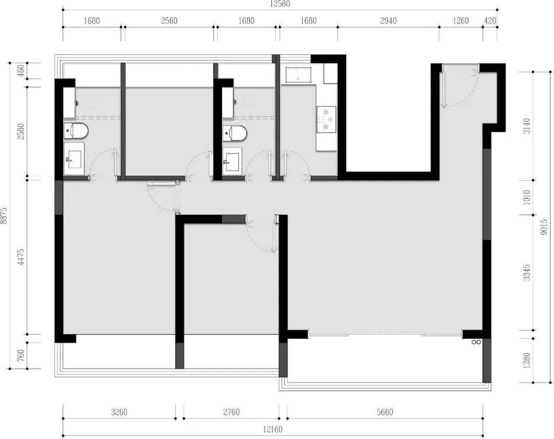
原始结构图
平面布置图
客厅
LIVINGROOM
不拘于泥形式、从生活习惯出发的空间才能称之为家。客厅摆脱了常规的形式,取消电视柜与茶几,保持开阔的空间感。原木铺满整个地面,搭配超大的地毯,赤脚在家里走动也是一种享受。
模块化的沙发拥有更高的自由度,可以随心组合,可坐可躺,满足不同场景的需求;随性的氛围也能拉近人与人之间的距离,让家变得更松弛。
阳台以原木包裹,清新自然;设计了隐藏式晾衣架,不阻隔视线,兼具美观;同时配置了烘干机,让阳台变身休闲空间,日常可以沐浴阳光小憩片刻。
餐厅
DININGROOM
餐厅大多时候是二人食的空间,但屋主也希望有一家围坐的热闹氛围。餐厅用圆桌来满足业主这一愿望,并在边柜设计凹槽,餐桌的一部分可以收纳在边柜里,既可以满足日常用餐,也不挤压空间,一举两得。
内嵌的冰箱与边柜完美融合,颜值满分。边柜做了加深处理,扩展容量,可以收纳零食、餐厨具;开放格可以用作水吧台,在这里冲一杯咖啡,仪式感十足。
卧室
BEDROOM
极简的卧室宁静而温馨。空间舍弃了传统床头柜,变得灵活富有空间感;衣柜位于床尾,且与墙面完全齐平,节约空间,视觉效果统一,清新干净。小巧的阅读灯足以满足照明需求。
在原木的包裹下,飘窗变成了一个更加感性的地方。坐下来感受到的是材质的细腻温润,沐浴着自然光,氛围也变得更舒缓自在。飘窗延伸出的部分作为床头柜使用,简约灵动。
书房
STUDYROOM
多变的功能让次卧空间得到充分利用,成为身体与精神的驿站。榻榻米兼具收纳、休闲、睡眠,让空间在书房与卧室之间随心切换,与书桌一体的巧妙设计保证视觉效果的统一,满足置物的需求。
厨房
KITCHEN
享受烹饪与美食,是热爱生活的开始。新家用功能齐全的厨房为喜欢烹饪的屋主打造了一个美好生活发生地。一字型的格局通透明朗,家电一应俱全,让烹饪变得更方便,采用内嵌式设计,美观且节省空间。
客服
消息
收藏
下载
最近































