查看完整案例

收藏

下载
开荒南野际,守拙归园田
——陶渊明
设计师|王一鑫
撰文采访|小宫
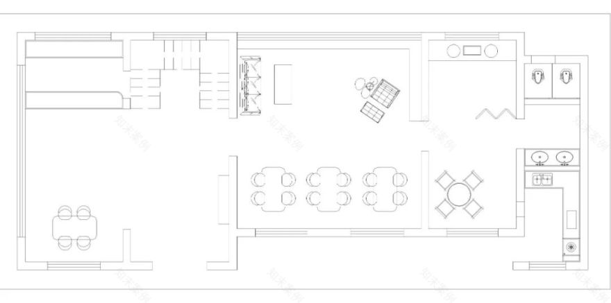
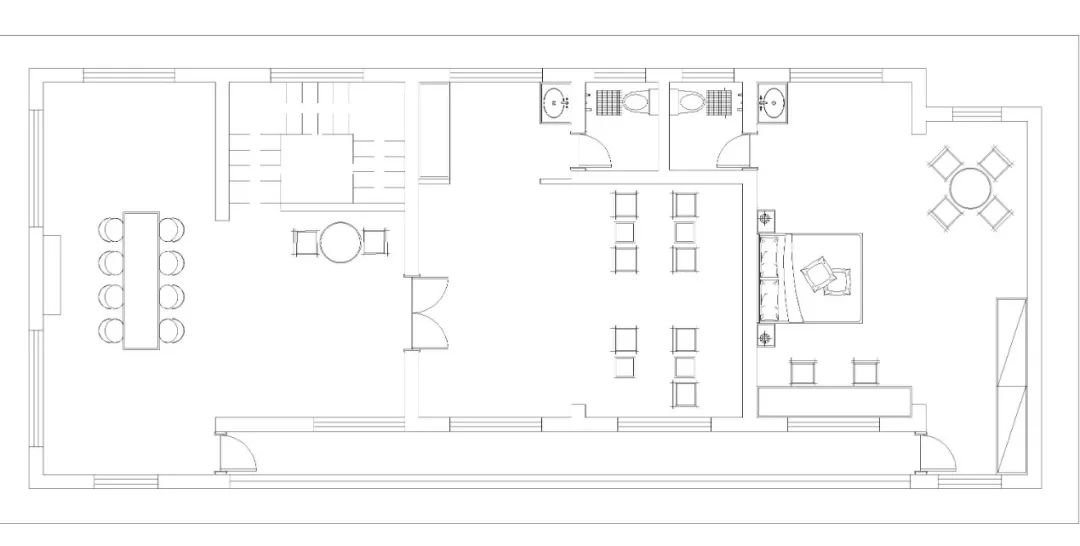
▼平面布局图 FLOOR PLAN
△ 一层平面布局图
△二层平面布局图
设计师说:这座建筑恰如一首佳作,将山峦之美尽收眼底。每一扇窗户都独具匠心,让人沉醉在自然的怀抱当中。
本案面积 200㎡,业主是一名“爱玩”的婚纱摄影师,咖啡厅坐落在翠环山上,远离城市喧闹,偶尔的鸟鸣与风穿过树林的声音,为这里静谧填上一丝诗意。建筑与地形融合,用自身的艺术感点缀着这片自然。业主希望这里不仅仅是一家营业的咖啡厅,更像是自己与朋友相聚的嗨聚地,是一个在玩的路上的补给驿站,提供的不仅是一杯咖啡,而是一种与自然相处的方式。
德曼咖啡馆
山不见我,我自见山
coffee shop
建筑原始为自建民房,空间布局传统细碎且采用传统的建筑形式。原始墙改梁保证建筑的稳固性的同时将空间“打开”,让建筑更好地与自然交融,视野的开阔让进入到这里的人们更能敞开双臂去与自然接轨。建筑与地形完美融合,以窗为画框,自然形成的沉积山岩成为室内的一幅画,惊叹自然的鬼斧神工,这里无可替代。
与自然共生,以设计艺术感为引创造随心所欲的场景。建筑的外立面采用纯白色,在这山林之中醒目且吸引每一位路过的人。院落以砂石铺装,从山崖到建筑之间的过渡。多面的采光窗从内向外眺望是青山、是自然,从外向内是诗意的归途。这座基于自然而建的咖啡馆是生活的回归也是向往的出发地。
德曼咖啡馆
山不在远方,山就在我眼前
coffee shop
- 内部复古的基调让人不自觉地放慢脚步,去遵循内心的选择,去品味,去感受这令人惬意的建筑。
- 一楼大厅是咖啡厅的主营业区,一划为三,由开放式操作间、客座以及靠窗的卡座组成,功能齐全。
- 每一处都有独到的风景,并不一味追求客座,预留出充足的空间将景色留给每一位来到这里的“旅行者”。
法式复古风的内饰、白色的内墙带来浓浓的怀旧氛围,木质的小桌、椅子承载那都市中无处安放的闲情雅致。空间采光暗含惊喜,与山体肌理相互呼应的橙色灯光绘出阴影与光斑,像是隐藏在云层中的梦幻城堡,将梦中景现实化,在鸟鸣与风声中去细品这原滋原味的咖啡,透过玻璃与山景对望,享受艺术与自然带来的无忧无虑的时光。透景的手法让空间视觉“由大到小”过渡自然,让中厅与前厅景观得以延续,空间的层次感由然而生,更能与采光配合,呈现出不一样的光影美感。
中厅背靠山峦,设计师王一鑫说这座建筑本就是依山而建,我也希望这里可以脱离城市当中的设计,可以有着自己的特色。以窗为框以景为画,完美的诠释自然风光美如画,山峦的肌理纹路成为室内的装饰,景与空间相融归情于自然。
“让人在空间带来的松弛感当中,慢下来享受这片刻闲暇。在喜欢的状态做回自己,寻回悄悄失踪的自由。城市的琐碎被忘在山涧的细风之中。”
德曼咖啡馆
创造生活留白
coffee shop
- 二层是一处基地,是家人之间的愉快郊游,是朋友之间寄情于自然的享受,也是业主的“家”。
功能布局与装饰相较于一层更显简单。
一张多人桌是为多人来客准备。
二层软装多数采用原木装饰,配以业主的收藏营造美轮美奂的古堡会客厅。
法式的精致细腻是空间中所着重体现的,让人重拾内心平静,让灵魂也能好好休息一番。
▲网红打卡图
鸟向檐上飞,云从窗里出。
逃离城市牢笼,寻找生活留白空间,感受山林之美,尽情呼吸。
ABOUT PROJECT
项目名称/Name |德曼咖啡馆
项目类型/Type | 商业空间
项目位置/Location |中国·西安
项目面积/Area | 200㎡
完工时间/Time |2023.02
主创设计师/Design |王一鑫
采访撰文/Writing |小宫
项目摄影/Photo |宋栋
ABOUT DESIGNER
- 主案设计师
l 王一鑫
- 壹宅·理想原创空间设计 & 主案设计师
客服
消息
收藏
下载
最近











































