查看完整案例

收藏

下载
感谢HPP建筑事务所授权日杰瑞欣发布!
© HPP
深圳宝安空港新城综合应急中心
基于深圳“高层高密度城市”背景与特色,以
“整合、开放、共享”为设计概念,旨在打造一个符合“多部门高效整合,面向城市积极开放,功能集约共享”的新型应急指挥建筑使用平台。项目
将为深圳国际会展中心及其周边的空港新城提供综合应急需求保障。
2019年,HPP携手
深圳大学建筑设计研究院
在该项目的国际竞赛中脱颖而出。
概念与功能 © HPP
总平面 © HPP
项目位于深圳市宝安区北部的沙福路和展城路交叉口,场地面积大约7,624平方米。在如此高度集约的场地上,如何设计一个高效运作的应急中心,使其既包含众多复杂的功能与先进的设施,同时满足其指定的流线并完美地共存,是本项目的主要挑战之一。为避免流线交叉和安全隐患,设计将对外和对内的功能之间做了明确区分。裙楼布置消防、医疗急救和社康中心等对车辆流线直接进出有重点需求的部门,而塔楼则容纳公安、交警和指挥中心等功能。
功能分布 © HPP
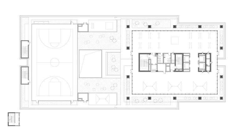
首层人行及车行出入口 © HPP
F1大堂平面 © HPP
© HPP
作为整个区域的重要节点建筑,应急中心塔楼高度达到了100米以展现其城市地标属性。理念是贯穿设计始终的重要亮点,在主要功能之间引入共享会议、训练和食堂功能的公共楼层,这些楼层也相应在建筑体量上产生水平空隙,创造户外绿色和休闲空间,可以一览周边城市环境的美景。裙楼和塔楼皆设计了屋顶花园:位于裙楼屋顶整合了篮球和军体场等体育设施,而塔楼的屋顶上则设置了观景和无人机平台。
空间生成 © HPP
共享功能 © HPP
F5为大楼主要的公共楼层,不同的部门在此汇集:活动、训练、体育比赛或是办公之余的小憩,创造了一片舒适宜人、生机盎然的绿意花园。
F5 共享训练层平面 © HPP
F5 屋顶花园 © HPP
指挥中心位于塔楼顶部,南北朝向的长面宽塔楼为指挥中心提供了可直接观察南侧国际会展中心的全景视野。
© HPP
建筑内部的
高效流线通过严格的分区机制得以实现。除了公共与非公共区域的划分,还有另外三个主要的功能分区:职能部门、消防部门以及社康部门。这些分区拥有各自独立的垂直交通系统,与此同时,一部独立的VIP快速响应电梯将塔楼顶部的指挥中心与一层入口直接相连,以应对紧急突发状况。
垂直交通© HPP主立面设计简洁、明亮、规整,体现了政府职能部门的稳重形象。建筑形体上的垂直和水平内退强调了不同部门的主要入口,并增加带有彩色百叶的大型悬挑框体,使建筑具有动态识别性,为宝安空港新城创造了一座雕塑般的建筑作品。此外,彩色百叶还能承担城市环境中的媒体展示作用,在平日和突发情况下,向区域民众传递重要信息。
立面生成 © HPP
© HPP
白天的立面效果 © HPP
立面上的媒体屏 © HPP
立面设计也充分考虑建筑节能,从深圳地区的气候特点出发,按照绿色建筑三星级标准,在立面外窗单元集成了自然通风循环系统装置,每个窗口均设有内开启扇,开启扇外侧设置斜向的穿孔铝板,保持了立面的统一性,增加了与功能相适应的灵活性,同时也减少了阳光直射进建筑室内所带来的能耗。
外立面幕墙细部 © HPP
通风系统 © HPP本项目不止对深圳,甚至对整个国内都是一个高度创新的试点项目,高效整合了消防、公安、交警、医疗急救、社康中心和指挥中心,并展现了不同应急部门间复杂功能要求的成功结合。申明:以上项目图片为现阶段效果图,最终效果呈现以实景照片为准。
项目信息项目名称:深圳空港新城综合应急中心项目地点:深圳建设单位:深圳市宝安区建筑工务署项目管理:深圳市宝安区建筑工务署(施工图阶段) + 深圳市宝安区湾区发展事务中心 (方案及扩初阶段)设计单位:HPP服务内容:建筑设计 + 室内设计 + 景观设计 + 总控合伙人:Jens Kump、余炜项目负责:Job Peter Upmeijer (建筑)、蒋欣伶(室内)、康宜(景观)建筑设计:程祎楠、冯子鹏、丁新宇、范佳运、崔皓、万龙雨、李然、吕子铖、林瑞翔、胡枫、谢鹤男、Florian Zimmer、翁子健、于子涵、文雅、张雨桐室内设计:肖潇、陈峣蔚、陈万里、姜焱、徐馨莲、牛园园、张颖婷景观设计:徐亚苹、王玥、倪静静合作单位:深圳大学建筑设计研究院总建筑面积
64,320 m高度100m
建成时间
日杰瑞欣城市规划,不止于城市,不只是规划。
客服
消息
收藏
下载
最近





















