查看完整案例

收藏

下载

翻译
Nelissen Bricks comprises a stone factory with adjacent quarry in operation since 1921. The company transformed from a small-scale family business into a modern international player. The rapid growth and the ambition to come forward as the absolute pioneer in the brick industry asked for a high-performance building in which all products can be displayed professionally. The ambitious trajectory is translated in an accumulation of 3 volumes into a complicated and innovative construction.
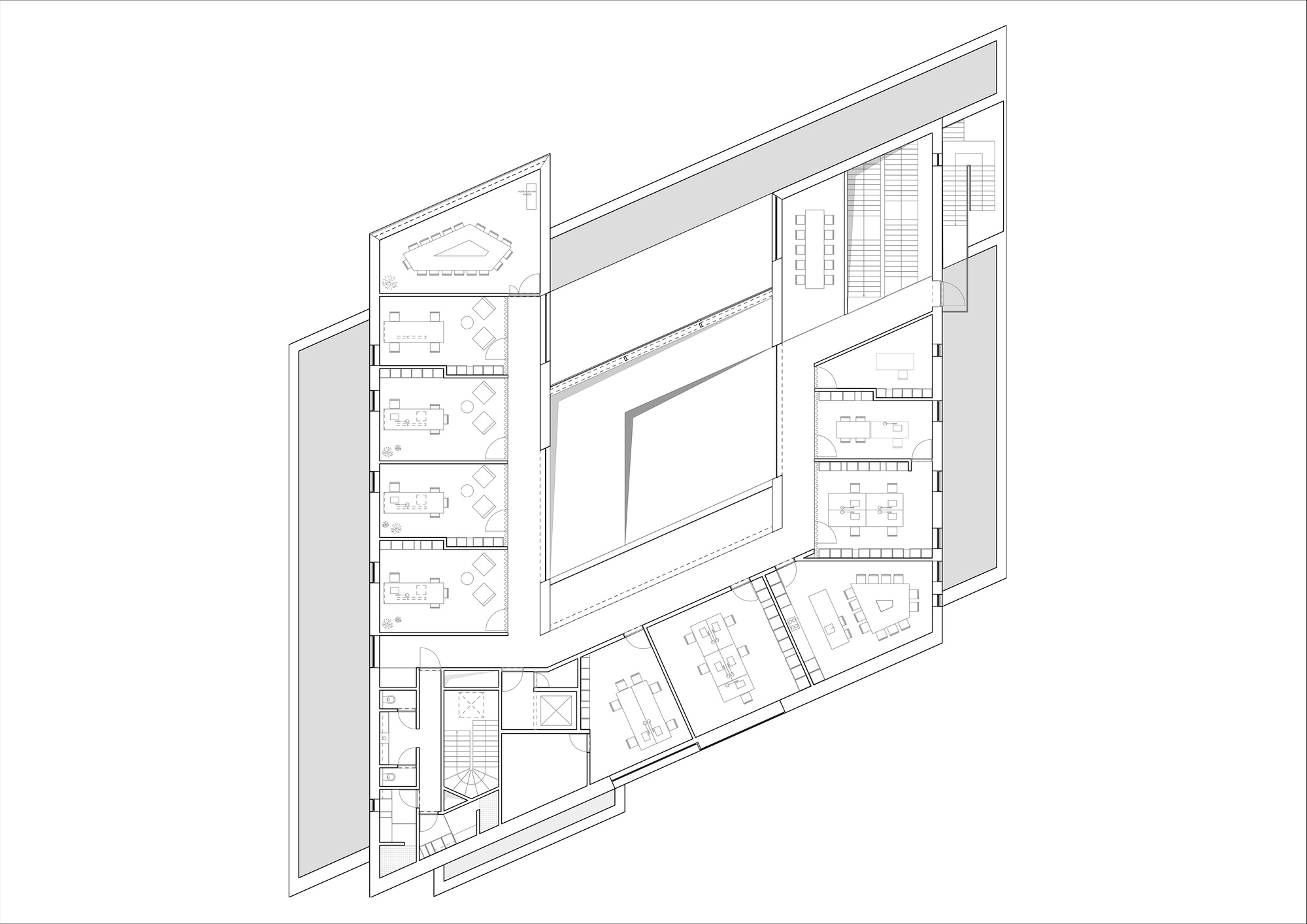
Concept The ground floor has a U-shape that opens towards the street and thus symbolizes transparency for the visitors. Logically, the reception and several administrative posts find their place here. The higher level has the shape of a parallelogram with an open space in the middle. This level of the showroom makes it possible to organize a tour around the open space. The top floor will once again house administrative services in a U-shape that opens towards the industrial site. By positioning these three discs in a staggered way on top of each other, the interior and exterior space seem to merge.
The complex is the new business card of the company and the international image is also translated in the interior concept. In a museum-like tour, the visitor discovers the brick as an art object, and this both in the real and the virtual reality.
Experience The fourth generation of this family company wants experience to have a central position in the new building. Experience for visitors, but certainly also for its administrative employees. In the preliminary design process, a program study based on all services and individual employees was developed. Existing workplaces were evolved and in the workshops diverse scenarios were outlined. This resulted, in addition to an architectural accumulation, also in a programmatic accumulation of various functions.
Thus, the internal services department on the ground floor receives a central place in the form of an open landscape office. Besides the open character there is also sufficient privacy and this in a homey atmosphere. High-quality materials help to create an office as the eye-catcher of which the family company is very proud. The family atmosphere also immediately catches the eye by means of the video wall in the waiting area. Here all employees are presented to the visitor. The various visitor flows are separated on the ground floor. There is, for instance, a separate entrance for drivers who are welcomed cordially at the reception with coffee corner.
The showroom on the first floor is based on a museum-like route, but in addition to this, various options for consultation are created based on the type of conversation one wishes to have. Consultation boxes are alternated with a workshop area and also a spectacular bar that forms an important meeting place for Nelissen Bricks. Besides the tactile aspect of bricks, the experience is also stimulated by the digital customer experience journey. A special app was developed to go through the showroom and indicate favorite stones. In addition to the app there are also several touch screens, which makes that at the end of a visit to the Experience Room (Brickxperience), the visitor receives an overview of the personal stone selection. On a 180° screen this selection can be implemented in an architectural model in order to visualize the whole and to once again generate amazement.
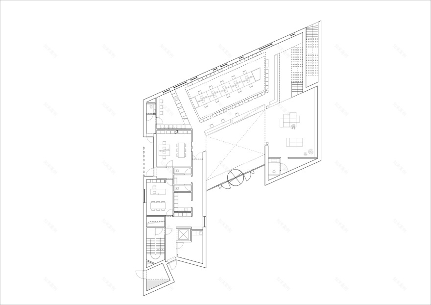
The top floor houses the majority of the offices and this in an open atmosphere with glass walls. The transparency plays an important role, both in the architecture and in the work environment. The various offices are designed cozily with open niches for personal items or decoration. Furthermore, there are two dressing rooms on this floor.
客服
消息
收藏
下载
最近


























