查看完整案例

收藏

下载
家是在广阔天地之间,独属于我们的一片世界,在这极致安全的地方,心找到了归属感。
从业年限:13 年
擅长风格:轻奢、法式、现代等
设计理念:用心观察生活,让设计与生活互动。
代表作品:中建大公馆、中交越秀知园、中建星光城、花山印象等。
DESIGN
X
正荣紫阙台
项目地址:正荣紫阙台
面积:150㎡
户型:四室两厅
风格:现代轻奢
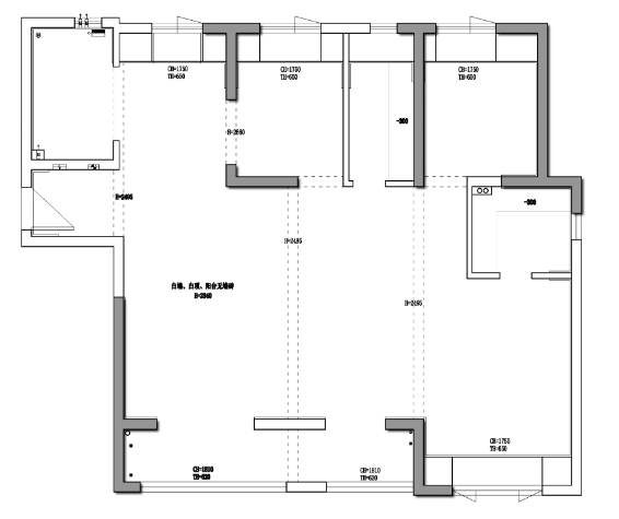
▲原始平面图
设计思路分析
1.餐边柜做厨房一侧,厨房做梭门隐藏,让空间变大;
2.餐厨一体设计,增加橱柜操作台面,半敞开式厨房;
3.主卧室改变原始门洞,床尾做联排衣柜。
聚拢温暖内核,在设计中洞见生活本质。本公寓为 150㎡的现代轻奢设计,主要通过大理石和金属元素来营造空间的氛围感,整体看上去大气有格调,设计师通过娴熟的设计手法打造出了一个宜居的空间。
01Living Room/客厅
在客厅的设计中大胆的采用开放式,让空间看上去更加通透,利用大理石来烘托空间的光亮感,让客厅有了明朗的感觉。
空间中心的焦点是一张经典灰白钢琴键沙发,简洁落地灯细节呼应了轻奢韵味。沙发背后是客厅办公区域,整面收纳墙既满足了屋主日常办公资料与书籍的收纳需求,又可作为手工艺品陈列柜,增加客厅情调。
客厅的设计主要采用了低饱和度的色调,其开放式的布局让人的视野显得更为开阔。设计线条既简洁又整洁,与原木材质的家具完美结合,使其在视觉上显得更为宽敞和明亮。
02 Dining Room/餐厅
厨房和餐厅被巧妙地设计在同一空间内,采用了开放式布局,这使得整个空间得到了最大化的利用,而金属质感餐桌与墙面形成了完美的呼应。
同时,厨房设计中依然沿袭客厅的设计采用大理石元素,通过金属元素与大理石元素的结合来表现空间的轻奢,金属的岛台加上大理石台面让空间极具氛围感,让空间看上去更有层次。
03Bedroom
/卧室
主卧功能一应俱全,集衣帽间和卫生间为一体。采用无主灯设计,通过筒灯和壁灯巧妙搭配,满足空间照明需求,营造出温馨、舒适的氛围。实木地板与墙面的实木墙咔相映生辉,增添一抹自然韵味。
在这样一个空间中,浪漫与高级的元素无处不在。墙面上的艺术岩板和装饰品彰显了对细节的独到打磨,为空间增添了一丝浪漫的气息。
浏览更多参赛精品案例:
01.《风雅·墨香》——大气稳重与舒适雅致并存
02.《暮白》——功能+颜值拉满的舒适温馨家
03.《浮生若梦·雅》——纯、雅美学的艺术空间
04.《暖阳》——简洁与温馨的轻奢美宅
05.《新韵至雅》——极简而不失质感的空间美学
06.《光影·流年》——精致且高级的私宅空间
07.《沉淀·拾光》——走进摩卡棕的深色世界
08.《简约·纯粹》——内敛而优雅的艺术之家
09.《木语吟风》——大道至简的雅致之家
10.《予你》——甜糯奶油の家等您签收
11.《东方雅韵》——领略东方美学的空间魅力
12.99㎡现代简约风私宅,用心诠释家的温度
13.143㎡现代极简私宅,一个干净清爽的家
14.116㎡超治愈的法式奶油风,一眼沦陷!
15.美的云筑·户型解析|102㎡现代简约风
16.200㎡现代轻奢风|打造暖色系舒适惬意高级住宅
17.137㎡现代轻奢风,尽显极致优雅风范
18.138㎡原木极简风|克制美学营造的高级感
19.220㎡现代轻奢风设计,精致生活的美学剪影
20.165㎡现代原木风,呈现不一样的高级
21.现代+欧式极致碰撞,享受更多惬意和浪漫
22.155㎡现代轻奢·恰到好处的精致
23.103㎡现代轻奢风 精致与舒适并存
24.《大雅 X 亦境》——简约轻奢,意料之外的高级感
25.《温度》——优雅和轻奢共存,质感满分~
26.《温润》——自带温馨滤镜的家,松弛感拿捏~
27.《意趣》——不被定义の轻复古生活家
28.《简奢》——从心而悦,感受雅奢宁静之美
29.美的云筑|116㎡现代极简,邂逅极简美学空间
30.外滩首府|210㎡极简黑白风,给生活做减法
31.当代国际花园|220㎡极简风私宅,质感的代名词
32.晋合·金桥世家|150㎡意式简约风,轻于形,奢于质~
33.宏泰阅江府|美拉德 VS 中古风,秋日最 IN 氛围感
34.驿山高尔夫 | 400㎡黑灰简奢,感受松弛的居家态度
35.华侨城红坊|99㎡跳出风格限制,通透自由!
36.美的云筑|116㎡极简家,寻一处静谧,得一份安然~
37.中建大公馆|128㎡奶油风,纯色治愈力!
38.实景|70㎡奶油风,营造冬日的小浪漫~
客服
消息
收藏
下载
最近










