查看完整案例


收藏

下载
"艺术的伟大意义,基本上在于它能显示人的真正感情、内心生活的奥秘和热情的世界。"——罗曼·罗兰
Ⅰ 与屋主的缘分
2021 年 5 月 11 日这篇文章发布后,我们收获了很多朋友的支持和信任。
@香榭山庄屋主的评论
@国瑞熙墅屋主的评论
每套作品,每次设计,都是把我们和各个屋主联系起来的纽带;每次打动,每种懂得,都让我们双方建立了足够的信任和默契。
Ⅱ 关于房子
About the house
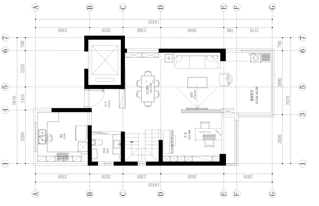
本项目是一套户型俱佳、得房率超高的复式。第一次去这个房子时,它的建筑面积是 136㎡,但是最终我们设计完平面发现面积高达 176㎡左右,多出来 40㎡左右!真的很惊喜,得房率将近 130%。结构优化完、土建做完,就像变了魔术一样,多出了很多空间。Ⅲ关于平面 About Planes
设计完成图(左右滑动查看)
一楼是客厅、餐厅、厨房、公卫,还有一个超大书房,女主是初中主任老师,男主是资深 IT 精英。
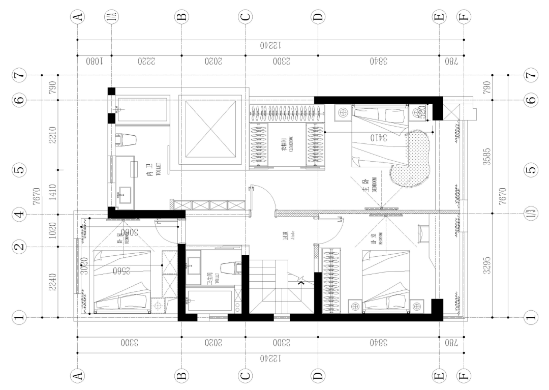
二楼是他们休闲居住的区域,设计成了一个大套房,独立的衣帽间满足了男主女主的储物需求,配备了起居茶水区和超大内卫,还有一个超大的办公休闲游戏书桌。
Ⅳ关于设计
About Design
光,穿透格栅进入门厅,给予生活一种美好的韵律感。鞋柜方便日常包、钥匙等放置。
INTERWORKING FIELD
互通的阔境
在互通的阔境里,每一处转折都自带舒缓的节奏,展现了新的视角。黑配白的视觉效果,倾力展露着天然的纹理,完成了空间质感的“填空题”,将呼吸感与流动感镌刻进生活的细节。
思索休闲阳台的可能性,通过贴合架构与嵌入式收纳的形式,追求毗邻场域的互通感,扩充了展陈功能与洗衣区域,增强了空间的利用率。
DAILY ORDER
日常之序
身为教师的女主人常在此批改作业和准备教案,有时也为孩子亲自辅导,半高的电视背景墙为书房遮蔽了喧闹,却也留存了一丝沟通的乐趣,让美好陪伴与成长的声音回荡于整个空间。
空间的交流
当转身进入餐厅,酒柜的光感散发出丝丝温暖,未来它将承载更多的欢乐和收藏,与人产生静默的情感交流。可以根据心情替换的插花,与客厅点缀的艺术画气质相映,萦绕出诗意而浪漫的氛围。
厨房配备蒸烤一体、洗碗机、双门冰箱等,同时配备增压泵、净水、垃圾处理器等,让生活更好的提升品质。厨房干净整洁,空间宽敞,可以更好的一展厨艺。
SENSUAL BEAUTY
感性之美
楼梯空间,凭借窗户原有的形状与序列体现贯通上下的气势,阶梯延续大理石的高级感,让优雅气息自由旋舞。设置平整的玻璃扶手,主张“视觉隐身”,悬吊线型灯缔造了“近看是太阳,远看是明星”的观感意趣。
一目了然的衣帽间结构给人一种被包裹的感觉,慢慢带人沉浸在穿搭的喜悦中,用欣赏的眼光看待自己。梳妆区的凹凸节奏,对应左镜右窗的布置顺序,规避了错乱感,造就了新的风景。
LOOSE CRUISE
松弛的游弋
主卧在固定飘窗的前方设计了超大桌面,足以让女主人和男主人在晚上共同阅读或办公。剩余空间布置了一张双人床,颜色做了一个跳跃,给平静的空间带了一份独有的活力,诠释了“回归简单,亲近本真”的生活态度。
内卫,首先明确干湿区域的前后关系,运用黑色线框中和透明质感,提升了通透性。高颜值花洒,是女主心仪的汉斯格雅镜雨花洒,颜值与功能兼备,为淋浴时光注入松弛体验,洁白光滑的饰面将自然天光汇聚,弥散着清爽惬意的氛围。
小朋友房间做了他喜欢的海盗系列,为他设计了一张学习书桌,拓展卧室的功能性。寻找一种柔软载体,成为安稳入梦的钥匙,细腻布艺搭配原木质感,以心理暗示与真实体感造就了彻夜好眠。
双色叠搭的卫生间,经典而神秘,增添宽幅镜面,褪却了狭窄的空间感,交织多方的情态,令身心自然地慢下来。
Ⅴ业主评价
美好再次落地啦,感恩遇见,期待更多热爱生活的朋友们一路前行。
卡萨布兰卡定制设计使命:打造赏心悦目的个性化艺术空间。
项目名称:国瑞山景复式
项目面积:176㎡
设计机构:卡萨布兰卡定制设计 Casablanca Bespoke Design
主创设计:王玲 Merlin Wang
项目策划:陆嘉明 Lucas
文案策划:修合文化
项目摄影:DC 空间摄影 DC Photo
王玲卡萨布兰卡定制设计
客服
消息
收藏
下载
最近




























