查看完整案例

收藏

下载

翻译
The Project, was a request to build two villas, one for the family’s grandparents, the other for their child and grandchild, so they could spend time together and get away with Tehran’s uproar. Due to project location which is in
, that had a high density and compactness attributable to its proximity to Tehran, and the subdivision of many plots into smaller sections, the client purchased two plots of land, each measuring 650 square meter, close enough to each other in order to construct both villas. Considering the density of the area and presence of numerous constructions in the project vicinity, we came to the conclusion of merging the two villas, supposing a large area to open space and greenery. This would not only create openness in the structure but also enhance the quality of life by providing green space adjacent to the residential area. In general, the project's volume is defined by two overlapping cubes.
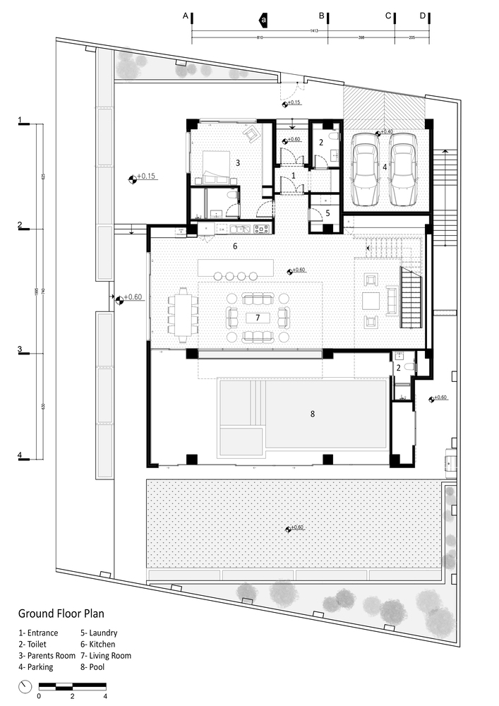
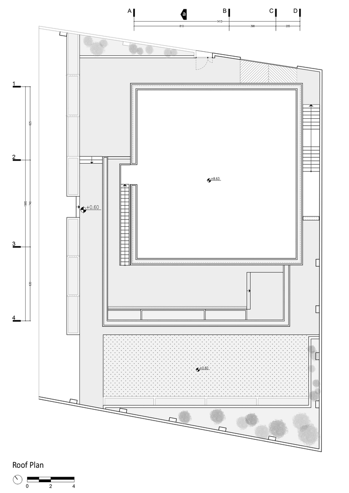
Achieving external simplicity, and internal excitement is one of the main goals of the volumetric concept. The overlap is organized in a way that creates a spacious terrace on the first floor, and a pool enclosure underneath the terrace. The main core of the project space is organized at the intersection of the cubes, due to the density of this area and the fine-grained construction around the project, there is no significant privacy in the vicinity. Considering the repeated emphasis of the stakeholders on preserving privacy, various options were examined to study the spatial configuration and organization, especially regarding the pool. It was determined that the desired privacy for the stakeholders would not be achieved in the pool enclosure. Therefore, the spatial plan was revised, and the pool was removed from the site plan, and relocated inside the villa, allowing for year-round use and ensuring privacy. The pool became an integral part of the interior space of the project.
Achieving external simplicity, and internal excitement is one of the main goals of the volumetric concept. The overlap is organized in a way that creates a spacious terrace on the first floor, and a pool enclosure underneath the terrace. The main core of the project space is organized at the intersection of the cubes, due to the density of this area and the fine-grained construction around the project, there is no significant privacy in the vicinity. Considering the repeated emphasis of the stakeholders on preserving privacy, various options were examined to study the spatial configuration and organization, especially regarding the pool. It was determined that the desired privacy for the stakeholders would not be achieved in the pool enclosure. Therefore, the spatial plan was revised, and the pool was removed from the site plan, and relocated inside the villa, allowing for year-round use and ensuring privacy. The pool became an integral part of the interior space of the project.
客服
消息
收藏
下载
最近











































