查看完整案例

收藏

下载

翻译
Ratchaphruek Hospital's journey began in 1994 as a registered 50-bed facility, earning the trust of the local community for its quality service. As demand grew, the hospital's executive board embarked on an ambitious project to construct the new Ratchaphruek Hospital, located just one kilometer away from the original site, spanning approximately 4 acres. This expansion led to the new 220-bed hospital that prioritizes creating an environment that calms and heals all its patients and users.
The hospital design was inspired by the question, "What is the hospital of your dreams?" People from diverse backgrounds and professions shared a common vision- a hospital should not be chaotic but rather resemble a comforting home. It should offer green spaces, communal areas for activities, inspiring symbols, clear zoning, and pathways. The goal was to transform a potentially fearful environment into a familiar home, a "HOuSePITAL" embracing natural therapy and friendship therapy; according to the saying by Somdet Phra Buddhaghosacariya P.A. Payutto, “Though the body is unwell, the heart still stays strong.” Moreover, the design aimed to reflect the traditional context of vernacular architectural wisdom within the northeastern part of Thailand to create a home-like feeling for all
people. Creating a sense of awareness of their original roots and shining light on their architectural wisdom.
Managing the scale of the project was a primary challenge. To soften the presence of 40,000 square meters of space spread over 14 floors to convey a house-like atmosphere, the design incorporates a two-story structure around a central court, which immediately conveys a welcoming, house-like atmosphere. The welcoming court acts as a navigation pillar for all visitors that provide them with information for clear and coherent circulation around the hospital to reduce confusion and stress for patients and visitors. Additionally, to address these issues, the architects used northeastern local wisdom, The design incorporated northeastern architectural elements, such as gable roofs, terraces, and long eaves. They ensured spacious waiting areas, taking into consideration the average big families and relatives in northeaster culture. The simple internal circulation lessens the confusion and stress created by hospitals and creates a sense of familiarity.
Construction and materials embraced northeastern culture with gable roofs, sun-like gables, and wood finishings. The design introduced a stacked roof style at the top and podium levels to reduce the perceived massiveness of the building. Long overhanging eaves were employed to shield the structure from intense sunlight and heavy rainfall to address the challenges posed by Thailand's rapidly changing climate. The hospital incorporates an ancient "Chaleo" pattern into its design, derived from the ancient ritual usually embroidered on medical pots serving as a symbolic shield against misfortune, and is used on the façade on the third and twelfth floors.
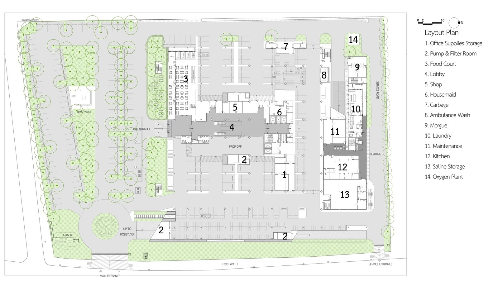
The hospital's infrastructure and layout ensured ease of access and circulation through two primary entrances. The main entrance, located on the second floor, leads directly to the Welcome Court, enveloped by a natural green area. A secondary entrance on the first floor provides access to the parking lot, which also connects to the Welcome Court on the second floor. A critical feature of the hospital's design is the central court on the second floor, regarded as the heart of the project. This central court determines the direction of access to outpatient departments, such as the medical clinic, pediatric clinic, eye and E.N.T. clinic, obstetrics and gynecologist clinic, finance, and dispensing with distinct separation for all departments. Additionally, it offers seamless access to the elevator hall, ensuring ease of movement throughout the facility.
The hospital's spatial configuration aimed to nurture the psychological well-being of patients and visitors. The design embraced natural therapy principles, incorporating green spaces, water features, and natural ventilation. The center court, the heart of the project, serves as the outpatient zone and reception area on the second floor. The hospital also designed a rooftop garden on the fifth floor to provide in-patients with a soothing and natural environment. To ensure the circulation areas offer a refreshing and pleasant experience, air vents have been thoughtfully placed at every floor level for ventilation. Additionally, various floors feature overflowing ponds and green spaces, promoting a sense of calm and connectedness with nature and providing community space for staff, patients, and their families.
客服
消息
收藏
下载
最近



































