查看完整案例

收藏

下载

翻译
There is a recent rediscovery of the potential of small buildings in São Paulo. Their proximity to the street and the tree canopy enhances and intensifies the relationship between residents and the city so that those who inhabit them feel more at home than in an apartment.
How can a project take advantage of this condition, that is, turn an apartment into a home?
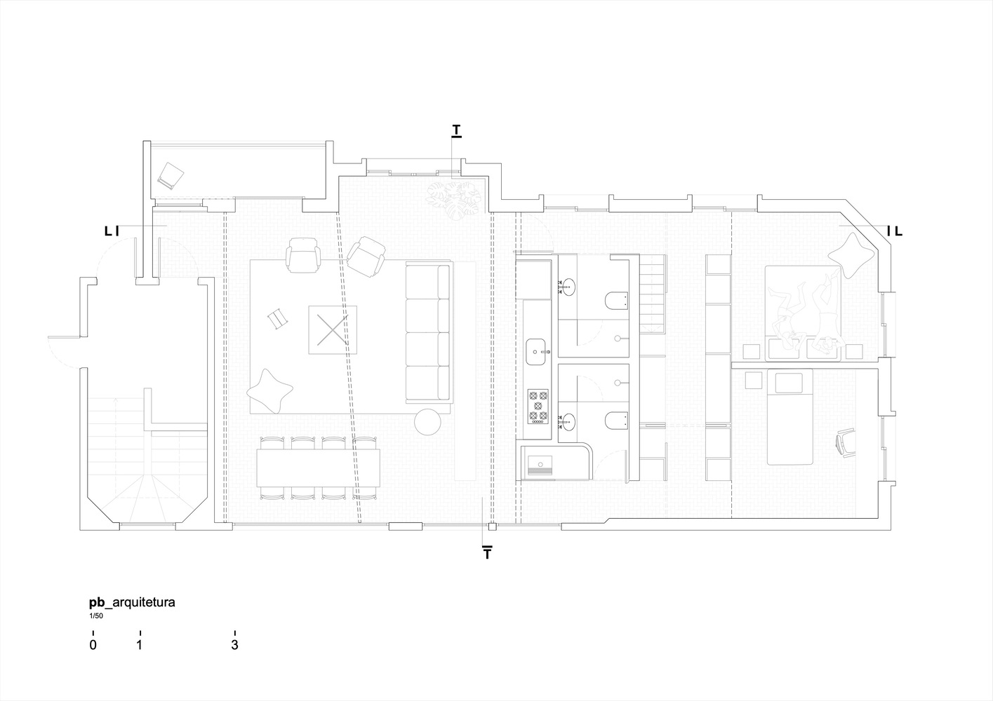
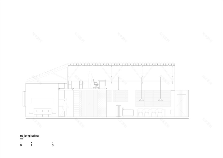
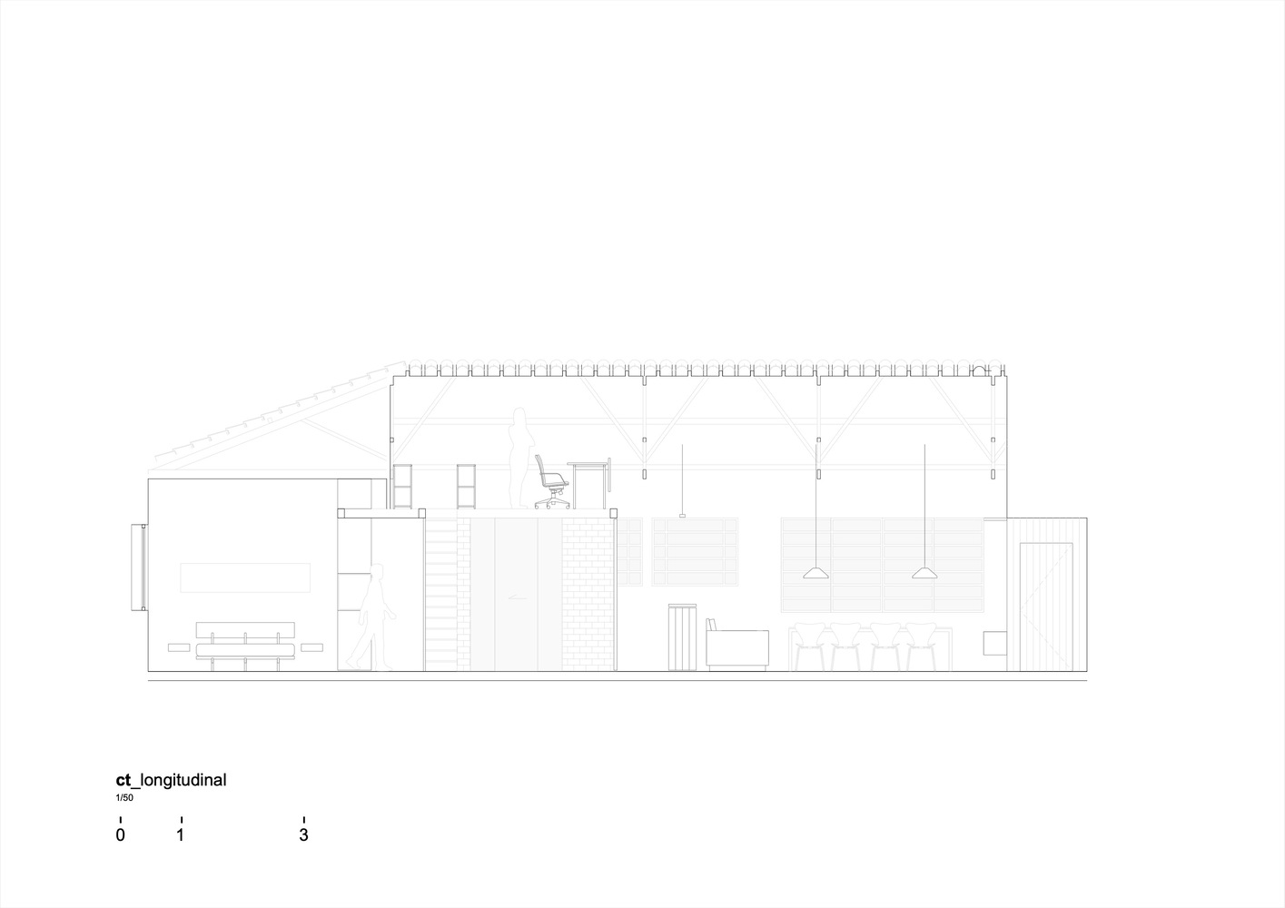
It is typical for an interior design project to encounter unexpected elements during its renovation. On the top floor of the Cravinhos Building, we encountered a four-water-trussed wooden roof, with carved joints and tie rods, a level of craftsmanship that only handwork could achieve.
To highlight this encounter, the stucco was demolished and part of the clay brick masonry was reused to build a new infrastructure core that includes the kitchen, two bathrooms, laundry, and a closet. Detached from the perimeter of the apartment and the roof, to ensure natural light and cross ventilation, the entire apartment revolves around this element, on which a metal structure was also placed to create a mezzanine for a workspace.
Imagining the evidence and turning an apartment into a home, is the premise of the project.
客服
消息
收藏
下载
最近



























