查看完整案例

收藏

下载
“如果有快乐,一定是因为威士忌。”白天迁就生活,晚上抚慰灵魂。夜幕降临,坐落于茶圣路的潘壹酒吧,正在拥抱即将到来的夜生活。在这里,何需定义自由、氛围与微醺的意义。敬美酒、敬良宵、敬友人、也敬自己。
01PROJECT OVERVIEW
项目概述
纯威士忌酒吧在三线城市并不多见,投资人及老板希望在这个城市中,能有一个短暂逃离现实空间的场所,恰当让疲惫身心得到放松。因此本项目以顾客感受为核心,为空间定下基调。一群专业的调酒师、一个不失格调的场所在这里开展。
本项目的定性旨在为了打造城市标签,为了拉长投资回报周期,排除了专业的商务元素以及网红快餐元素,杜绝盲目跟风。希望在以往的经验中,能够更好地沉淀下来,因此设计采用更传统的美式元素,让其能够在时间的长河里,留下其独有的自我风味。
本项目建筑体为老旧建筑项目改造,建筑新旧结构交错,层高、梁高参差不齐,所以在方案的规划上,为保证顾客的动线与服务的动线相互齐平,在尊重客户感官体验的基础上,进行空间布局。
为了保证门店的一致性,设计师在设计门头的时候与投资人商议,将整栋老旧建筑外观统一设计,以便给市民展示设计改善城市街区风貌,提升整体体验,带给人不同的情绪体验。在这里,你可以找到独属于自己的“味道”,因此设计师将传统鸡尾酒的配方配备在门头上,让顾客进门前思索好当晚品尝哪种情绪与味道。
同时以橡木进行基础装饰,体现高级感的同时,如同酝酿威士忌的“橡木桶陈年”,别具一番风情。
02ARTISTRYATMOSPHERE
艺术氛围
本项目以客户体验为核心,定调合理的评效比,确定客座数量与投资配比。同时定制本地最大的专业化吧台设备,最大化满足调酒师的专业展示,给予顾客极大体验感。将吧台区域进行下沉处理,如同无形中伸出的手邀您一起沉醉共饮。
酒文化的本质是寻求放松、自由的生活状态,而潘壹恰好符合。步入酒吧,仿佛一秒穿梭回美式电影,复古的腔调、墙上的壁画、酒柜的陈列、考究的桌椅、极具氛围感的灯光,无一不在散发着诱惑。
03EXPERIENCE
极致体验
时间空间、虚拟现实,带着初始的感觉去探索空间的无限可能。潘壹如同琥珀,通过味道、情绪、物件来凝结时间。空间中采用真皮大沙发,让顾客的身体得到极致的放松与自由。温馨且迷幻的暖色系灯光,满足顾客隐私性的同时,创造了慵懒自在的环境,给予顾客极致体验。
夜幕充满细节,而空间却随着人的活动轨迹发生变化。不同风格的音乐旋律、合适的音量,既能保证邻座之间的私密距离,也能让其真正放松。相对的高级选材,让顾客在一次次触摸和体验中,感受消费的价值。
左右滑动查看更多
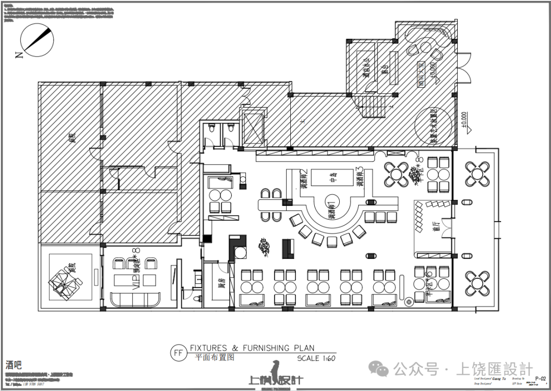
▼平面布置图 /PLAN
项目简介/Brief Introduction
Location /项目地点:上饶·茶圣路
Type /项目类型:商业空间
Area /项目面积:270㎡
Design / 设计出品:上樸致素设计
Project / 设计主案:刘珏、罗超
Construction /施工单位:江西元卓装饰有限公司
Time / 完工时间: 2023年11月
落地出品人 /Designer
设计师 | 刘珏
E N D
《上饶匯設計》——是设计类专业媒体,报道上饶地区原创设计师作品、策划设计交流性活动及家居行业类访谈。
客服
消息
收藏
下载
最近






























